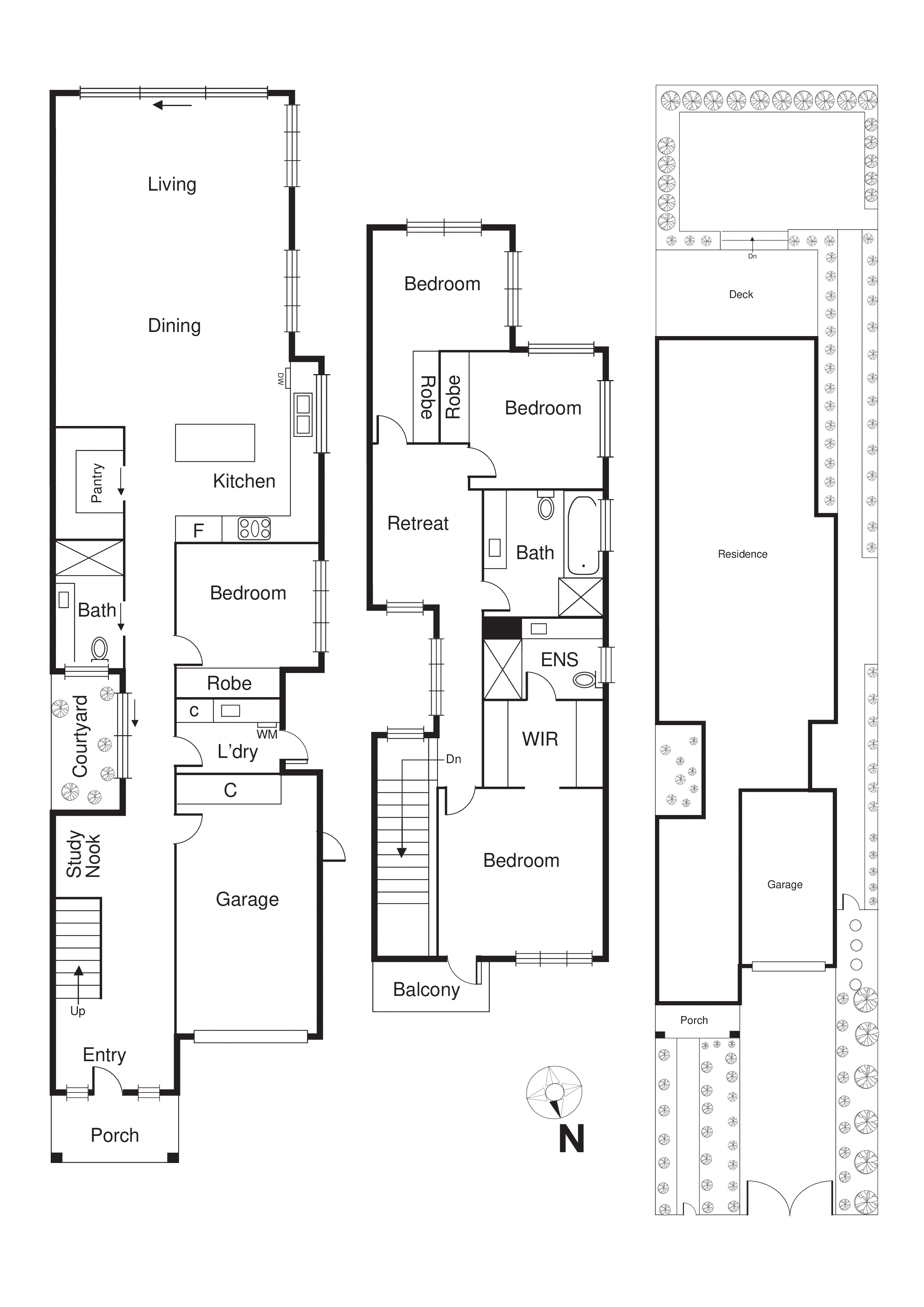
Sleek modern luxury meets impressive proportions and high-end quality in this designer streetfront town residence.
A central light-well courtyard makes a spectacular statement throughout spacious interiors, with sun-soaked open-plan living/dining accompanying a striking kitchen finished with stone surfaces, waterfall island bench, Smeg...
Sleek modern luxury meets impressive proportions and high-end quality in this designer streetfront town residence.
A central light-well courtyard makes a spectacular statement throughout spacious interiors, with sun-soaked open-plan living/dining accompanying a striking kitchen finished with stone surfaces, waterfall island bench, Smeg appliances and walk-in pantry.
A guest bedroom and bathroom are conveniently located on the ground floor. A luxurious main (with balcony, walk-through robe and stylish ensuite) plus 2 additional robed bedrooms accompany a retreat and spacious bathroom (with freestanding bath) on the upper-level.
With a seamless indoor/outdoor flow to a private landscaped entertaining deck, families will appreciate the additional comfort of heating/AC, alarm system, study nook, single lock-up garage and additional car space.
Situated in a desirable pocket, just a walk to East Bentleigh Primary School, buses, Chesterville Road shops and beautiful parklands.
ALL ENQUIRIES MUST INCLUDE A CONTACT NUMBER. For more information, contact Chris Hassall at Buxton Bentleigh on 0412 898 990 or the Buxton Office on 9563 9933. ‘We have obtained all information in this document from sources we believe to be reliable; however, we cannot guarantee its accuracy. Prospective purchasers are advised to carry out their own investigation.’