Inspection by Appointment Only
Commanding attention from its enviable position high on Milan Street, this stylishly renovated and extremely elegant c.1930 residence is a timeless beauty with enduring family appeal. Steps to the bay and nestled amongst manicured gardens on a generous 730sqm (approx) allotment, the home’s sun-filled interiors have...
Inspection by Appointment Only
Commanding attention from its enviable position high on Milan Street, this stylishly renovated and extremely elegant c.1930 residence is a timeless beauty with enduring family appeal. Steps to the bay and nestled amongst manicured gardens on a generous 730sqm (approx) allotment, the home’s sun-filled interiors have been enhanced by a host of contemporary updates. Highlighting a focus on open plan living with a desirable indoor-outdoor connection and sought after al fresco ease.
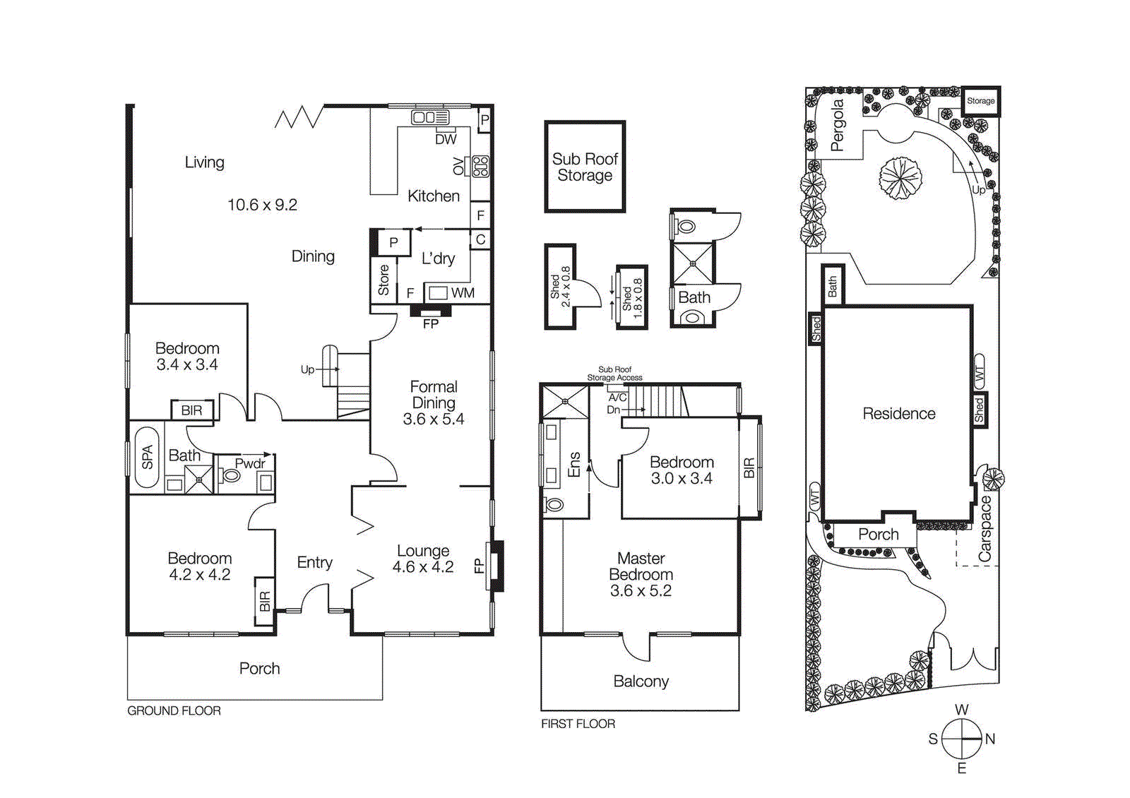
Now ready to welcome a new family, features include a formal lounge and dining room (both with fireplaces) alongside an expansive living and relaxed meals area. Bi-fold doors can be thrown open to seamlessly link the interiors to the beautiful family-friendly rear garden featuring a patio, undercover entertaining area and cubby house. The designer kitchen with servery window has been refurbished to please, offering quality Miele and Ilve appliances, and has the convenience of a combined butler’s pantry and laundry.
Two ground floor bedrooms share a fully-tiled spa bathroom and separate powder room, while upstairs a luxe en suite, wall of robes and private terrace with endless views all feature in the main suite. A fourth bedroom/dressing room (with built-in robes) is also located on this level along with access to handy roof storage. Comfortable and inviting with ducted heating and reverse cycle air conditioning as well as intercom entry and secure auto-gated parking.
Zoned for both Beaumaris and Mentone Girls’ secondary colleges, this prized beachside locale is a leisurely stroll to the suburb’s leading private schools, public transport, shops, cafes and magnificent Mentone beach.
For more information about this elegant family beauty please contact Leanne Potter at Buxton Brighton on 0414 344 144.