39 Warwick Street, Bentleigh East

Undisclosed

B 3 b 1 C 1 Land area 595 m²

Buxton Bentleigh
Level 1, 269 Centre Road,
BENTLEIGH VIC 3204

Get in touch

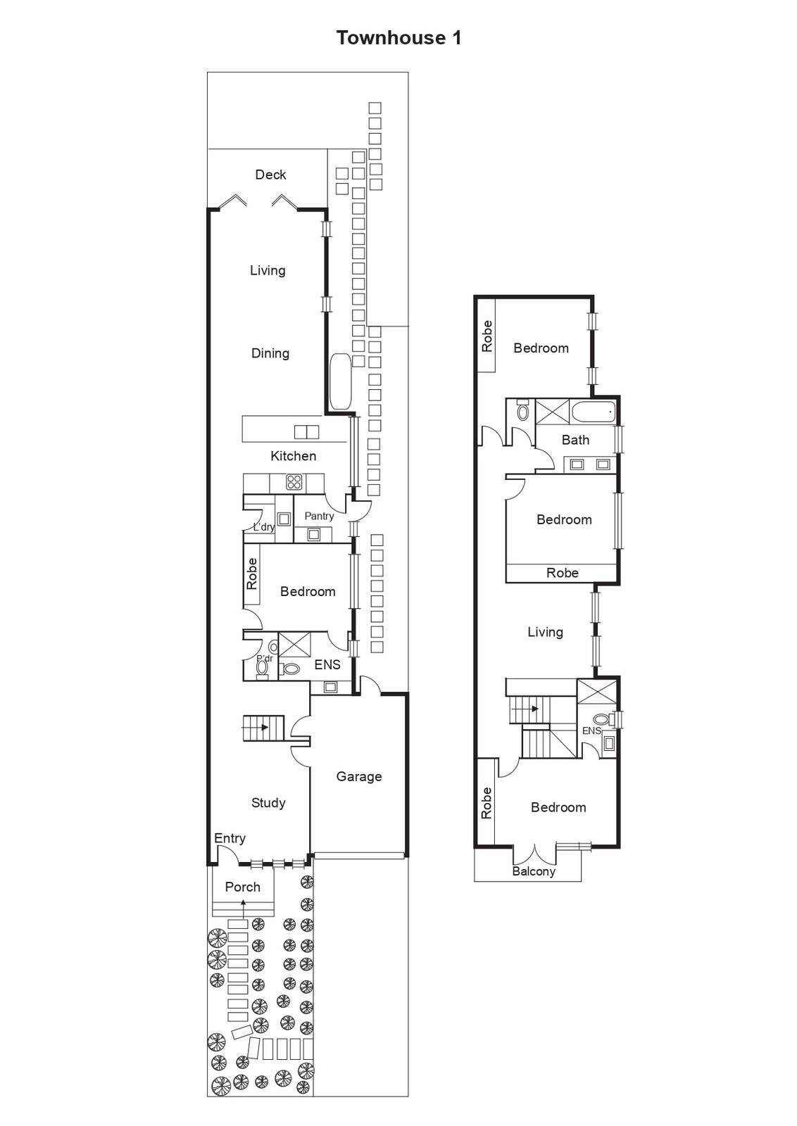
Options Aplenty With Architect-designed Plans/Permits For 2

Appreciate the location, savour the opportunity and envisage the exciting prospects for this 3 bedroom, 1 bathroom single-level home offering a multitude of possibilities on a prized block measuring...

View More

Options Aplenty With Architect-designed Plans/Permits For 2

Appreciate the location, savour the opportunity and envisage the exciting prospects for this 3 bedroom, 1 bathroom single-level home offering a multitude of possibilities on a prized block measuring 595sqm (approx).

One option is to move in and renovate, extend and add value over time. Another option is to start anew and build a luxury new...

View More

Location  

Get Directions
Map showing location of 39 Warwick Street, Bentleigh East VIC 3165

Buxton Bentleigh Level 1, 269 Centre Road,
BENTLEIGH VIC 3204

Get in touch

Want to know what your property's worth?

Looking to buy or sell a property? Click below to receive a full report highlighting market value, recent sales, rental history, suburb report and more.
Download Property Report

Enquire about this property

Submitting...

Success! Your enquiry has been submitted.

There was an error submitting the form. Please try again later.

Similar Properties

Sold
sold

$1,450,000

1 Elizabeth Street, Bentleigh East VIC 3165

B 3 b 1 C 1

Sold
sold

Undisclosed

15 Yaralla Road, Bentleigh East VIC 3165

B 3 b 1 C 2 Land area 618 m²

Sold
sold

$1,427,000

42 Beddoe Avenue, Bentleigh East VIC 3165

B 3 b 1 C 2 Land area 604 m²