Tailor-made for easy living, this sleek, stylish and sophisticated residence is brilliantly located in a low-traffic pocket just footsteps to the attractions of Southland.
Beachside of the highway and flaunting a host of first-class finishes throughout, the stunning low maintenance home is approx 102m2 internally that is blessed with a desirable...
Tailor-made for easy living, this sleek, stylish and sophisticated residence is brilliantly located in a low-traffic pocket just footsteps to the attractions of Southland.
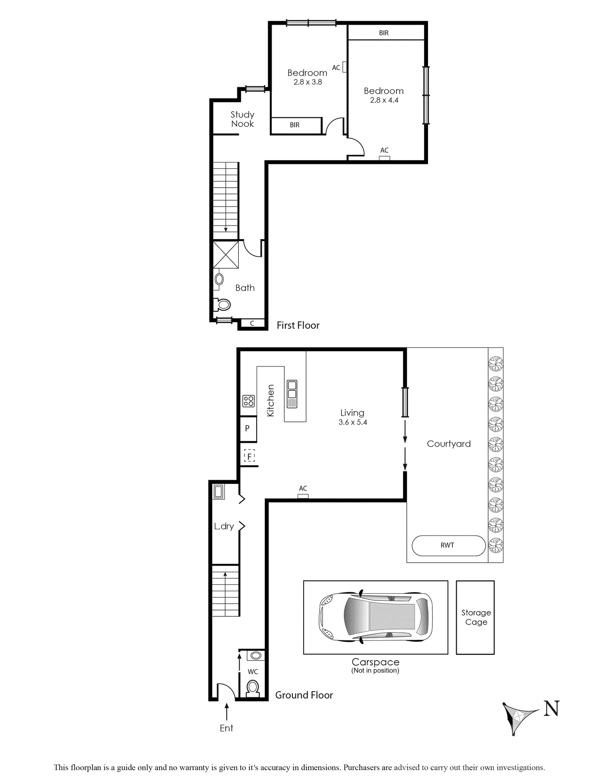
Beachside of the highway and flaunting a host of first-class finishes throughout, the stunning low maintenance home is approx 102m2 internally that is blessed with a desirable northerly orientation and features an open plan living/dining area which spills outside to a private sundrenched courtyard of approx 25m2 for effortless indoor/outdoor enjoyment.
Back inside, the chic white kitchen impresses with its quality stainless steel appliances (gas cooktop) and ample storage and preparation space. Two upstairs bedrooms (BIRs) share a sparkling bathroom while a ground floor powder room is available for the convenience of guests.
A dedicated study area, full laundry, multiple split system units, secure parking and storage cage are among the notable inclusions – in addition to its flawless interiors and easy-to-maintain setting, the home is within moments of bus stops, Cheltenham & Southland railway stations, Cheltenham Primary School, parks and golf courses – it is also in the sought-after Cheltenham Secondary College zone.
For more information about this sleek & sophisticated residence, please contact Mathew Cox at Buxton Mentone on 0413 102 224