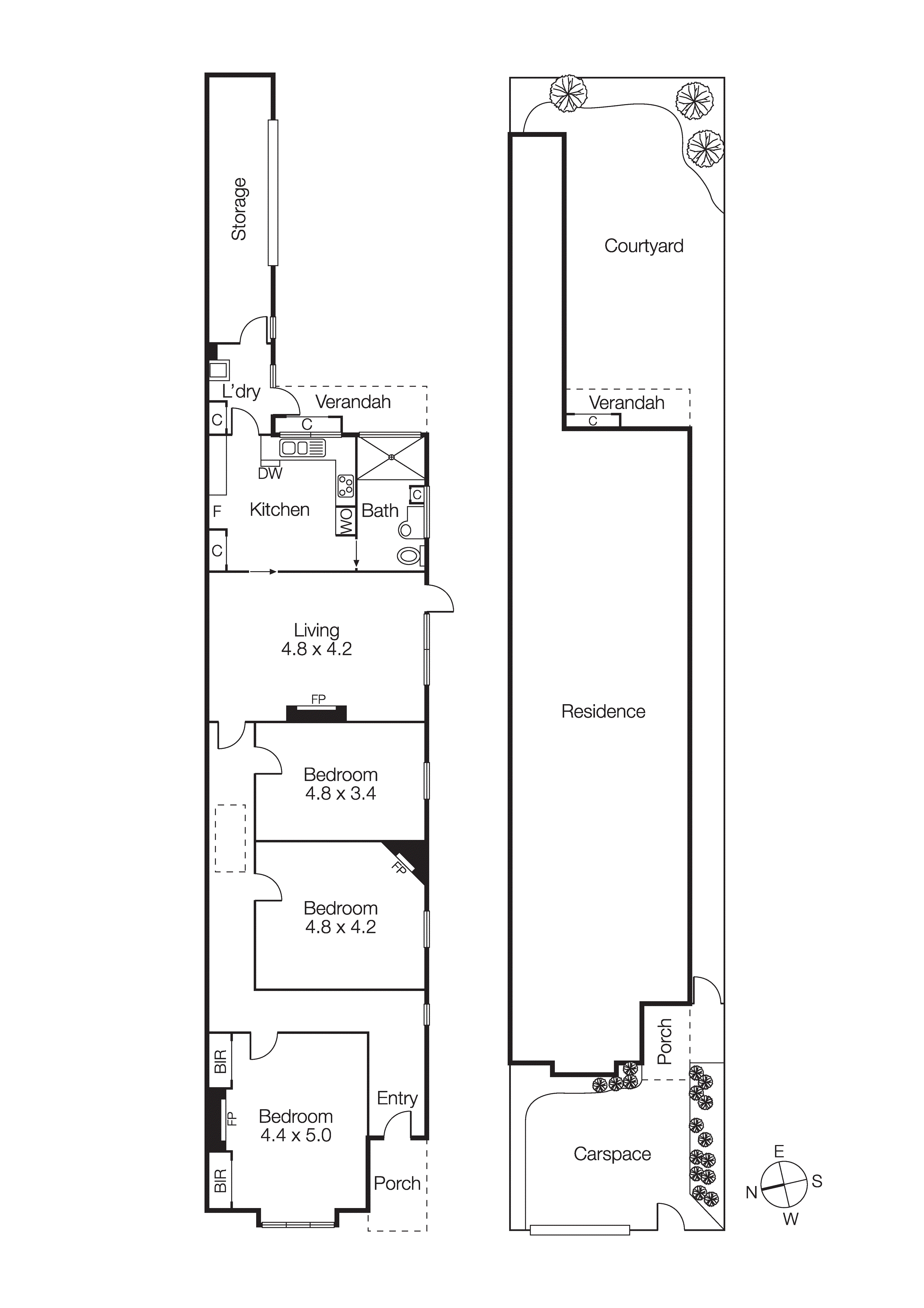
260sqm owned land + 20sqm common land.
A rare find of size and scope in one of the area’s most renowned streets, this impressive brick Edwardian’s imposing character, exceptional 280sqm approx parcel and prime position support an exciting array of possibilities just meters from Carlisle Street.
Positioned behind a high fence with secure OSP,...
260sqm owned land + 20sqm common land.
A rare find of size and scope in one of the area’s most renowned streets, this impressive brick Edwardian’s imposing character, exceptional 280sqm approx parcel and prime position support an exciting array of possibilities just meters from Carlisle Street.
Positioned behind a high fence with secure OSP, imposing period proportions retain their soaring rosette ceilings, leadlight windows, OFPs and rich original grandeur in four principal rooms currently with extensive built in storage.
At the rear, previously extended spaces include a functional family sized kitchen, contemporary bathroom and large storage room with exterior roller door opening to a sun filled courtyard garden.
Highlights include a front sitting room or grand master bedroom with OFP and leadlight bay window, two bedrooms, one with OFP, large living/dining with OFP and second entry, beautifully decorative façade, ducted heating and secure OSP.
Retain in its current format as a medical or professional suite or explore options to renovate, perhaps build a new home or redevelop (STCA) with GRZ1 zoning just footsteps from Carlisle Street retail and dining, trams, Balaclava Station and Orange Grove Reserve.
Brought to you by Vendor Marketing – Melbourne's most qualified vendor advocates – vendormarketing.com.au