Positioned on a deep 240sqm (approx.) parcel with second frontage to Little Boundary Street, this simply delightful two-bedroom home provides a wealth of instant and long-term advantages in this lifestyle location on the fringe of Albert Park.
Tucked quietly behind its remote garage and OSP, a series of beautifully light filled spaces form their...
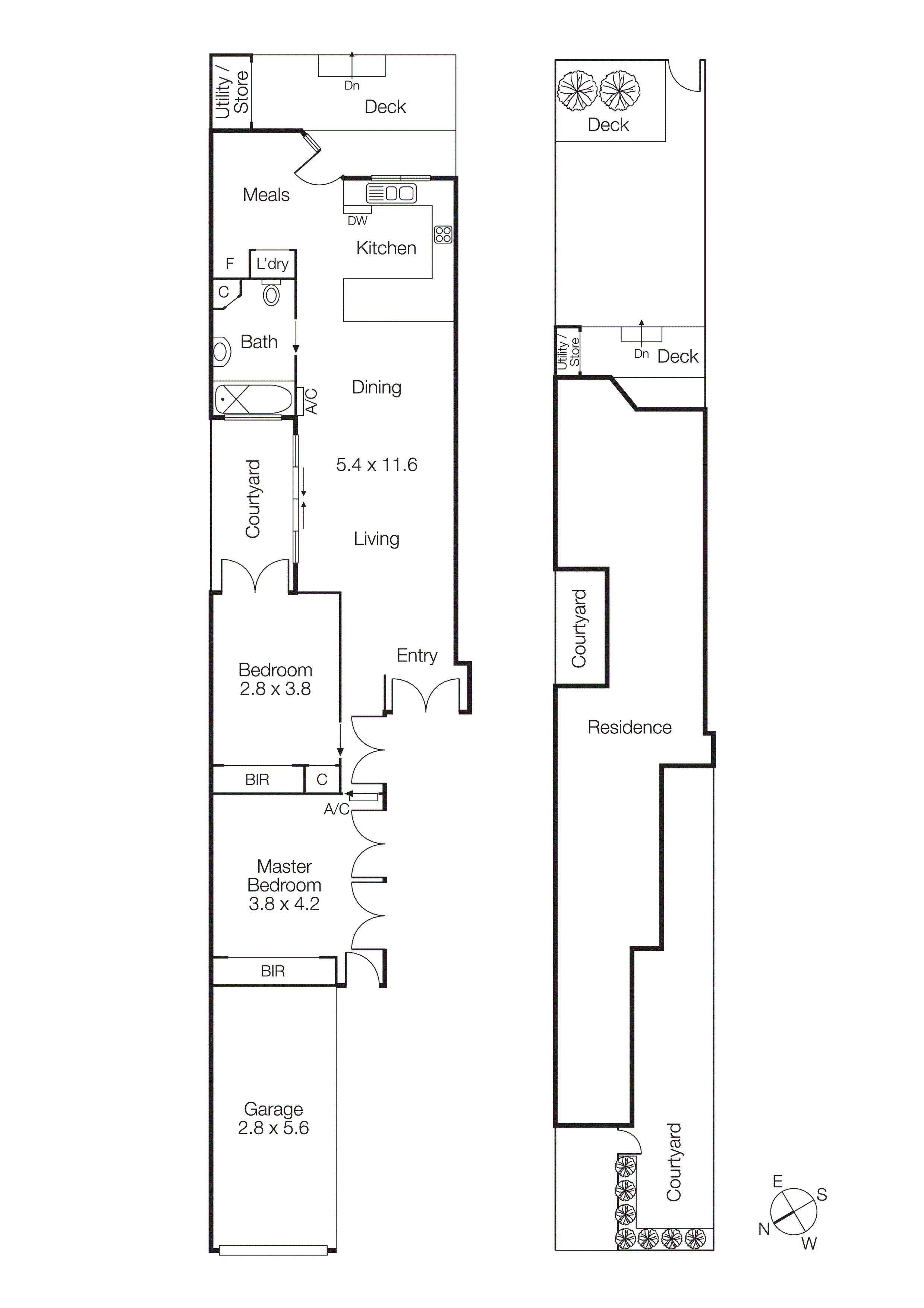
Positioned on a deep 240sqm (approx.) parcel with second frontage to Little Boundary Street, this simply delightful two-bedroom home provides a wealth of instant and long-term advantages in this lifestyle location on the fringe of Albert Park.
Tucked quietly behind its remote garage and OSP, a series of beautifully light filled spaces form their own private inner-city haven with front and rear outdoor areas cleverly cocooning the spacious accommodation within.
Two bedrooms with BIRs enjoy walls of glazing that open to the outdoors, the generously proportioned main with extensive BIRs/storage, before open plan living/dining areas that unfold to a north facing interior courtyard, a fully equipped family sized kitchen with adjoining dining/study nook and the leafy rear garden featuring two entertaining decks and pedestrian access via Little Boundary Street.
Additional highlights include a central bathroom, ducted heating, multiple split cooling units, ceiling fans, paved front courtyard, secure entry via remote garage and OSP.
Move straight in and experience the area’s renowned inner-city lifestyle just moments from the Bay then in time, perhaps as family needs dictate, consider adding a second story, even start again with a new home or boutique development (STCA) that maximizes the dual frontage. Whatever path is pursued, success is sure to follow in this premier position so close to iconic Albert Park Village, St. Vincent Gardens, Gasworks Arts Park, South Melbourne Market, light rail links, Albert Park Primary and College, and the Bay.
ALL ENQUIRIES MUST INCLUDE A CONTACT NUMBER