Metres to beautiful Half Moon Bay, this sun-filled 3-bedroom, 2.5-bathroom – plus study - home has been stylishly updated to offer the very best in low maintenance beachside living. With family-sized spaces adding to its enormous appeal, it is ready to enjoy – simply move in and lap up everything this prized lifestyle location has to...
Metres to beautiful Half Moon Bay, this sun-filled 3-bedroom, 2.5-bathroom – plus study - home has been stylishly updated to offer the very best in low maintenance beachside living. With family-sized spaces adding to its enormous appeal, it is ready to enjoy – simply move in and lap up everything this prized lifestyle location has to offer.
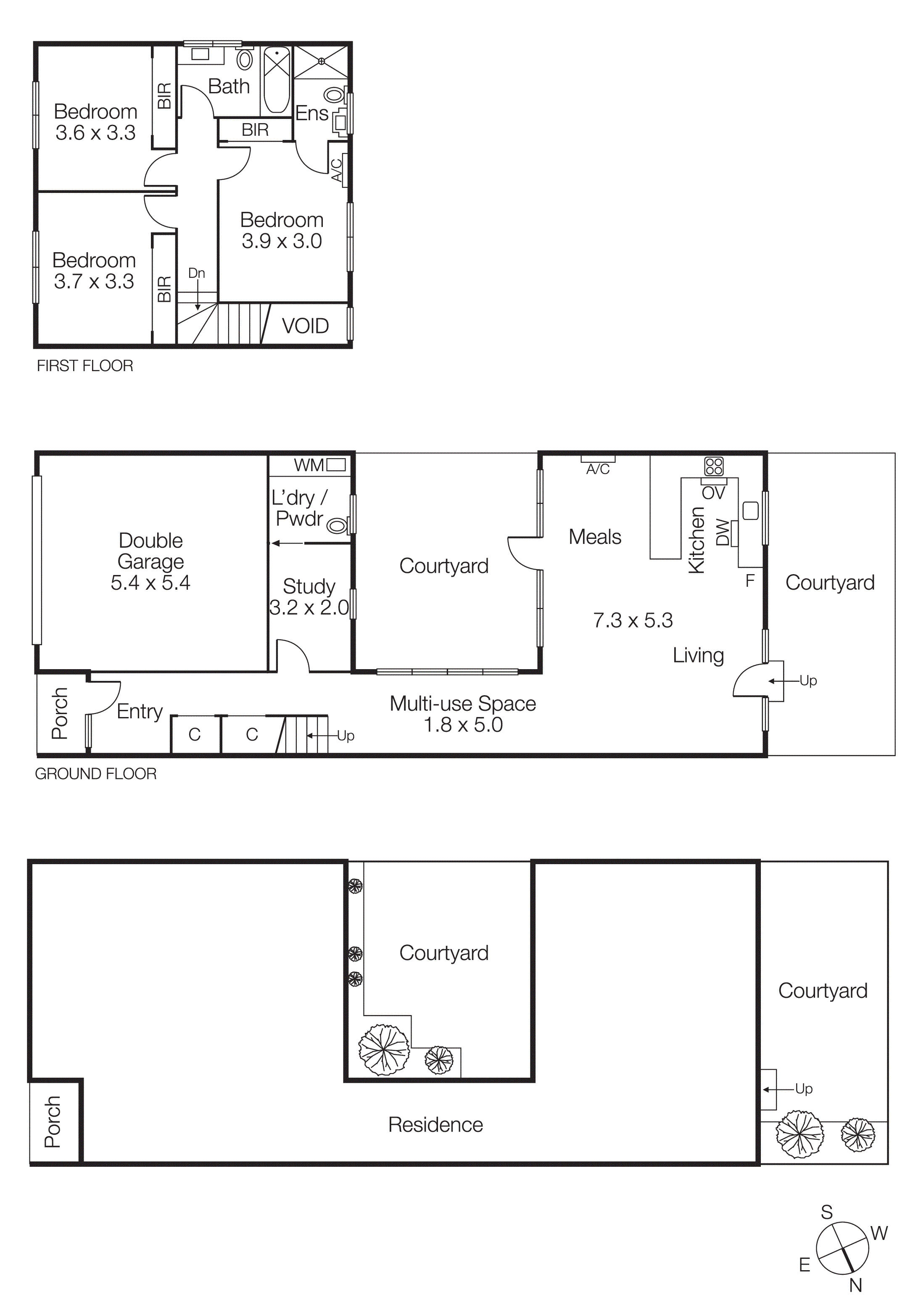
Tucked away to the rear of a quiet group, the home opens to stunning light-lavished interiors, all centred around a fabulous internal courtyard. Accommodation highlights include a dedicated study, open plan living/dining zone and chic entertainer’s kitchen which is perfectly positioned so you can keep an eye on the children while preparing dinner.
Upstairs, discover three well-sized bedrooms and a renovated bathroom; all three boast built-in storage while the master has the luxury of its own private ensuite.
A WC is located in the laundry downstairs for the convenience of guests, while among the other notable inclusions are ducted heating, split system heating/cooling and double auto garage. In addition to the central courtyard, there is a private alfresco area at the rear of the home – perfect for casual summer dining with friends.
Walk to Black Rock village, the primary school and kindergarten. The area is also well-serviced by bus routes along Bluff Road.
For more information about this beautiful sun-filled sanctuary contact Adam Saunders or Shantelle Francis at Buxton Sandringham.