In a privileged position at the end of the Golden Mile ‘s only cul de sac, this two-bedroom, townhouse-style apartment’s clever renovation has introduced chic contemporary function to its two story modern design.
The result is a home of peace, privacy and stylish functionality just footsteps from the beach and Ormond Road amenities. Sharing an...
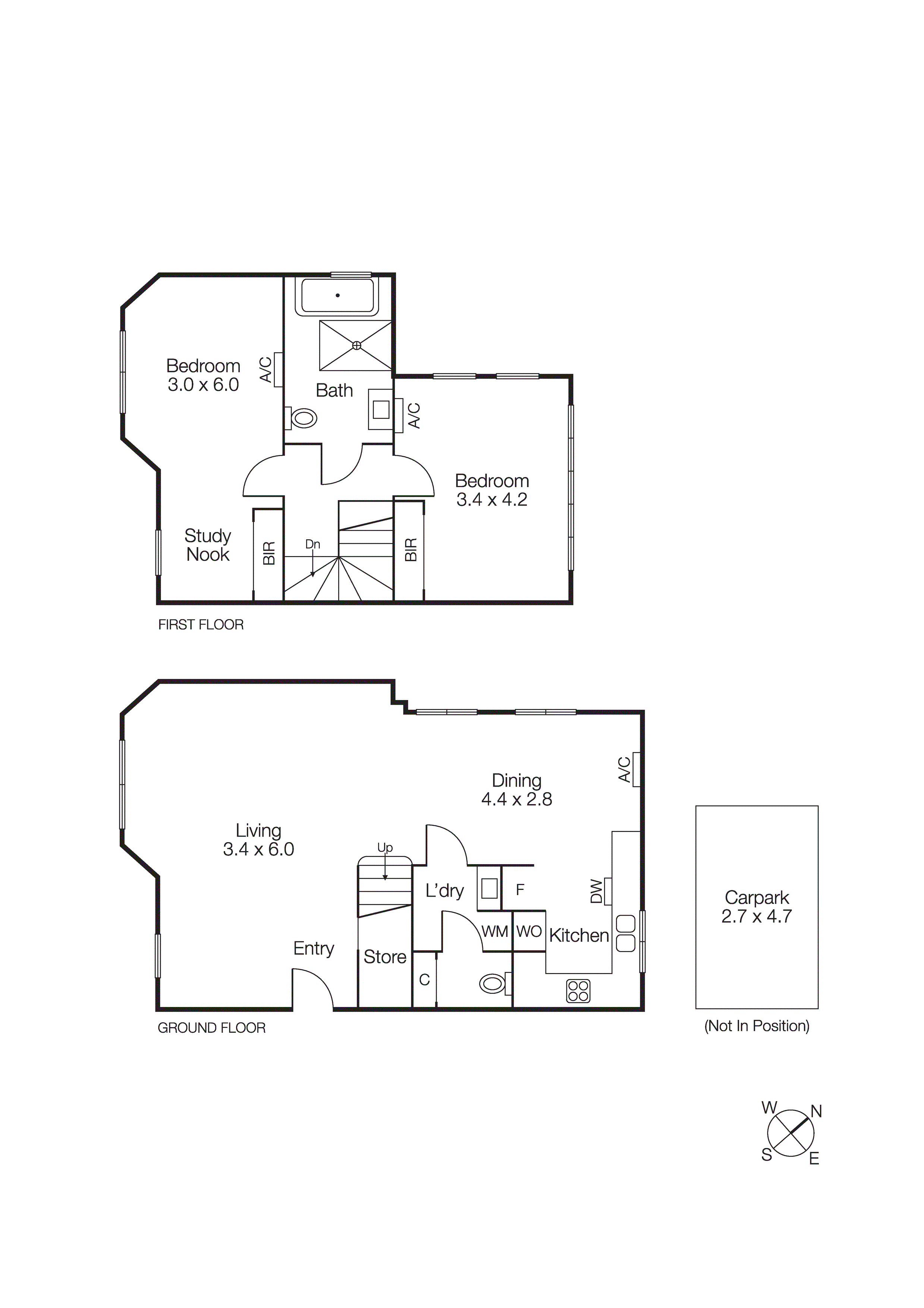
In a privileged position at the end of the Golden Mile ‘s only cul de sac, this two-bedroom, townhouse-style apartment’s clever renovation has introduced chic contemporary function to its two story modern design.
The result is a home of peace, privacy and stylish functionality just footsteps from the beach and Ormond Road amenities. Sharing an entry with just two other modern domains in the grounds of elegant Victorian “Thalassa”, beautifully bright accommodation expands out to include generous open living and zoned dining areas with a fabulous fully equipped kitchen revealing its quality in stone benchtops, feature tile splashback, induction cooktop, wall oven and combination microwave oven. An equally smart powder room with excellent storage hides laundry facilities and a second toilet whilst upstairs, two superbly spacious bedrooms share a designer bathroom with freestanding bath, both with floor to ceiling BIRs, one with tranquil water views.
High ceilings, polished parquetry floors, tall glazing with plantation shutters, split heating/ cooling, secure entry, remote undercover parking and access to a communal courtyard complete an idyllic seaside home just meters from Elwood Beach, a short walk from Ormond Road shops, cafes and eateries with minutes to Glen Huntly Road Elsternwick, trams, trains and local schools.