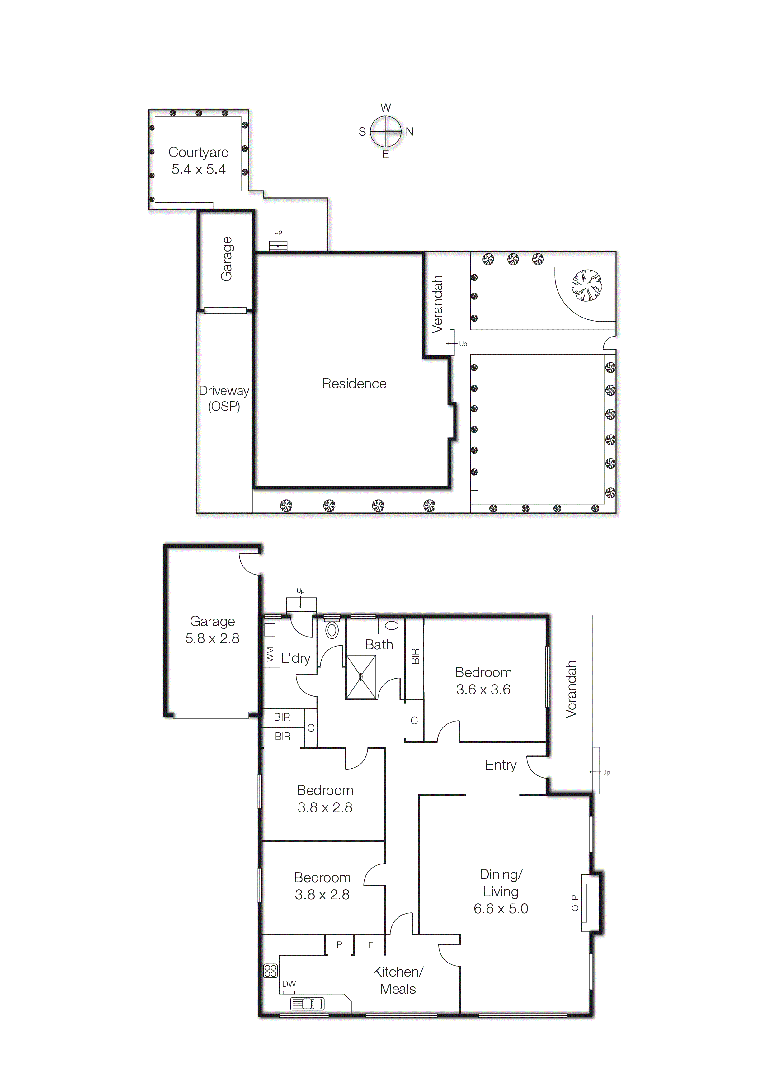
Bolstered by a blue-ribbon bayside address, this sun-swept and spacious single-level unit is positioned for everything this beautiful suburb is famous for. Fabulous eateries and retail attractions, public transport, schools and the bay – everything is within a stroll of this beautifully presented 3-bedroom home.
Situated on the corner of Gillies...
Bolstered by a blue-ribbon bayside address, this sun-swept and spacious single-level unit is positioned for everything this beautiful suburb is famous for. Fabulous eateries and retail attractions, public transport, schools and the bay – everything is within a stroll of this beautifully presented 3-bedroom home.
Situated on the corner of Gillies Street with its own street frontage and no shared land, the home’s northerly orientation ensures its welcoming interiors are filled with sunlight and warmth. Looking out across the leafy front garden, the inviting lounge and dining room is the ideal spot to entertain family and friends while further on, the casual meals area sets the scene for relaxed nightly meals. Timber benchtops and quality appliances star in the contemporary kitchen – a floating vanity and floor to ceiling tiles are highlights of the updated central bathroom.
The three bedrooms are all of generous proportions and have been fitted with plush new carpeting. Polished floorboards flow seamlessly throughout the home’s social areas while wrapping up a truly appealing offering are ducted heating and cooling, lock-up garage and a private & sunny rear courtyard.
For more information about this sun-filled single level home contact Kylie Charlton or Misty White at Buxton Sandringham.