On the arc of a peaceful park-side cul-de-sac, just a short stroll from Carlisle Street, this Victorian’s sweet original façade conceals an extraordinary modern-day transformation - an architect-designed renovation merging classic and contemporary in generous proportions.
The interior design of this much-loved family home of Kip&Co Founder and...
On the arc of a peaceful park-side cul-de-sac, just a short stroll from Carlisle Street, this Victorian’s sweet original façade conceals an extraordinary modern-day transformation - an architect-designed renovation merging classic and contemporary in generous proportions.
The interior design of this much-loved family home of Kip&Co Founder and Creative Director, Alex McCabe, is elevated with custom features and finishes, adding luxury to inner city living.
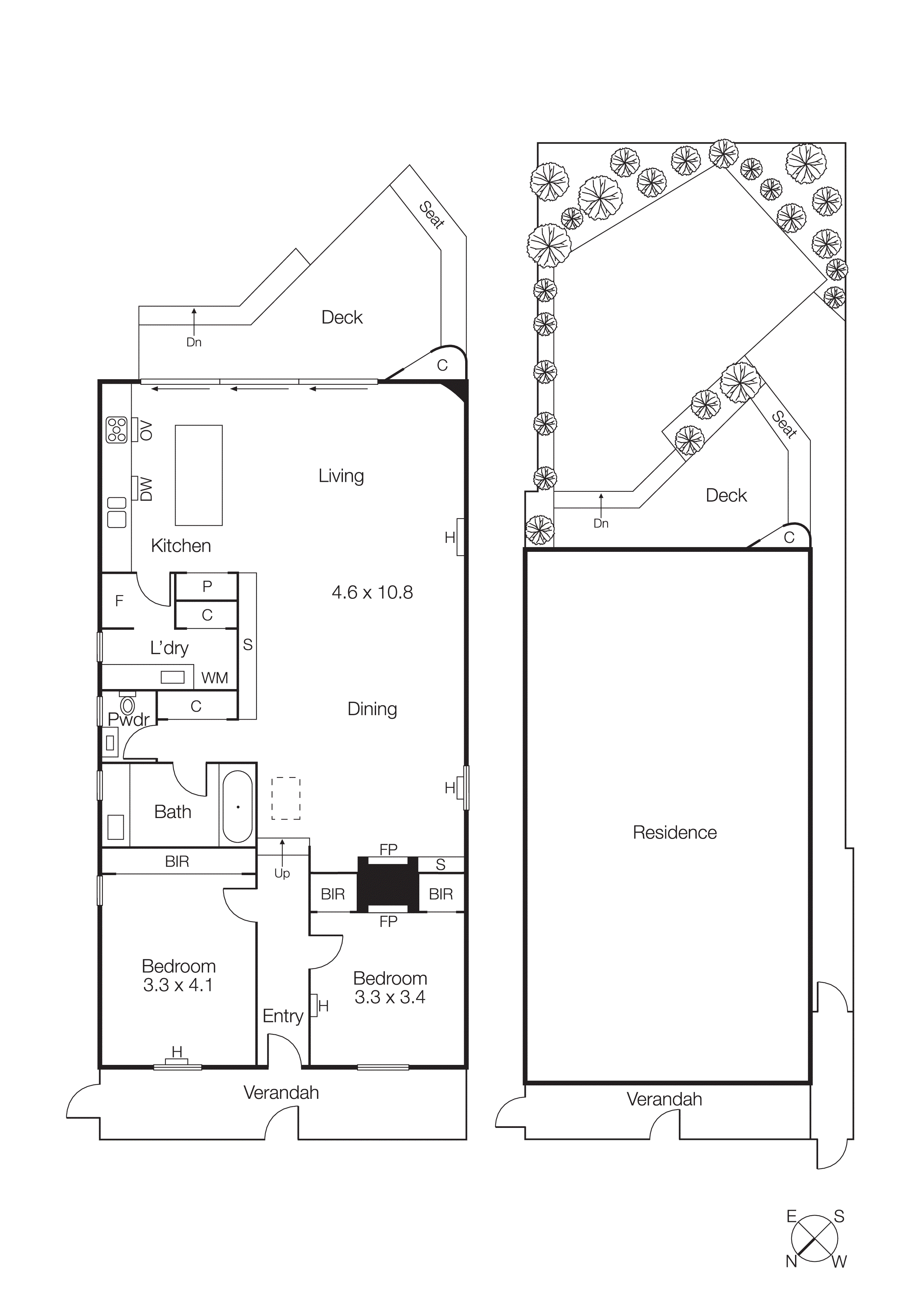
Set behind the period double fronted verandah, two spacious bedrooms retain their high ceilings and romantic character, with new floor to ceiling built-in-robes and one with open fireplace (OFP).
Beyond, a series of exceptional open plan areas are kept beautifully bright by multiple natural light sources, a soaring north-facing clerestory ceiling and expansive glass doors that slide into the wall cavity for a seamless connection to decked entertaining and the attractively landscaped garden and herb bed.
Generous living and dining zones with OFP, bespoke artisan bookcase and herringbone parquetry floors are served by a show-stopping kitchen finished with aged brass cabinetry, Crocodile Bamboo quartzite, a stunning pink concrete island, indoor self-watering garden and concealed butler’s pantry/laundry with vast storage.
A range of other highlights include terrazzo tiled bathroom with honey onyx vanity, powder room, attic storage with ladder plus widespread floor to ceiling storage throughout, hydronic heating, ducted heating/cooling and hardwood timber floors.
Step out of the front door and across the storybook bridge to Pakington Street Reserve with its playground and community garden, around the corner to Carlisle Street shopping, eateries and bars, St Kilda Botanic Gardens, trains, trams to the beach, Chapel Street precinct and CBD, St Kilda Primary, St Michael’s Grammar, childcare and a whole lot more.