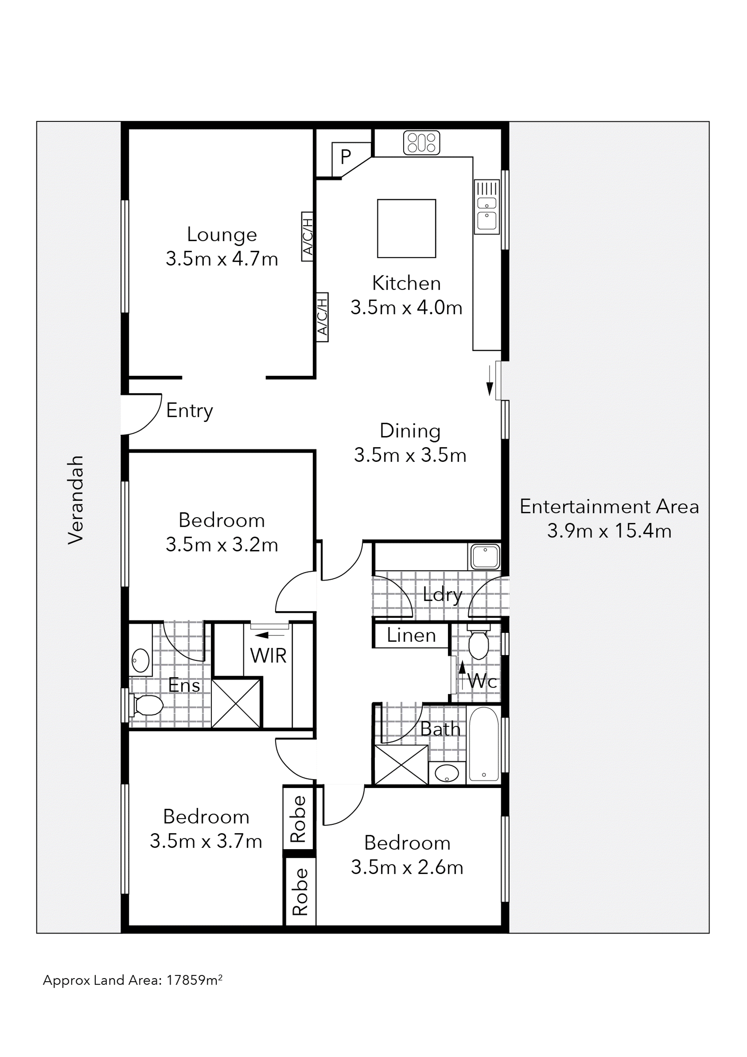
If you're considering a move to the charming town of Clunes, this property might be exactly what you've been searching for. Situated on approximately 7 acres, this home offers three spacious bedrooms, including a master bedroom with a walk-in robe and ensuite, while the other two bedrooms have built-in robes. The open plan kitchen/dining area with...
If you're considering a move to the charming town of Clunes, this property might be exactly what you've been searching for. Situated on approximately 7 acres, this home offers three spacious bedrooms, including a master bedroom with a walk-in robe and ensuite, while the other two bedrooms have built-in robes. The open plan kitchen/dining area with split system heating/cooling provides an excellent space for entertaining your family, and there's a large living room that stays cozy with an additional split system. Additional features of this property include double glazed windows, a 900mm stainless-steel free-standing gas cooktop oven, a spacious front veranda and bottled gas.
As you step outside, you'll be greeted by the tranquil surroundings of the property, along with a large shed featuring a workshop and power, a 4-bay shed, water tanks, pens for chickens or ducks, a dam, and a fully fenced back paddock.
This property's location is just a short drive to the historic town centre of Clunes, and it's conveniently less than 30 minutes away from both Ballarat and Maryborough. If you desire a peaceful location with ample land, this property could be the perfect choice for you.