Modernist design is on trend for today's contemporary homes but nothing beats an original! This ultra chic 4-bedroom home exudes all the architectural flair of the 60s artfully renovated to suit the needs of modern families.
Enviably situated in the heart of the leafy Landcox Park precinct much loved for its Gardenvale Primary zoning & close...
Modernist design is on trend for today's contemporary homes but nothing beats an original! This ultra chic 4-bedroom home exudes all the architectural flair of the 60s artfully renovated to suit the needs of modern families.
Enviably situated in the heart of the leafy Landcox Park precinct much loved for its Gardenvale Primary zoning & close proximity to cafes, transport and Bay Street shops, eateries & cinema.
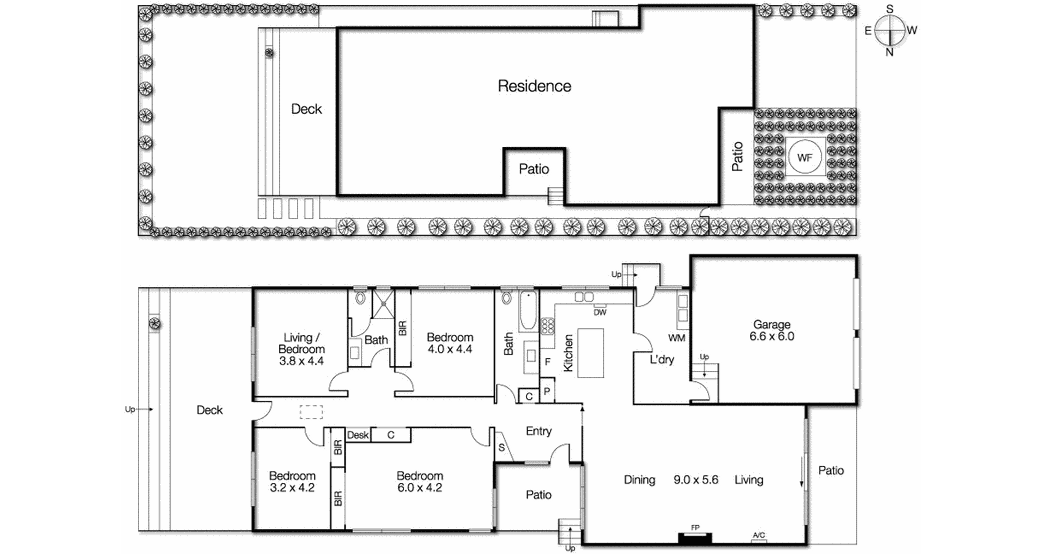
Outstanding in its simplicity the experience begins with a verdant Paul Bangay garden, striking glass & stone façade and geometric security gate leading to a sleek side entry. Once inside all the hallmarks of the era have been beautifully enhanced to showcase expansive, free flowing spaces with a superb connection to the outdoors. Dark hardwood floors sweep through a vast, light filled living area with garden views, a sun drenched patio, gas fireplace & reverse cycle air conditioning. The adjoining, open plan kitchen boasts Caesarstone bench tops, glass splash backs & oversized Smeg appliances and provides direct home access from the double automatic garage via a well positioned laundry/utility room.
A modern bathroom services guests and a large master retreat finished with built in robes, picture windows and sitting area. The kids' zone flows from stylish wood panelled hallway with two good-sized bedrooms (built in robes) & newly renovated bathroom plus a huge second lounge or fourth bedroom. The sunny north easterly rear plays host to a full length, stepped entertaining deck overlooking a grassed play area shaded by a mature citrus tree with ample room for children and pets. Sought after extras include pendant lighting, ducted heating, and reverse cycle air conditioning (family room).
You MUST register for an inspection and we ask that you also confirm your attendance. AN AGENT WILL NOT BE PRESENT IF YOU DO NOT REGISTER and CONFIRM. Your consideration and co-operation is appreciated.