An impressive streetfront presence captivates you with this masterfully crafted town residence, that exceeds all expectations with a practical light-bathed floorplan, high class appointments and enviable space throughout.
Embark on a journey of elegance and functionality that will redefine your notion of modern low-maintenance living.
Timber...
An impressive streetfront presence captivates you with this masterfully crafted town residence, that exceeds all expectations with a practical light-bathed floorplan, high class appointments and enviable space throughout.
Embark on a journey of elegance and functionality that will redefine your notion of modern low-maintenance living.
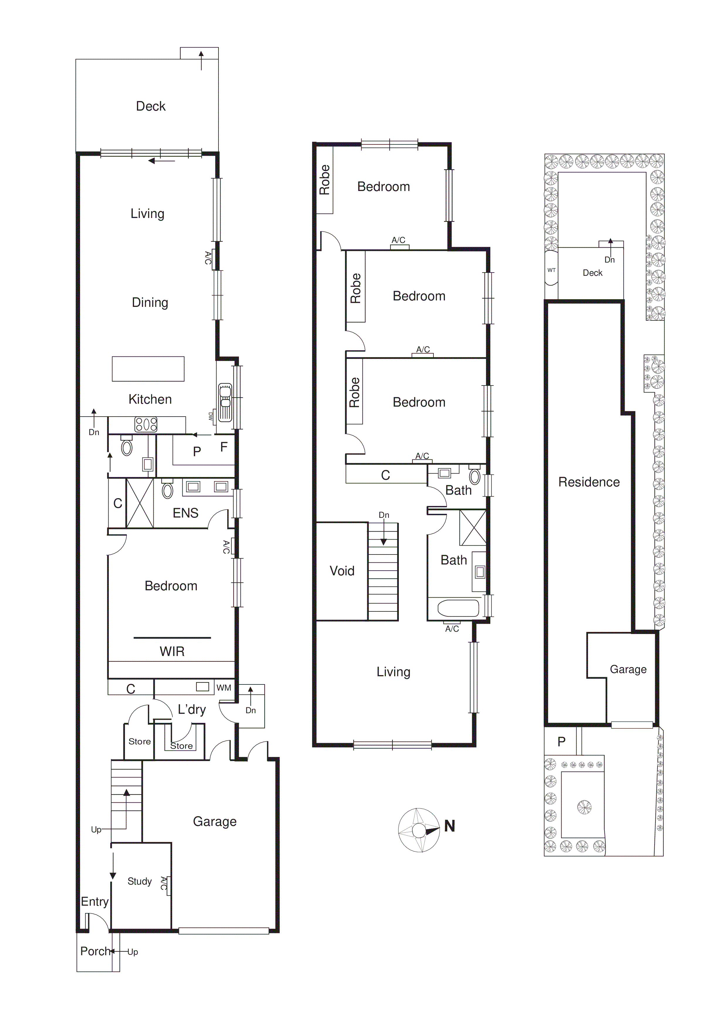
Timber floors create a seamless flow for the open-plan living/dining environment, that effortlessly unfolds to a private landscaped deck and courtyard – providing a peaceful setting for indoor-outdoor entertaining.
The gourmet kitchen is equally alluring and finished to exemplary standards with Smeg appliances, stone surfaces, walk-in pantry and breakfast bench.
Enjoy the convenience of a ground floor master bedroom fitted with a luxe ensuite/WIR, desirably accompanied on the upper-level by 3 further generous bedrooms (BIRs), chic fully-tiled bathroom and retreat.
Every corner of this residence exudes a premium sense of style and quality, complete with study, split system heating/AC, ample storage, alarm, powder room, single garage and off street car space.
Positioned in one of Ormond’s finest streets within the McKinnon Secondary zone, a walk to North Road shops, cafes, train, Monash University bus, Hawthorn Road tram and Ormond Primary School.
ALL ENQUIRIES MUST INCLUDE A CONTACT NUMBER. For more information, contact Simon Wheller at Buxton Bentleigh on 0455 444 683 or the Buxton Office on 9563 9933. ‘We have obtained all information in this document from sources we believe to be reliable; however, we cannot guarantee its accuracy. Prospective purchasers are advised to carry out their own investigation.’