Set within a gated and secure enclave wrapped in stunning gardens featuring gorgeous established plantings and tranquil water features, this sun-drenched and spacious three bedroom, two bathroom town residence resonates with stylish elegance and superb low-maintenance liveability.
Classic yet contemporary, the incredibly private home is the...
Set within a gated and secure enclave wrapped in stunning gardens featuring gorgeous established plantings and tranquil water features, this sun-drenched and spacious three bedroom, two bathroom town residence resonates with stylish elegance and superb low-maintenance liveability.
Classic yet contemporary, the incredibly private home is the perfect choice for first-time buyers, downsizers, small families and investors alike in a location close to shops, cafes, transport and excellent schools.
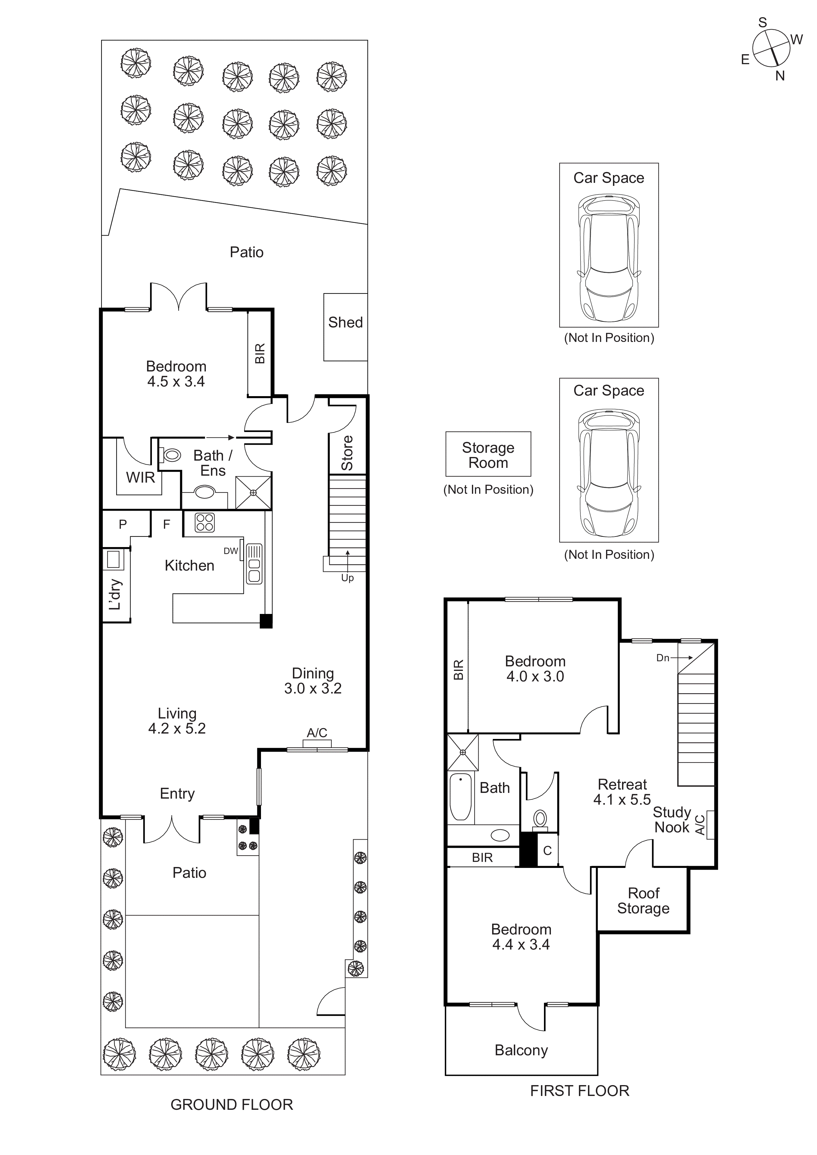
High ceilings, light-capturing windows and warm timber floors frame a north-facing living and dining domain spilling through French doors to a secluded entertainment terrace set against a backdrop of lush greenery – the ideal space to relax, dine and unwind.
Overlooking the living and dining area, the granite-topped kitchen is equipped with quality stainless steel appliances, breakfast bar and lots of storage.
Zoned for privacy downstairs, the master bedroom reveals a walk-in robe, built-in robes, two-way ensuite and private terrace. Up the carpeted staircase, a retreat with study nook precedes two additional bedrooms and a sparkling bathroom with bath and separate shower. Enjoying lovely leafy outlooks, both bedrooms offer built-in robes and ceiling fans, with one also boasting a private balcony.
Complemented by intercom entry, ducted heating, reverse-cycle air conditioners in both living areas, concealed Euro laundry, separate WC, under-stair storage, roof storage, garden shed, water tank, two secure basement car parks plus a storage room.
At this whisper-quiet Bayside location, strolling distance to Bay Street’s vibrant shopping and dining scene, cinemas and station, and in close proximity to parklands, the beach, Brighton Secondary College, Brighton Primary School as well as excellent private schools including, Brighton Grammar School, Firbank Grammar School, St Leonard’s College and Haileybury College.
For more information about this peaceful retreat contact Shantelle Francis or James Colyvan at Buxton Sandringham.