Remarkable family value, a revered location and rewarding prospects hold this triple fronted brick veneer in high regard.
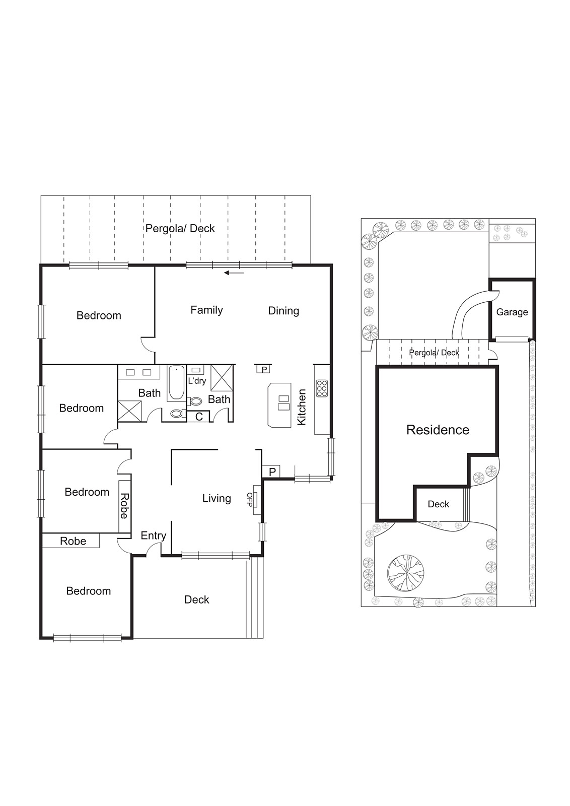
Family focused with four bedrooms, two bathrooms and two distinct living zones, the home features an open fireplace for the fine formal area, space to lounge and dine in a parquetry-floored open plan domain and a dedicated...
Remarkable family value, a revered location and rewarding prospects hold this triple fronted brick veneer in high regard.
Family focused with four bedrooms, two bathrooms and two distinct living zones, the home features an open fireplace for the fine formal area, space to lounge and dine in a parquetry-floored open plan domain and a dedicated family backyard comprising a full width al fresco area for adults to entertain, an abundance of grass space for kids to play, a veggie patch to indulge a green thumb and a single garage/workshop against a backdrop of mature resort style gardens.
Prestige appointed with 900mm range stainless steel appliances (Miele DW) and Caesar stone benchtops for the skylit kitchen, this centrally heated and reverse cycle air-conditioned home provides a stylish dual vanity main bathroom for the row of big bedrooms, original hardwood floors, a multitude of off street parking & 630sqm approx of prime land to inspire (STCA).
Even the location is prestige... with Tucker Road Primary School and Holmesglen Tafe just around the corner, Moorabbin Reserve within moments, the bus at the end of the street and a quick commute to Centre Road shops. ALL ENQUIRIES MUST INCLUDE A CONTACT NUMBER.
Listing Website