Tucked around the corner with a frontage to Smith Street, this freshly presented single-level unit delivers light-filled spaces in a perfectly low maintenance setting. An exciting opportunity for young buyers or investors to take a strong step into a coveted postcode, this is also an easy-care empty nest for those wanting to stay in the...
Tucked around the corner with a frontage to Smith Street, this freshly presented single-level unit delivers light-filled spaces in a perfectly low maintenance setting. An exciting opportunity for young buyers or investors to take a strong step into a coveted postcode, this is also an easy-care empty nest for those wanting to stay in the neighbourhood.
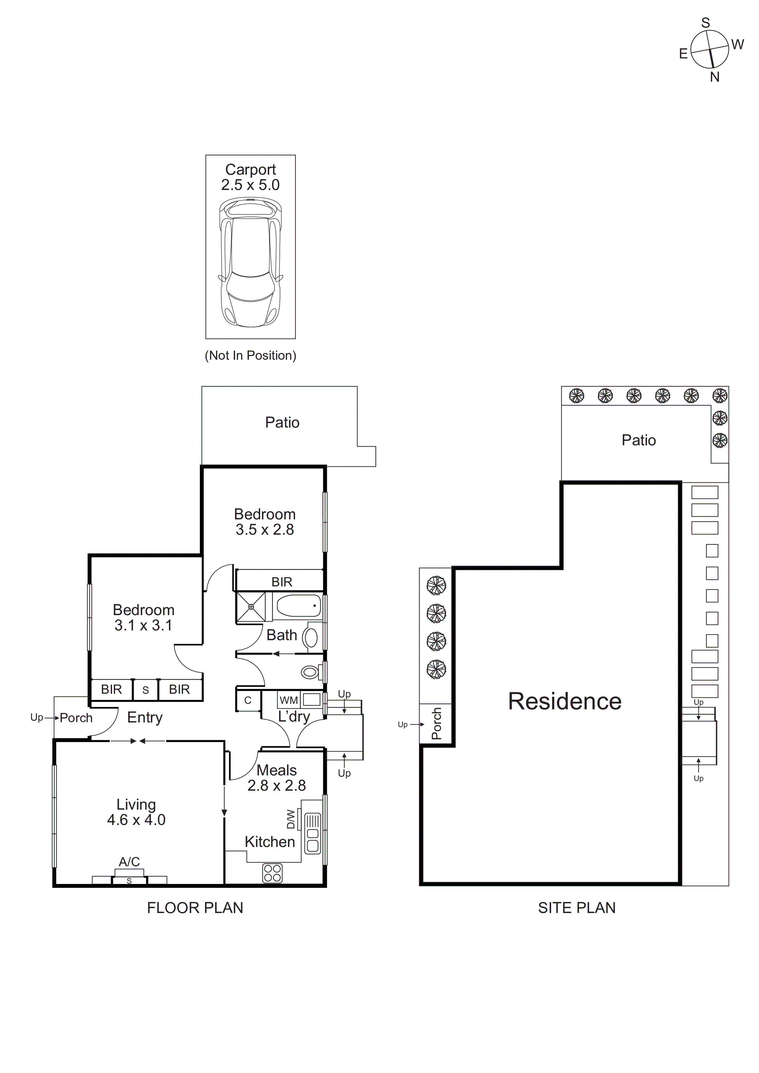
Warm hardwood floors and high ceilings are first introduced in the distinct entrance hall that leads into an inviting lounge flowing through into a rear kitchen which is big & bright and offers plenty of storage along with stainless steel appliances plus a comfortable space for relaxed meals.
The two bedrooms are both true doubles that benefit from a wall of built-in storage and share the sparkling bathroom and convenient two-way WC, while out through the laundry, the low maintenance landscaped outdoor area wraps around to a very private patio for morning coffee or evening drinks.
With split system heating/cooling and carport parking finalising the deal, this ready-to-love or rent-ready home is located metres to bus routes for an easy trip down to the beach and station, within easy reach of parklands and Brighton Golf Course and a quick trip to Hampton or Church Street’s shopping & dining destinations.
For more information about this light & bright, low maintenance home, please contact Shantelle Francis or James Colyvan at Buxton Sandringham.