Renovated to an exacting standard and boasting a St Kilda Street address, this smart, low-maintenance townhouse provides a stylish base from which to enjoy this truly fabulous beachside neighbourhood. Moments to the lush green space of Elsternwick Park, along with the soft sands of Elwood's foreshore, an invigorating outdoor lifestyle is yours for...
Renovated to an exacting standard and boasting a St Kilda Street address, this smart, low-maintenance townhouse provides a stylish base from which to enjoy this truly fabulous beachside neighbourhood. Moments to the lush green space of Elsternwick Park, along with the soft sands of Elwood's foreshore, an invigorating outdoor lifestyle is yours for the taking.
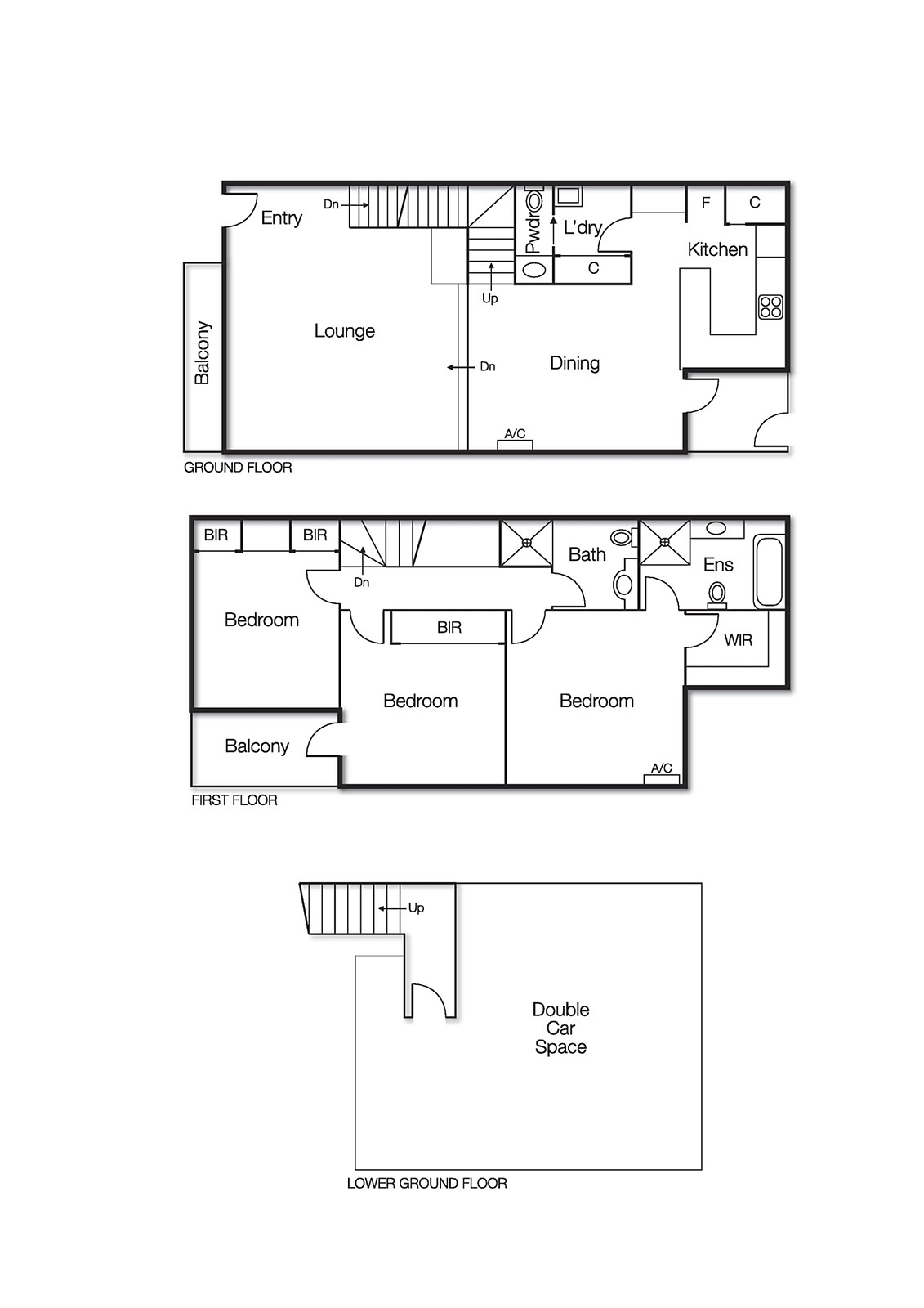
Inside, however is just as satisfying. Beyond a secure, low-maintenance front garden, in vogue wide-board oak floors flow through a split-level living and dining room and on to the chic monochrome kitchen where ice white stone & ebony glass splashback contrast with the quality stainless steel appliances.
Upstairs is filled with natural light thanks to cleverly placed skylights, here three bedrooms all offer fitted storage, the master also including a walk-in robe plus sparkling ensuite, whilst a balcony to the front bedroom affords serene beach views. A generous family bathroom services the remaining rooms.
A downstairs powder room, laundry, ducted heating & split system cooling along with BBQ terrace adjacent the kitchen complete the layout, whilst intercom entry and a "double-plus" garage with auto door accessed via St Kilda St conclude the offering.
A walk to Ormond Rd boutiques & cafes, and within easy reach of Elsternwick's station and amenities.
For more information on this beautifully renovated townhouse please contact Tom Davidson on 0488 017 500
Listing Website