Soaked in sun, spectacularly spacious and set above it all, this is Beaumaris apartment living like you’ve never seen before! Rising above the boutique Balcombe Park shopping strip with garaging via second private stair to the rear, this one-off whole-floor three bedroom plus home-office area, two bathroom apartment is a unique find; with living...
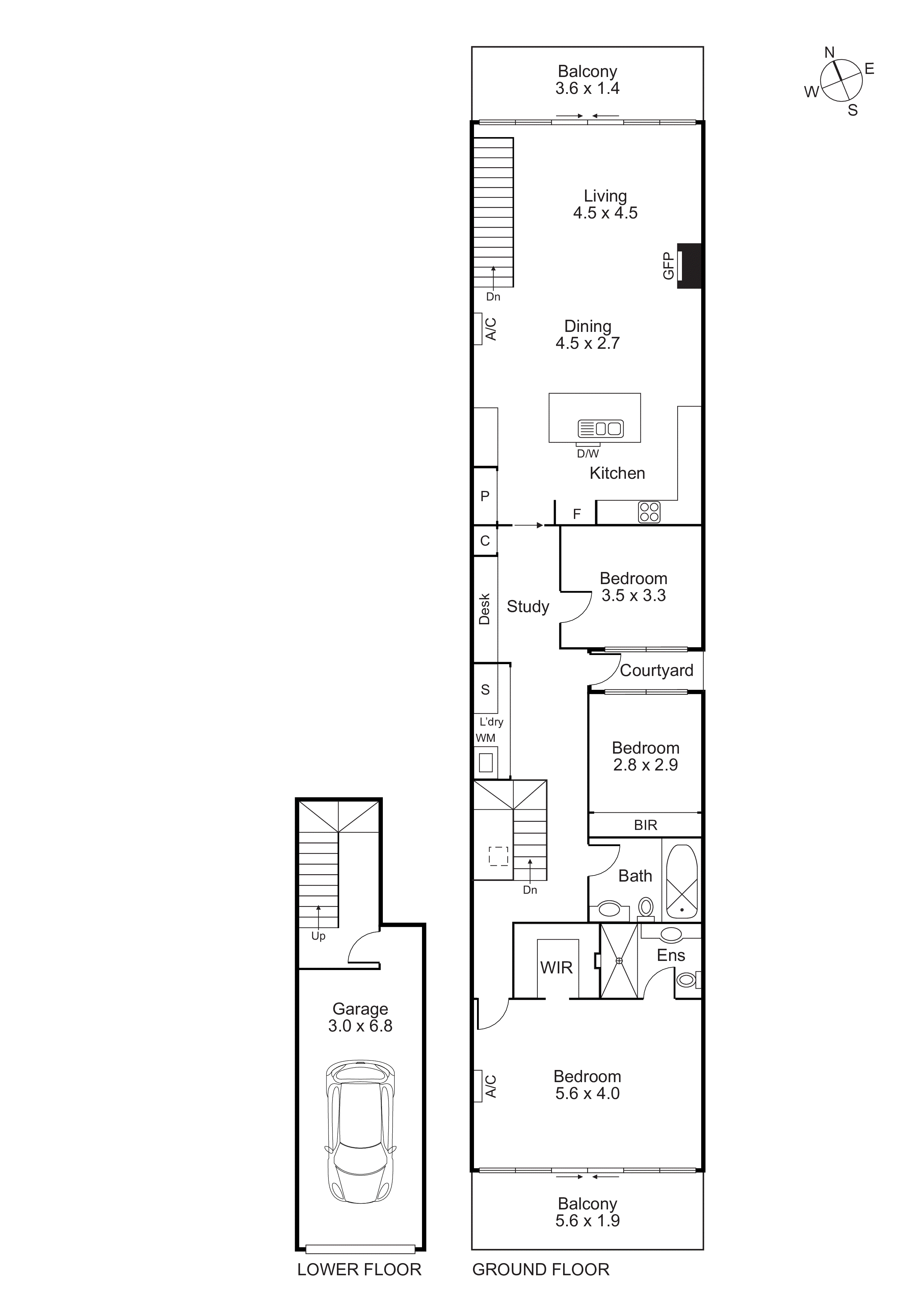
Soaked in sun, spectacularly spacious and set above it all, this is Beaumaris apartment living like you’ve never seen before! Rising above the boutique Balcombe Park shopping strip with garaging via second private stair to the rear, this one-off whole-floor three bedroom plus home-office area, two bathroom apartment is a unique find; with living stretching northwards from a Smeg kitchen to a full-width balcony...and a quiet rear wing of bedrooms stepping back to include a vast master-suite with a second wide balcony.
Freshly painted and newly polished with space to create a lounge-sized retreat in the expansive master-suite, this impressive apartment is custom-finished with fitted dual-workstation study area, and great storage including built-in and walk-in robes, plus an understair utility are to fit bikes, boards and bits.
Quality-detailed with sleek stone benchtops, rich solid hardwood floors, and floor-to-ceiling bathroom tiles, this reverse-cycle air-conditioned residence features a glowing gas-fire, airy ceiling fans, auto-garaging from a wide rear lane ...and an ever-evolving shopping strip at the door.
Step down to Chino & Co and raise a cup. Send the kids off to Beaumaris Secondary College and wave from the balcony. Find Balcombe Park at the door, Beaumaris Secondary College close by, the Concourse within a minute, golf courses all around ...and your unique lock-and-eave lifestyle here!