Meters from the beach in prized Beacon Cove, this north facing townhouse’s spacious, sun filled dimensions offer elegant accommodation with the advantage of two CBD view terraces and water outlooks - but with a twist!
In a clever Mirvac completed layout, two separate entries allow the ground floor to be used as a work from home business via Beach...
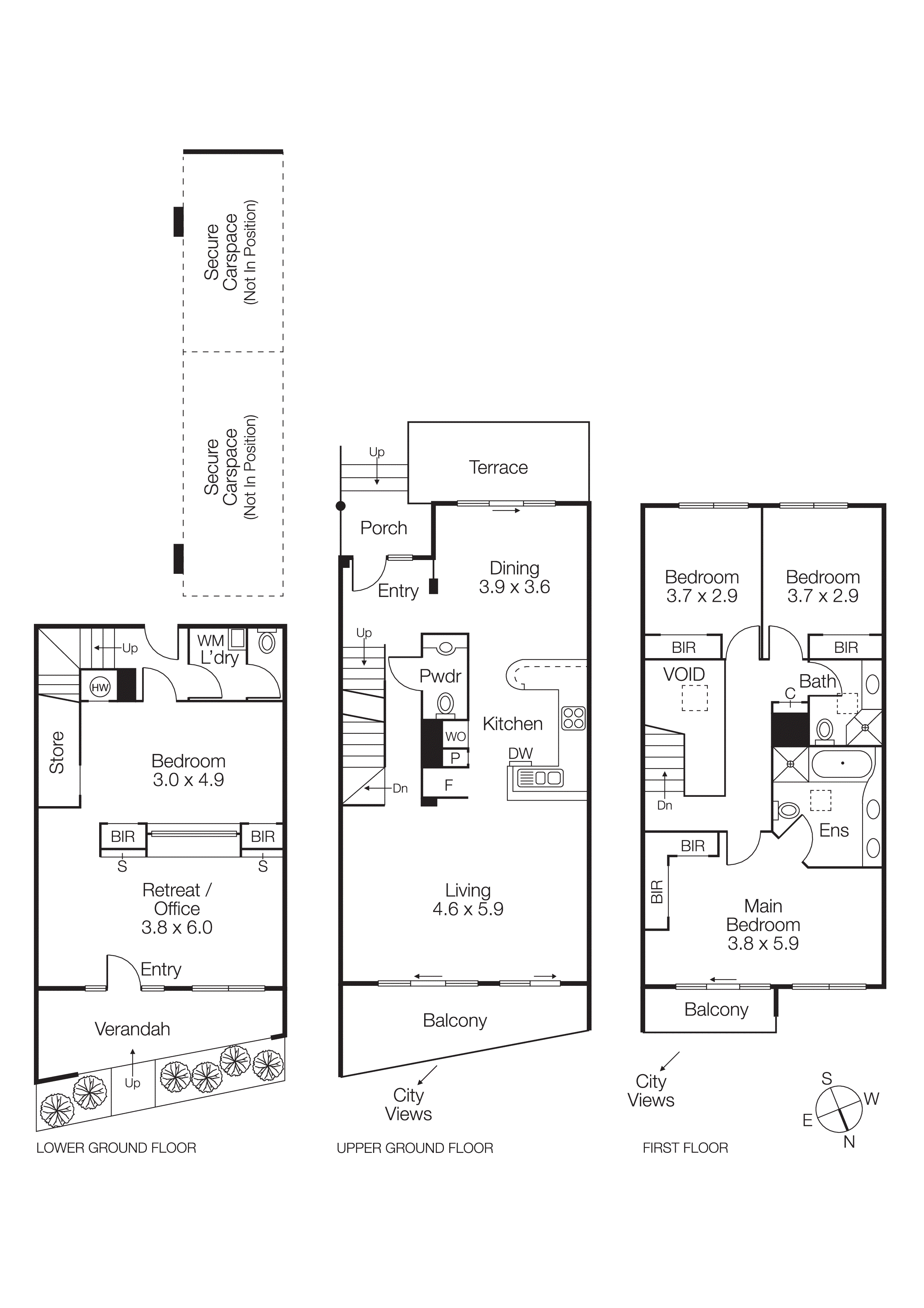
Meters from the beach in prized Beacon Cove, this north facing townhouse’s spacious, sun filled dimensions offer elegant accommodation with the advantage of two CBD view terraces and water outlooks - but with a twist!
In a clever Mirvac completed layout, two separate entries allow the ground floor to be used as a work from home business via Beach Street (RGZ1 zoning) whilst the two floors above can be accessed privately via a rear communal garden.
On the ground floor, a large partition providing extensive bookcase/office storage currently separates a home office from a guest bedroom with BIRs and is accompanied by a powder room and laundry.
Above, the living spaces flow naturally, catered to by a central open plan kitchen featuring granite benchtops and breakfast bar. Enjoy indoor/outdoor living with a choice between the north facing terrace for city skyline silhouettes or the peaceful rear patio for sunset and water views.
On the top floor, an immaculate bathroom complements three additional bedrooms, two with BIRs, the large main with twin BIRs, generous ensuite and sunny Juliet balcony for that perfect morning coffee.
Other features include efficient ducted heating/cooling, natural bamboo floors, high ceilings and light-filled atrium, internally accessed secure garage parking for two cars, and landscaped community gardens with fresh vegetables and herbs for your culinary pleasure. Stroll to the beach, Bay Street, Station Pier, reserve parkland and light rail links for a quick commute to the CBD.
ALL ENQUIRIES MUST INCLUDE A CONTACT NUMBER