Timelessly appealing and rich with character & charm, this freestanding c1915 Edwardian is idyllically positioned on one of Sandringham’s most sought-after tree-lined streets, just moments to sand and...
Sharing Listing
B 2 b 1 C 2
Buxton Sandringham
11 Bay Road,
SANDRINGHAM VIC
3191
Timelessly appealing and rich with character & charm, this freestanding c1915 Edwardian is idyllically positioned on one of Sandringham’s most sought-after tree-lined streets, just moments to sand and...
Timelessly appealing and rich with character & charm, this freestanding c1915 Edwardian is idyllically positioned on one of Sandringham’s most sought-after tree-lined streets, just moments to sand and sea.
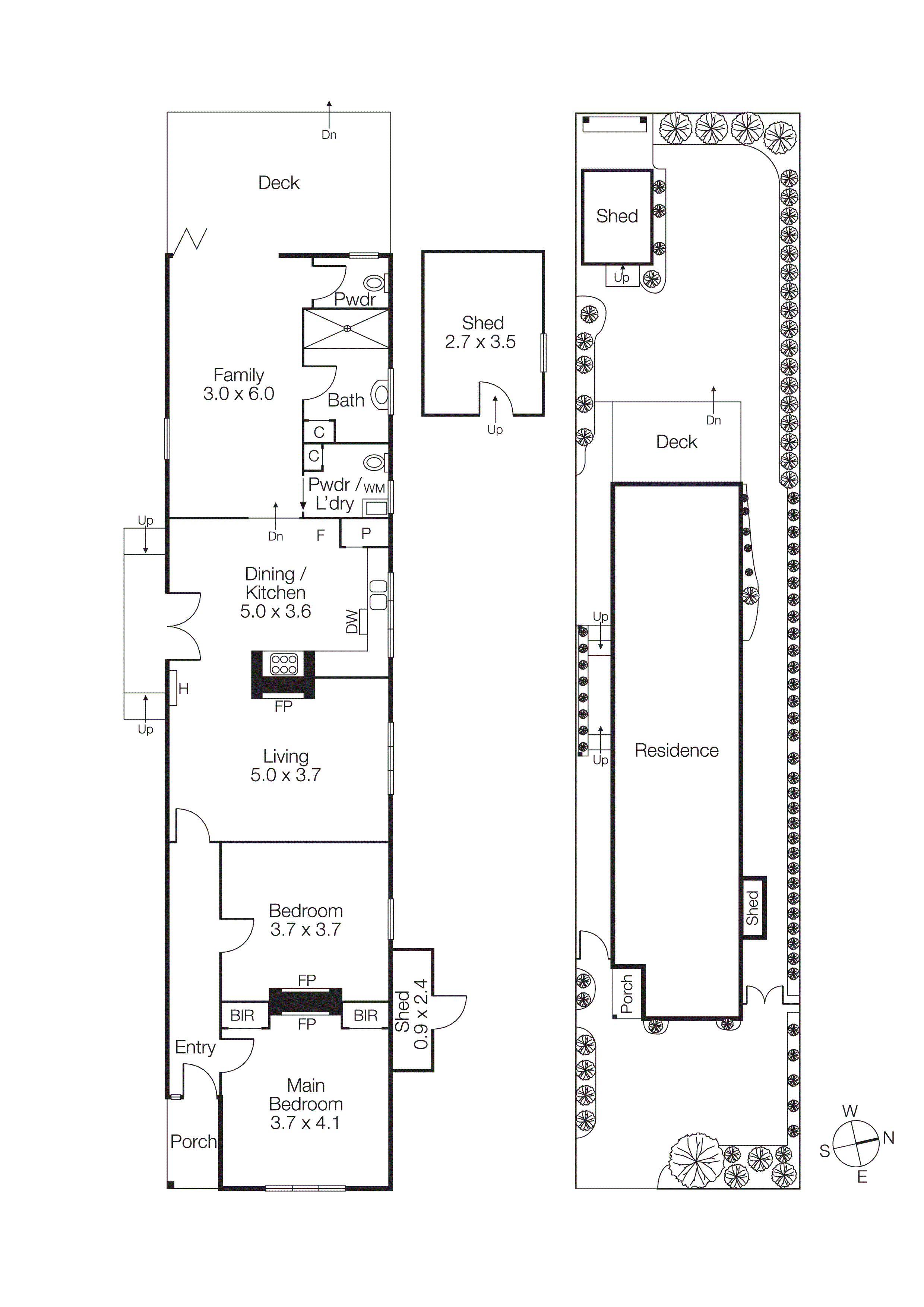
Picture-perfect outside - and both warm & welcoming inside - the beautiful sun-filled haven is ready to love whilst dishing up plenty of scope & space for further enhancements if desired. Accented by classic detailing such as intricate leadlight, decorative ceiling roses and glossy Baltic pine floors, among the accommodation highlights are two generous, robed bedrooms with ornate fireplaces plus an inviting lounge, adjacent dining area and Caesarstone kitchen with premium Smeg/Bosch appliances – a space centred around a striking, exposed brick fireplace.
A family room at the rear of the home is an invaluable inclusion. Here, banks of bi-folds extend the living outside to a fabulous alfresco deck with retractable awning and impeccably manicured gardens, creating an inviting indoor/outdoor entertaining space the entire family can enjoy together.
A bright family bathroom and two toilets are among the home’s practicalities, while ducted heating is also included along with a large laundry and off-street parking for up to two cars.
Sandringham Primary School is footsteps away while the village, station, parks and shops are all within a leisurely stroll. This prized beachside pocket is also within minutes of Bayside’s many elite private schooling options.
For more information about this picture-perfect period home contact Christian Hegarty or Stefan Delyster at Buxton Sandringham.
Timelessly appealing and rich with character & charm, this freestanding c1915 Edwardian is idyllically positioned on one of Sandringham’s most sought-after tree-lined streets, just moments to sand and sea.
Picture-perfect outside - and both warm & welcoming inside - the beautiful sun-filled haven is ready to love whilst dishing up plenty of scope...
Timelessly appealing and rich with character & charm, this freestanding c1915 Edwardian is idyllically positioned on one of Sandringham’s most sought-after tree-lined streets, just moments to sand and sea.
Picture-perfect outside - and both warm & welcoming inside - the beautiful sun-filled haven is ready to love whilst dishing up plenty of scope & space for further enhancements if desired. Accented by classic detailing such as intricate leadlight, decorative ceiling roses and glossy Baltic pine floors, among the accommodation highlights are two generous, robed bedrooms with ornate fireplaces plus an inviting lounge, adjacent dining area and Caesarstone kitchen with premium Smeg/Bosch appliances – a space centred around a striking, exposed brick fireplace.
A family room at the rear of the home is an invaluable inclusion. Here, banks of bi-folds extend the living outside to a fabulous alfresco deck with retractable awning and impeccably manicured gardens, creating an inviting indoor/outdoor entertaining space the entire family can enjoy together.
A bright family bathroom and two toilets are among the home’s practicalities, while ducted heating is also included along with a large laundry and off-street parking for up to two cars.
Sandringham Primary School is footsteps away while the village, station, parks and shops are all within a leisurely stroll. This prized beachside pocket is also within minutes of Bayside’s many elite private schooling options.
For more information about this picture-perfect period home contact Christian Hegarty or Stefan Delyster at Buxton Sandringham.
Buxton Sandringham
11 Bay Road,
SANDRINGHAM VIC
3191
We'll give you a clear, honest assessment based on real market insights, so you can make informed decisions with confidence.
Local knowledge. Proven results. Trusted advice.
