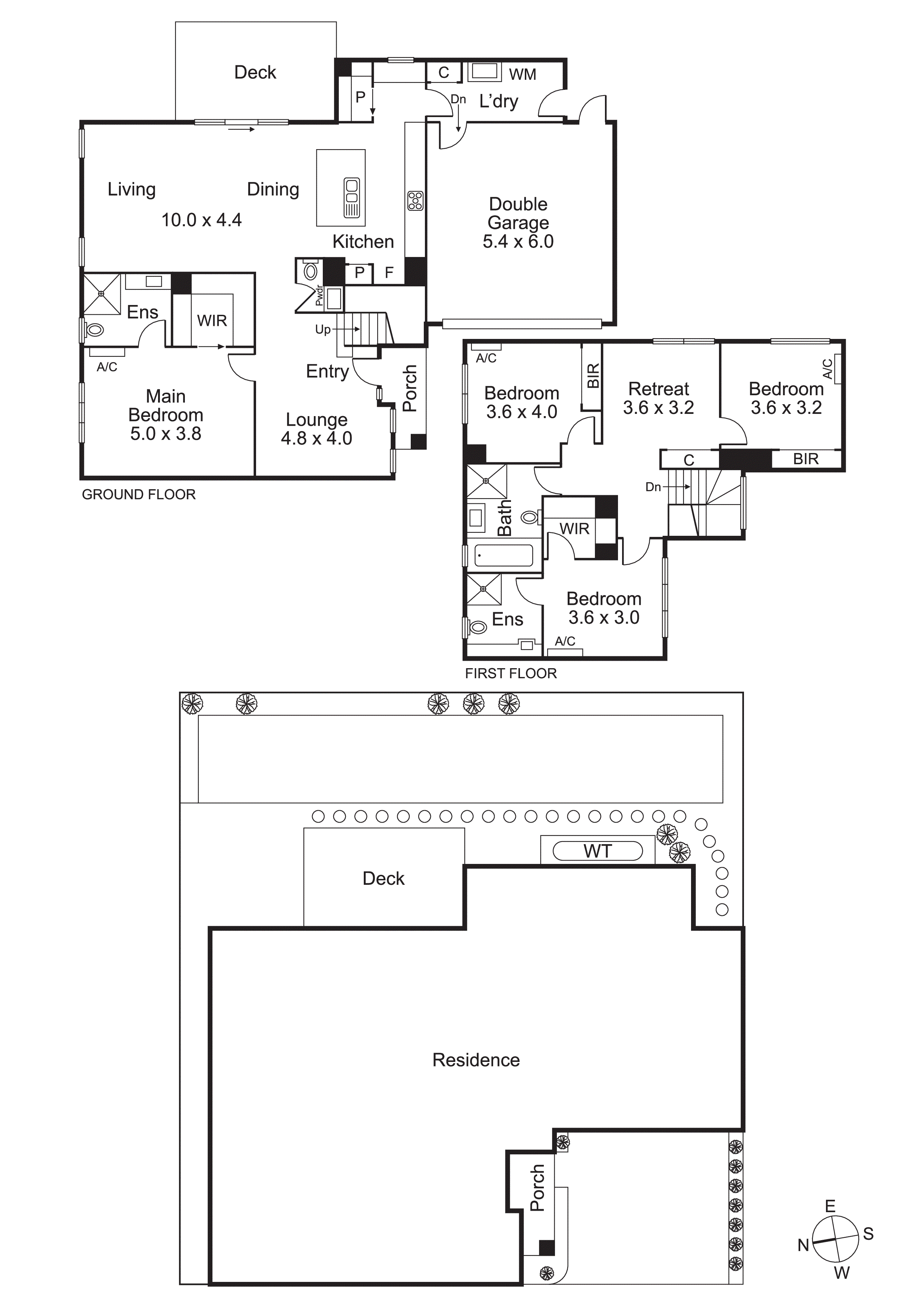
Step up to family prestige with the greatest of ease in this high-amenity locale; right between the park, a walk to the station and good schools! Adaptable by design with clever dual-suite accommodation, this impressive four bedroom, three bathroom rear home is high on peace in a quiet sitting-room, big on amenity in garden-wrapped family living...
Step up to family prestige with the greatest of ease in this high-amenity locale; right between the park, a walk to the station and good schools! Adaptable by design with clever dual-suite accommodation, this impressive four bedroom, three bathroom rear home is high on peace in a quiet sitting-room, big on amenity in garden-wrapped family living and large on privacy in a treetop first-floor lounge.
Prestige styled with a family-size island bench, butler’s servery area and walk-in pantry for the pure-white European appliance kitchen, this family-wise design features floor-to-ceiling tiled bathrooms (including two private ensuites), great storage including two walk-in plus built-in robes, and a huge laundry fitted to accommodate a sizeable family.
Climate-controlled by ducted heating plus multiple reverse-cycle air-conditioners and secured by alarm and Lumi Smartphone video-entry, there are luxe finishes including wideboard floors, streamlined block-out blinds and stone benchtops...and the added luxury of a ducted vacuum system. Wrapped by perfect-sized lawned gardens with decking to entertain and a double auto-garage to fit the fleet, there’s all you need here for an easy family life!
On high at the rear with tranquil treetop views, this highset home is situated between Jordan Reserve and Bayview Park, close to Riversdale Golf Course, Mount Waverley Village and Chadstone shopping centre, there’s something for everyone; including Jordanville station within a walk, and the city within an easy road commute via the M1. For more information about this substantial rear home contact Alex Spanidis at Buxton Hampton East on 0409 116 929