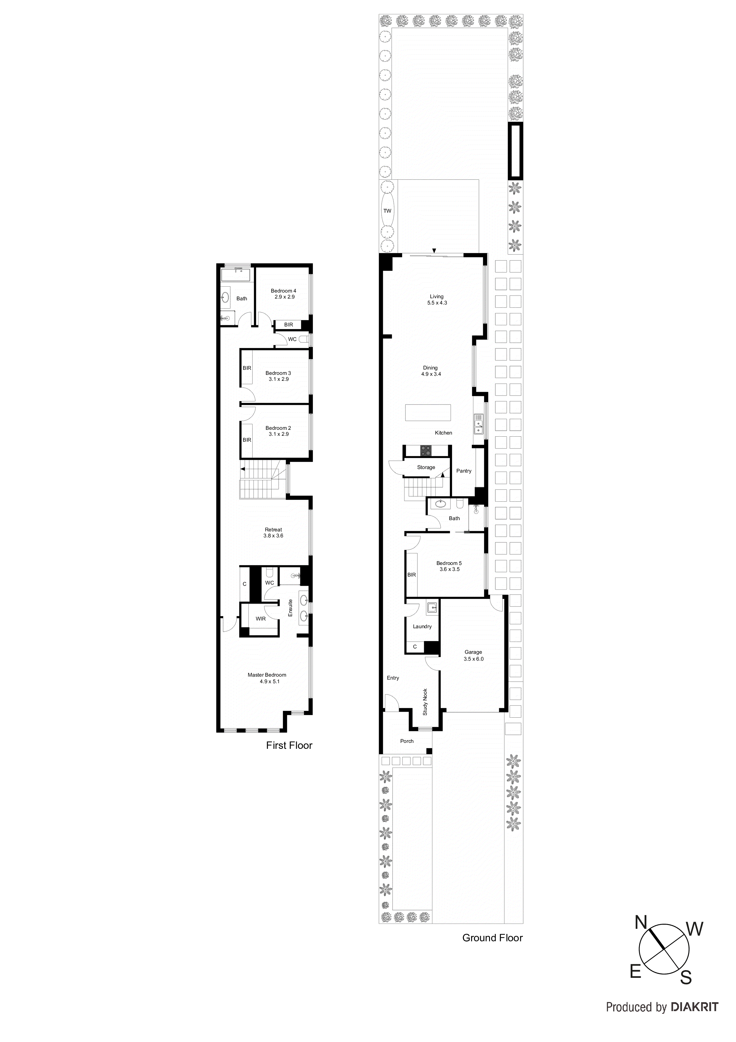
This supersized townhouse will be sure to impress. The family friendly floor plan can accommodate those who need a bedroom on the ground floor. Or those families who are both working from home. With a North facing rear yard, that is generous enough to fit a pool. Features of this wonderful home include:
- Five bedrooms, the master is extremely...
This supersized townhouse will be sure to impress. The family friendly floor plan can accommodate those who need a bedroom on the ground floor. Or those families who are both working from home. With a North facing rear yard, that is generous enough to fit a pool. Features of this wonderful home include:
- Five bedrooms, the master is extremely spacious and includes a walk-in robe and full ensuite with his and hers basin’
- Bedroom two is on the ground floor and has a walk through ensuite Whilst all other bedrooms include built in robes
- Central kitchen with functional workspace. 900ml stainless steel appliances, dishwasher and island bench with breakfast bar
- Open plan living and meals area is North facing and includes a lovely garden outlook
- Upstairs living room, the perfect space for a children's retreat
- Three bathrooms in total
- Separate laundry
- Ducted heating and evaporative cooling upstairs
- Single lock up garage with car space behind
Positioned walking distance to the beach and Bonbeach station, sporting grounds, parks, public transport and cafes, this home is surrounded by other good quality properties and lovely neighbours. Local school and childcare are plenty. along with the Bonbeach farmer’s market.