An inspired architectural design completely in sync with St Kilda’s cool inner urban culture provides the perfect low maintenance lifestyle partner in this fabulous freestanding home just a short walk from both Carlisle and Fitzroy Streets. Hidden behind a secure high fenced entry, impressively generous proportions expand out over two floors with...
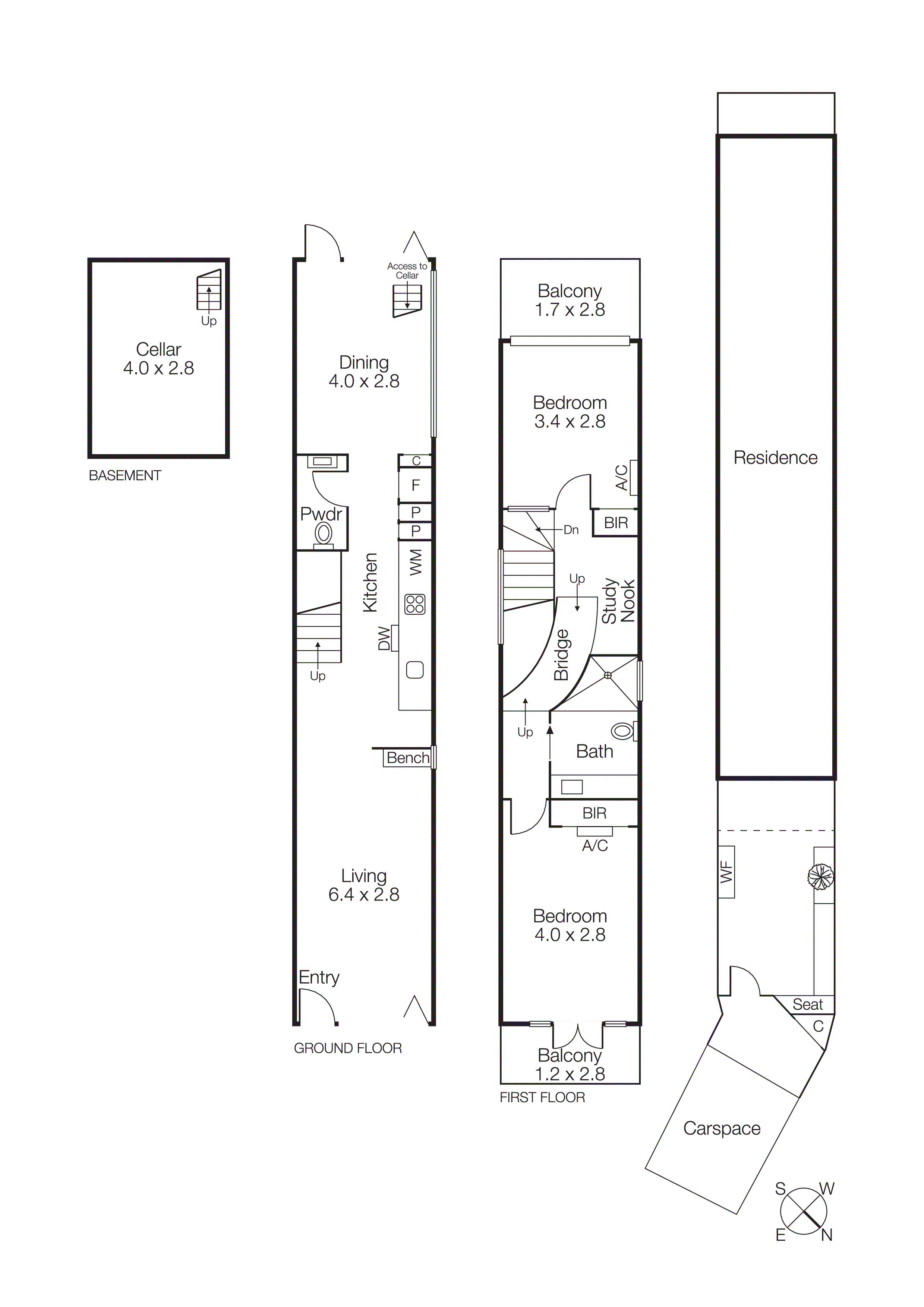
An inspired architectural design completely in sync with St Kilda’s cool inner urban culture provides the perfect low maintenance lifestyle partner in this fabulous freestanding home just a short walk from both Carlisle and Fitzroy Streets. Hidden behind a secure high fenced entry, impressively generous proportions expand out over two floors with two separate living domains, multiple alfresco zones, a fitted study nook and the inner-city luxury of a large basement/storage room and OSP. On the ground floor, high ceilings and polished concrete floors create a fabulous sense of space in an easy open plan format that places an integrated kitchen with Corian benchtops, twin pull out pantries and breakfast bar at the centre of spacious living and dining areas, each drawing back to their own private courtyards. Above, a stylish central bathroom and fitted study nook are bookended by two inviting bedrooms that feature BIRs and their own balconies. Full of abundant natural light, this is an ideal home for easy living and effortless indoor/outdoor entertaining with a concealed ground floor powder room, subfloor heating, split cooling, laundry facilities and off street car space. Walk to the beach and foreshore promenade, Luna Park, the Palais, Acland Street, foreshore restaurants and bars, three tram lines, light rail links and Albert Park Lake. What a lifestyle!