Gorgeous Art Deco appeal seamlessly gives way to vast architectural spaces at this captivating family home which plays host to an utterly stunning transformation.
True to its heritage, the original part of the home still proudly showcases a stucco exterior with lush Waterfall curves; whilst inside gorgeous geometric motif ceiling panels star....
Gorgeous Art Deco appeal seamlessly gives way to vast architectural spaces at this captivating family home which plays host to an utterly stunning transformation.
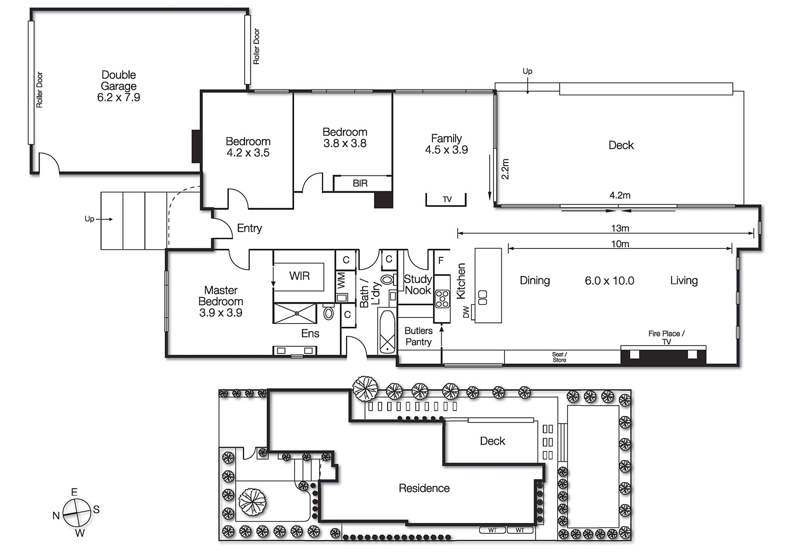
True to its heritage, the original part of the home still proudly showcases a stucco exterior with lush Waterfall curves; whilst inside gorgeous geometric motif ceiling panels star. Located to the front, the three bedrooms are decorated in exquisite Art Deco tones; the master bedroom dishing up a generous WIR and striking en suite complete with oversized mosaic tiled shower.
Showcasing a spectacular architect designed renovation, the 1930's charm gives way to a vaulted ceiling soaring above walls of sliding glass. The sundrenched open plan living & dining zone with Heat 'n' Glo fireplace flows seamlessly with another sun/lounge room. The gourmet Caesarstone & stainless steel kitchen boasts Smeg and Miele appliances plus a large butler's pantry. By throwing open the enormous glass sliding doors on both zones the indoors melds effortlessly with the vast alfresco deck and highlights the beautiful private landscaped gardens, including mature olives trees; a tranquil and pleasurable space.
Tugging at the heart strings, this beautiful home includes a study, family bathroom with hidden laundry, ample storage along with zoned heating/air-conditioning, state of the art security, CCTV, plus shade awnings to the deck, double auto garage & water tanks.
A rare opportunity to secure a home of this calibre, close to all that is synonymous with a Brighton way of life including shops, fine schools & the bay.
Listing Website