55 Island Point Avenue, Waterways

$1,818,888

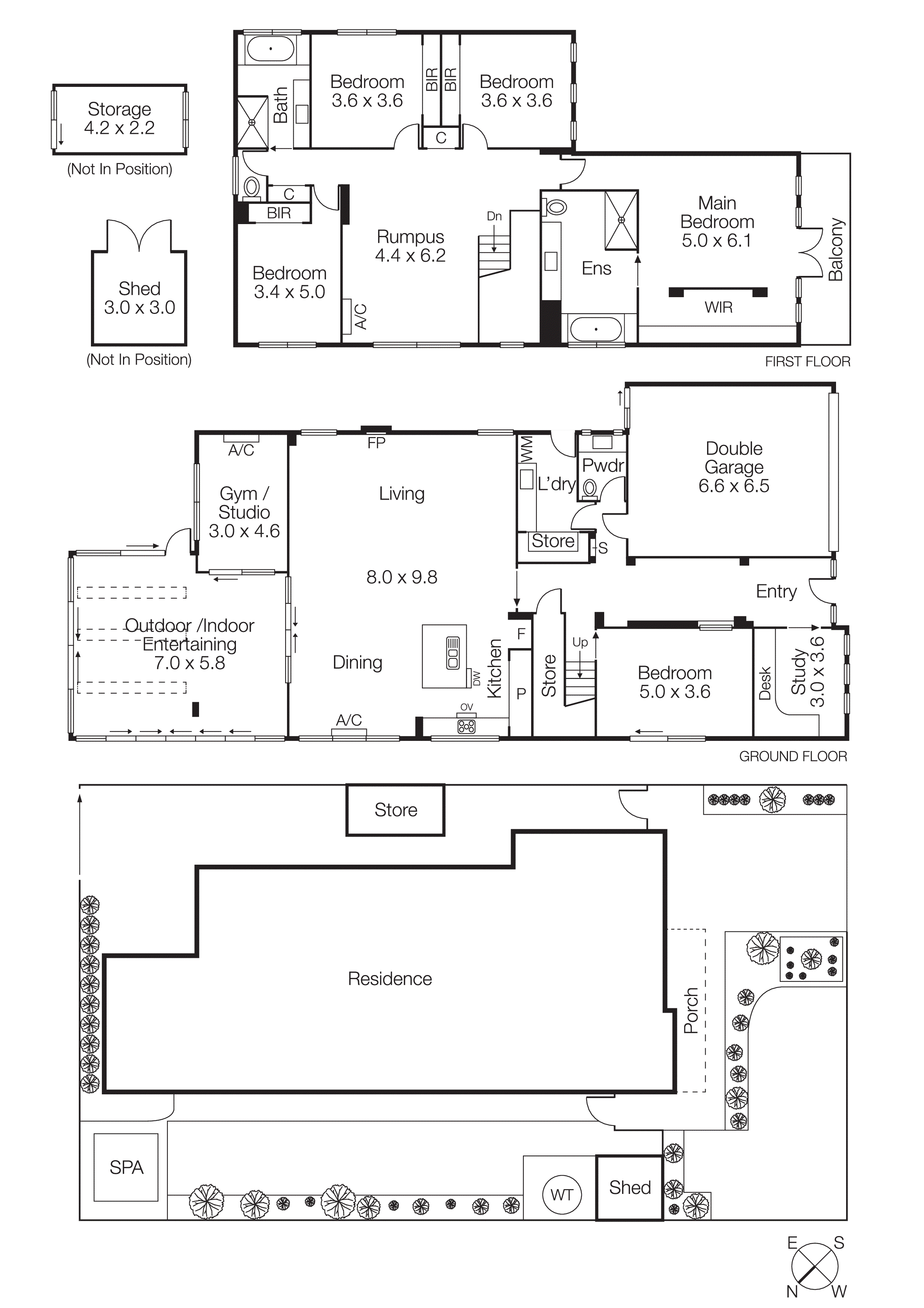
B 6 b 2 C 4 Land area 700 m²

Buxton Dingley Village
1/128 Centre Dandenong Road,
Dingley Village VIC 3172

Get in touch

High Calibre Family Sanctuary

Space, serenity and versatility are key at this beautifully presented 6+bedroom home, which is positioned and poised for a family lifestyle to envy. Set amongst impeccably manicured gardens on its...

View More

High Calibre Family Sanctuary

Space, serenity and versatility are key at this beautifully presented 6+bedroom home, which is positioned and poised for a family lifestyle to envy.
Set amongst impeccably manicured gardens on its generous allotment of 700sqm, the home sprawls across two uncompromising levels and is ready to be enjoyed. It features a fitted home office with...

View More

Location  

Get Directions
Map showing location of 55 Island Point Avenue, Waterways VIC 3195

Buxton Dingley Village 1/128 Centre Dandenong Road,
Dingley Village VIC 3172

Get in touch

Want to know what your property's worth?

Looking to buy or sell a property? Click below to receive a full report highlighting market value, recent sales, rental history, suburb report and more.
Download Property Report

Enquire about this property

Submitting...

Success! Your enquiry has been submitted.

There was an error submitting the form. Please try again later.