Ripe and ready to renovate on a generous 678sqm (approx.) corner block, this appealing home is packed with potential for budget-conscious buyers ready to roll up their sleeves.
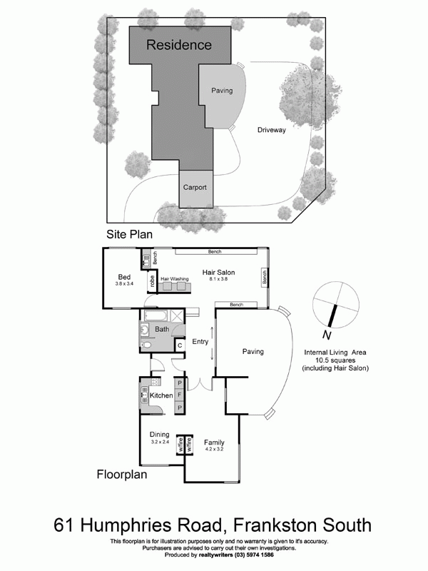
Currently configured to operate as a private hairdressing business, reinstating 2 bedrooms in the salon space is a straightforward project plus theres loads of room to...
Ripe and ready to renovate on a generous 678sqm (approx.) corner block, this appealing home is packed with potential for budget-conscious buyers ready to roll up their sleeves.
Currently configured to operate as a private hairdressing business, reinstating 2 bedrooms in the salon space is a straightforward project plus theres loads of room to extend under the roofline or explore the possibilities for a 2 unit development (STCA).
A pleasant walk to the Norman Ave shops, Baden Powell Reserve and situated within the sought-after Frankston High School zone, this is easily one of leafy Frankston Souths most astute buys, offering genuine reward for endeavour and brilliant potential for future capital gain.
A sensitive renovation will allow you to retain the homes charming art deco inspired flourishes, polished floorboards and open fireplace for instant character, while extending under the roofline or beyond will allow the necessary space for contemporary family living in this well-loved neighbourhood.
Set beyond a curved patio, the existing layout offers an open-plan salon space (originally 2 of the homes 3 bedrooms), formal lounge and dining room with open fireplace, basic kitchen and bathoom plus laundry.
Extras include 2 reverse-cycle air conditioning units and a drive-through carport to the large parking bay.
THIS PROPERTY MUST GO TO AUCTION.