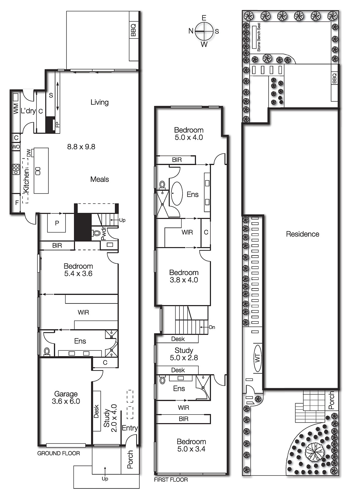
Find a sanctuary of luxury and light in the latest home from Haven Properties! Set in a creative landscape from COS Design, this just-completed up to four bedroom/up to two living zone residence showcases this leading developers signature quality in an innovative 3.5 bathroom multi-suite design featuring a grand ground-floor master-suite, a choice...
Find a sanctuary of luxury and light in the latest home from Haven Properties! Set in a creative landscape from COS Design, this just-completed up to four bedroom/up to two living zone residence showcases this leading developers signature quality in an innovative 3.5 bathroom multi-suite design featuring a grand ground-floor master-suite, a choice of living on each level and fitted studies upstairs and down - all designed to maximise a light-catching northerly orientation.
Open up to the sun in a skylit entry and window-walled study set behind slat-screening. Illuminate entertaining with a sparkling skylit Smeg appliance kitchen beside expansive living-dining and an all-weather entertaining area with a floating BBQ bench. Then step up to a versatile second living zone or fourth bedroom with screened views down into the garden. But the best spot to find the sun is the gorgeous garden-access master-suite with 'his and hers' WIR, an extra bank of built-ins and a deluxe double ensuite (with dual vanity and double shower).
With Quantum Quartz benchtops, smoked European Oak floors and Roger Seller bathroom fittings adding luxury to the light, this climate-controlled and alarmed home shines bright with every conceivable extra (AiPhone video-intercom, ducted vacuum, gas-fireplace, water-tank and auto-garage) and designer detail (including bespoke cabinetry, LED lighting and 3m ceilings).
Situated in the Brighton Golf Course precinct, a short walk to South Rd private schools and a minute away from Church St's cafe society and Hampton St's retail therapy, this is Brighton East's best and brightest! For more information about this light-filled luxury home contact Christian Hegarty
Listing Website