Renowned for having one of the finest period streetscapes in Melbourne, Hampton’s Castlefield Heritage Precinct features tree-lined avenues and picture-perfect homes. Upholding the area’s standing is...
Renowned for having one of the finest period streetscapes in Melbourne, Hampton’s Castlefield Heritage Precinct features tree-lined avenues and picture-perfect homes. Upholding the area’s standing is this first-class Californian brimming with contemporary style. An architect’s own home, this family dream is designed to relax, enjoy and entertain in sundrenched Bayside surroundings.
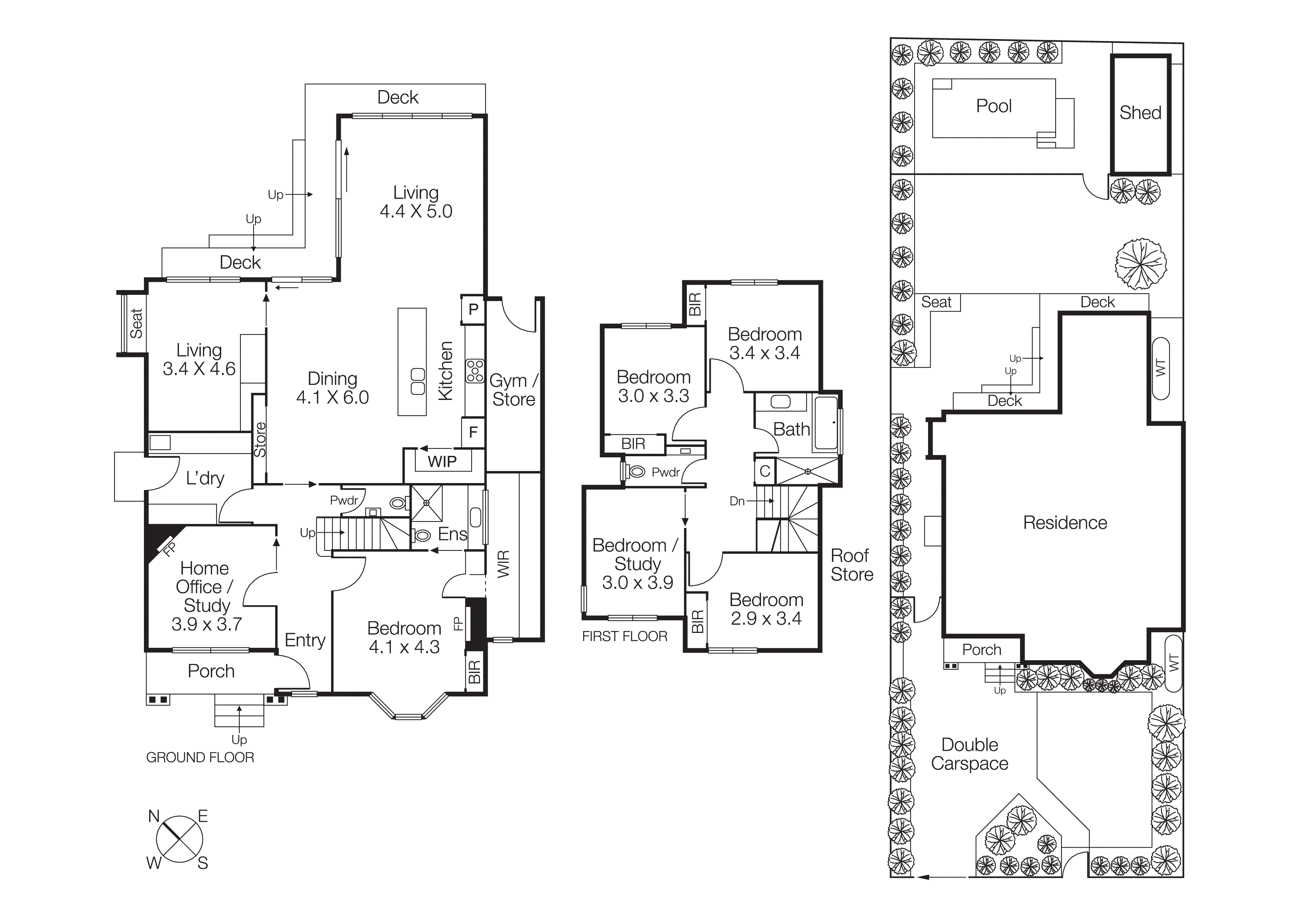
The premium location is only a few minutes walk from some of the area’s best amenities including Haileybury, St Leonard’s, Castlefield Reserve and Hampton Street. Graced with exceptional street presence, the home makes a lasting impression with its lush, landscaped gardens and flawless, two-storey facade. Outward-focused interiors are flooded with natural light, while superbly zoned spaces effortlessly cater to family needs.
Beautifully connected to its designer pool and garden surrounds, the heart of this property is an expansive family domain. A statement pendant defines the dining zone, extensive glazing frames the lounge, and an entertainer’s kitchen (walk-in pantry) revolves around a sleek island bench. Throw open a clever cavity door to reveal a spacious kids’ retreat, boasting a sunny window seat and custom storage, to provide sought after privacy within the family zone.
Outside a purpose-built, paved entertaining area overlooks the sparkling, solar heated pool. Beneath a modern pergola, integrated bench seating offers a picturesque spot to dine al fresco, while kids relish the blissfully private backyard. The northerly rear also hosts a full-size workshop and multi-purpose storeroom ideal for bikes or gym equipment.
With up to five bedrooms and an inviting home office, the property is designed to grow with your family. The ground level features a generous main suite highlighted by its bay window and gas fireplace as well as a ‘secret’ walk-in robe and stone vanity en suite. The skylit staircase leads up to the kids’ quarters offering three more robed bedrooms, a designer bathroom and powder room, and a lounge or versatile fifth bedroom.
Impeccably presented with meticulous attention to detail, it offers superior comfort and convenience with extras such as a brilliant laundry/mud room (floor-to-ceiling storage, indoor drying system and access to auto-gated parking), a powder room and abundant custom joinery. Hydronic heating, reverse cycle air conditioning, plantation shutters and a security alarm. Close to shops, cafes, restaurants, schools and the beach, this ideal family haven is everything you have been looking for and more.
For more information about this California dream with all the extras please contact Stefan Whiting at Buxton Brighton on 0411 473 153.
