NOTE THAT THIS PROPERTY IS UNFURNISHED
Welcome to this sophisticated and spacious three bedroom, two bathroom residence situated in one of Melbourne’s most coveted locations.
This stylish home is split across three contemporary designed levels – comprising entry hall, two light and bright downstairs bedrooms with wall to wall built in robes,...
NOTE THAT THIS PROPERTY IS UNFURNISHED
Welcome to this sophisticated and spacious three bedroom, two bathroom residence situated in one of Melbourne’s most coveted locations.
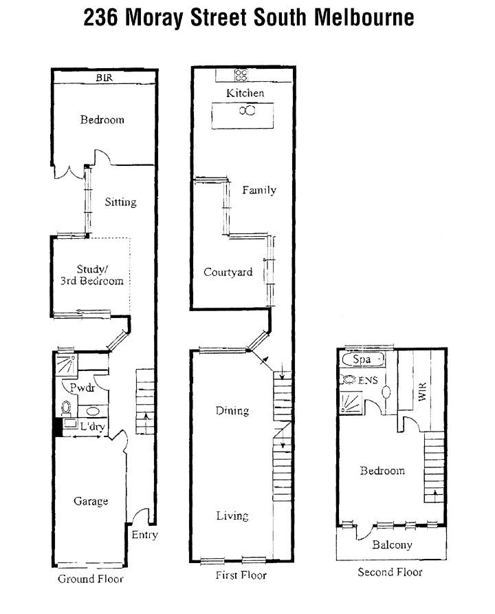
This stylish home is split across three contemporary designed levels – comprising entry hall, two light and bright downstairs bedrooms with wall to wall built in robes, adjoining garden atriums, separate study, linen cupboard, European laundry and single remote controlled garage.
The second floor is designed for spacious open plan living with built in cabinetry/storage, large kitchen with stainless steel gas appliances, dishwasher and floorboards, looking out onto the balcony area. Walk upstairs to the master bedroom, with separate balcony with views of the city skyline. The ensuite is equipped with a deep and double sized spa, separate shower and toilet.
Only a short walk to Clarendon Street, South Melbourne market, Albert Park Lake, only nine minutes to the city and moments to the beach!
Welcome home!