49 Axford Crescent, Oakleigh South

$960,000

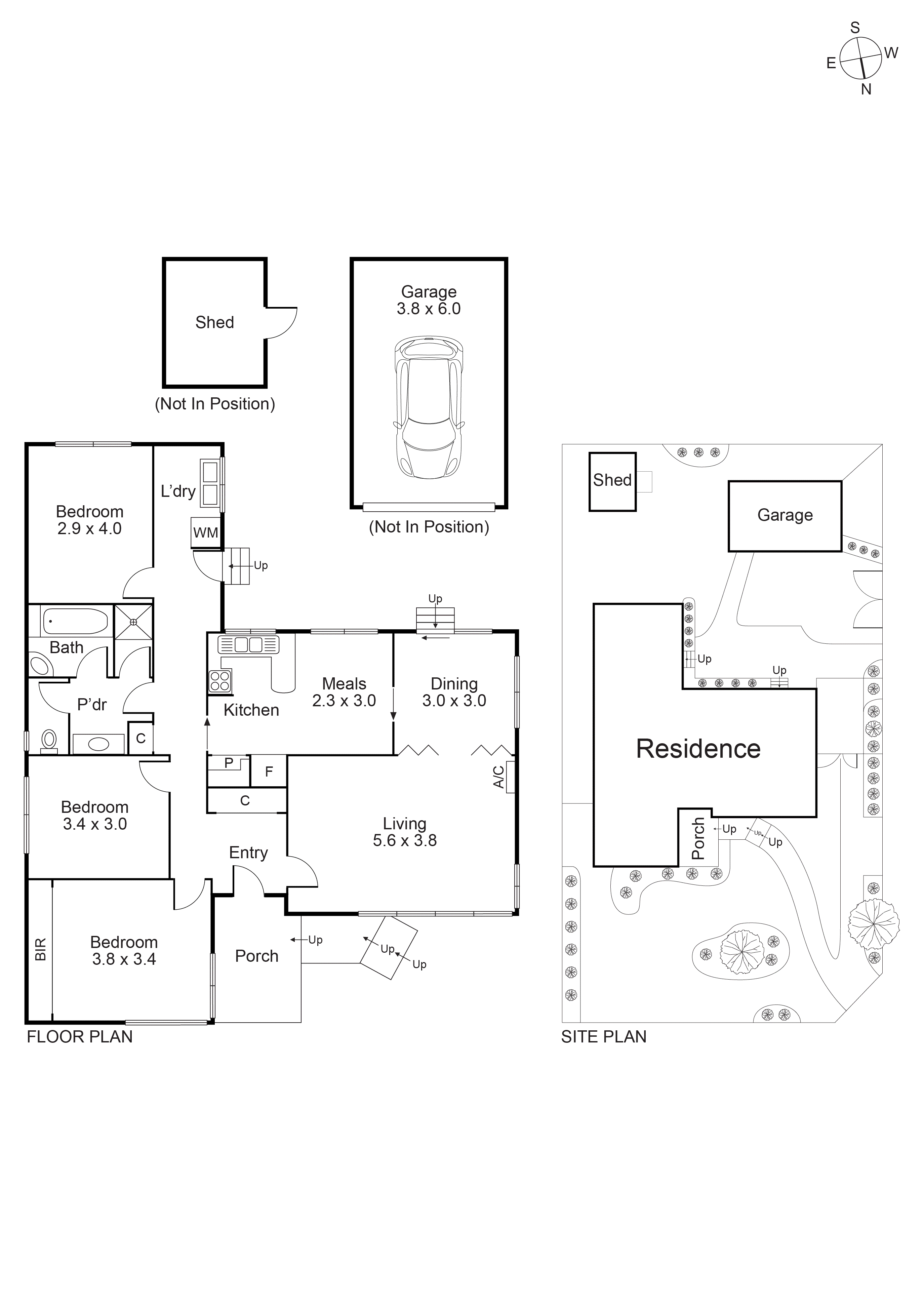
B 3 b 1 C 2

Buxton Bentleigh
Level 1, 269 Centre Road,
BENTLEIGH VIC 3204

Get in touch

Outstanding family value with loads of potential

Corner vintage beauty, versatile land, and outstanding family value! Representing rare corner value in this highly-sought, low-traffic locale, this approx 545sqm (inc splay) dual frontage property...

View More

Outstanding family value with loads of potential

Corner vintage beauty, versatile land, and outstanding family value! Representing rare corner value in this highly-sought, low-traffic locale, this approx 545sqm (inc splay) dual frontage property offers exciting renovation potential in yesterday’s super-solid brick-veneer home ...and invaluable new home possibilities for the future.

Appreciate...

View More

Location  

Get Directions
Map showing location of 49 Axford Crescent, Oakleigh South VIC 3167

Buxton Bentleigh Level 1, 269 Centre Road,
BENTLEIGH VIC 3204

Get in touch

Want to know what your property's worth?

Looking to buy or sell a property? Click below to receive a full report highlighting market value, recent sales, rental history, suburb report and more.
Download Property Report

Enquire about this property

Submitting...

Success! Your enquiry has been submitted.

There was an error submitting the form. Please try again later.

Similar Properties

Sold
sold

Undisclosed

1/30 Delia Street, Oakleigh South VIC 3167

B 3 b 1 C 2 Land area 350 m²

Sold
sold

$870,000

39A Luntar Road, Oakleigh South VIC 3167

B 3 b 1 C 1

Sold
sold

$955,000

1/18 Acacia Avenue, Oakleigh South VIC 3167

B 3 b 1 C 2