In a world of its own in a quiet rear corner position, this renovated 2 bedroom home shines and is ready to be enjoyed.
Ready to relax and enjoy the stylish kitchen, newly renovated bathroom and details including new flooring throughout, new window furnishings and split system to the living zone.
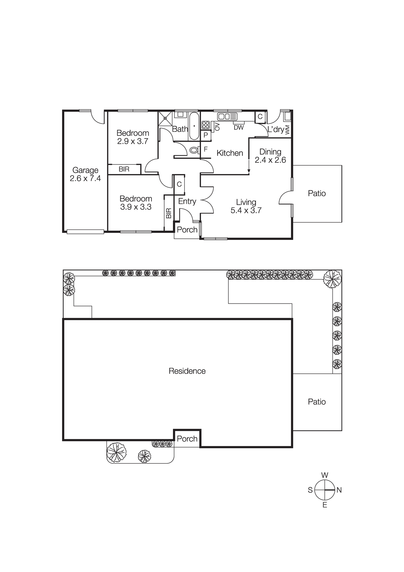
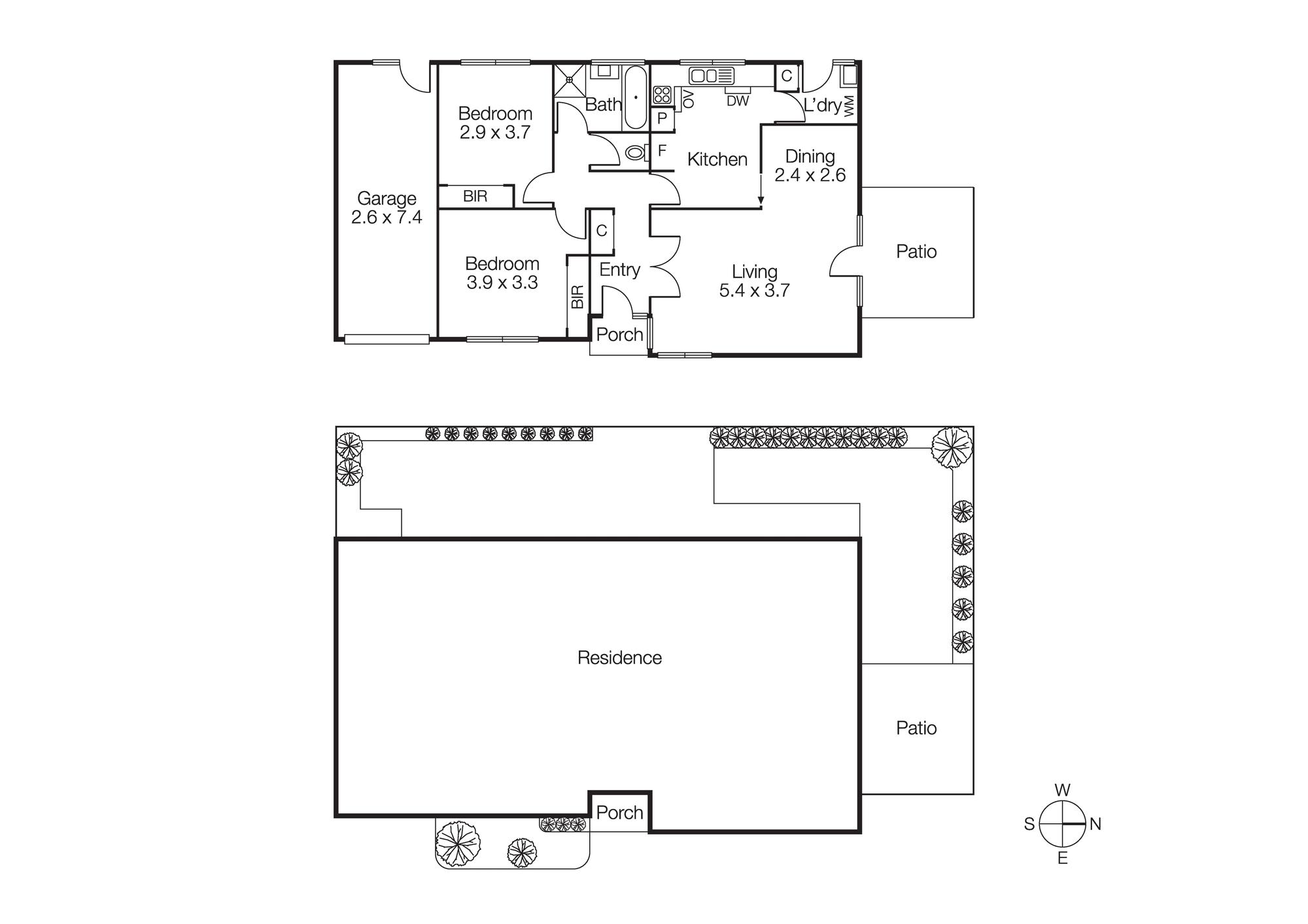
The layout effortlessly connects the living...
In a world of its own in a quiet rear corner position, this renovated 2 bedroom home shines and is ready to be enjoyed.
Ready to relax and enjoy the stylish kitchen, newly renovated bathroom and details including new flooring throughout, new window furnishings and split system to the living zone.
The layout effortlessly connects the living area to the dining space and kitchen, creating an engaging environment for both relaxation and entertainment. The kitchen, practical and neatly appointed, provides ample counter space and storage, perfect for culinary enthusiasts.
There's nothing to do here except entertain in the outdoors, soak up the sun and discover the lifestyle in this surprisingly central location.
So quiet to the rear of this distinctive recycled-brick boutique group, this renovated hideaway is so close to all. Mentone station and shopping are within an easy walk, beaches and Southland are within minutes and the CBD is within a direct road or rail commute!
You MUST register for an inspection and we ask that you also confirm your attendance. AN AGENT WILL NOT BE PRESENT IF YOU DO NOT REGISTER and CONFIRM. Your consideration and co-operation is appreciated.