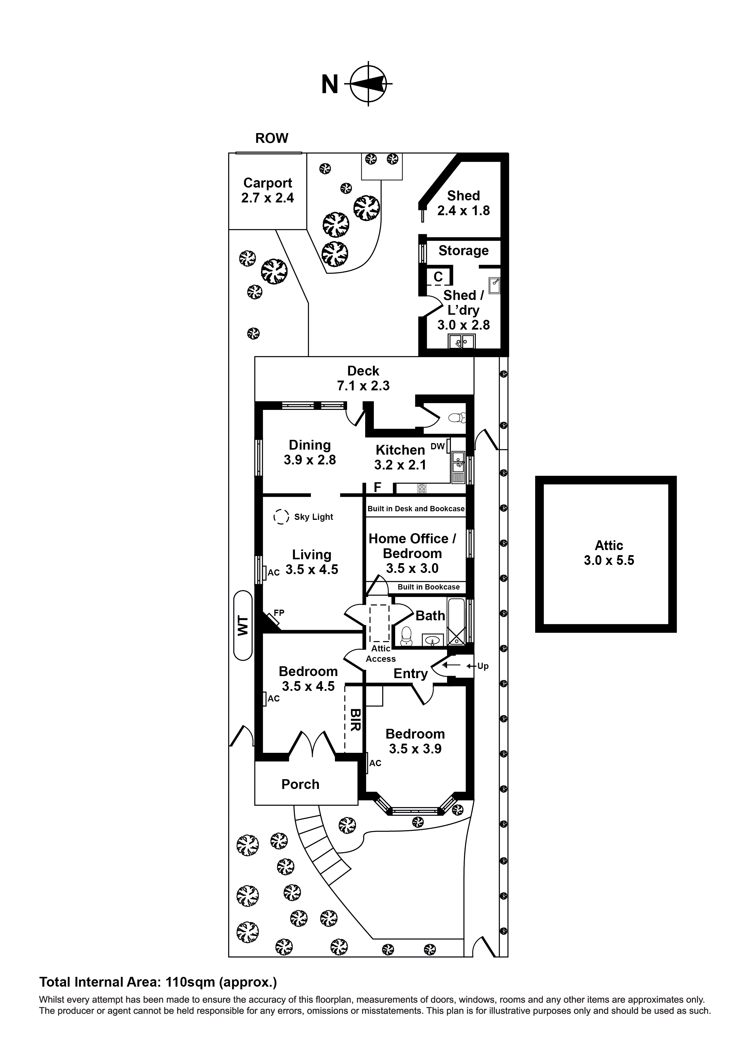
Set in a highly coveted location, this fabulous Edwardian/California Bungalow home offers three generously-sized double bedrooms, two with convenient robes and a third bedroom/home office with custom-built bookcases and a two-workstation bench in messmate timber. With easy-care timber floors throughout the main section of the home, there’s a...
Set in a highly coveted location, this fabulous Edwardian/California Bungalow home offers three generously-sized double bedrooms, two with convenient robes and a third bedroom/home office with custom-built bookcases and a two-workstation bench in messmate timber. With easy-care timber floors throughout the main section of the home, there’s a formal lounge and a separate dining room that adjoins the well-appointed kitchen equipped with Bosch dishwasher and Whirlpool appliances. Outdoors, choose from enjoying the landscaped garden from the front verandah as the sun sets or the serenity of your own outdoor sanctuary in the backyard.
Stay comfortable year-round with three Daikin reverse cycle air-conditioning units. Embrace sustainability with solar panels and a solar hot water system. Other features include an external water tank and ample space for storage with a spacious shed, plus a substantial 16.8 square meters of dust-proof storage in the roof and off-street parking/carport at the rear.
This convenient location offers the perfect blend of tranquillity and accessibility. Walk to Kingsville Primary School, with the CBD is only 7.5km away with easy public transport options. Situated amidst lush public parks with a playground and basketball ring just down the road, and moments away from the vibrant neighbouring communities of Seddon and Yarraville with cafes, restaurants, shops and hotspots like the Seddon Wine Store and Waa Waa plus activities like barre classes at My Mama Said or community sport at the Footscray Lacrosse Club.