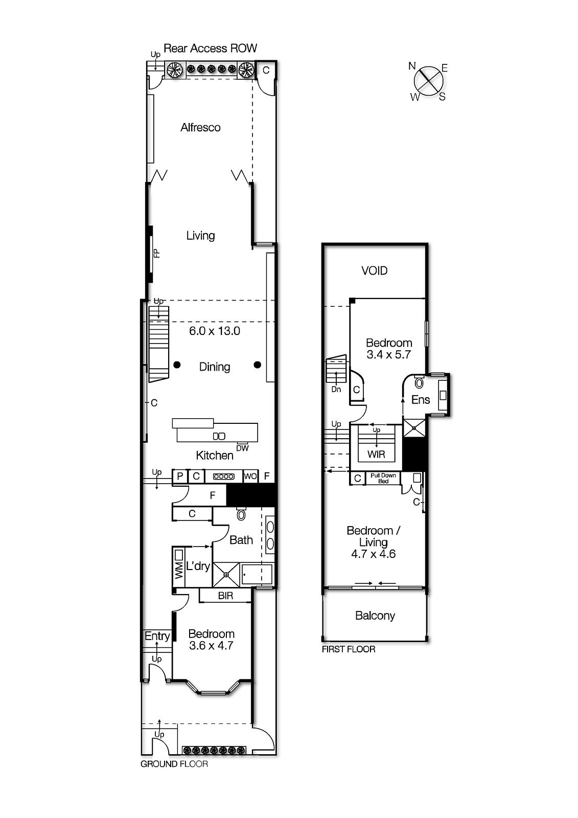
Sophisticated contemporary design, exceptional craftsmanship and fluid indoor/outdoor entertaining spaces unite in this grand scale double-storey residence, in a prized setting directly overlooking Port Phillip Bay, surrounded by the elite amenities of Albert Park, Port Melbourne and St Kilda. Combining function and form, the vast, versatile and...
Sophisticated contemporary design, exceptional craftsmanship and fluid indoor/outdoor entertaining spaces unite in this grand scale double-storey residence, in a prized setting directly overlooking Port Phillip Bay, surrounded by the elite amenities of Albert Park, Port Melbourne and St Kilda. Combining function and form, the vast, versatile and sundrenched layout, crafted from a natural palette of rich hardwood timber and glass, harmoniously merge luxury living with natural environs across two custom-appointed levels. Comprising; generous double bedroom with built-in robes and stunning uninterrupted water views, spacious north facing informal living/dining domain, served by an epicurean kitchen featuring Miele appliances, integrated fridge, stainless steel benchtops & mirrored splashback, opens out through bi-fold door to the alfresco entertaining deck and low maintenance elevated gardens, modern central bathroom with sunken bath, his & her basins and bay glimpses, plus separate laundry. Upstairs features light filled master bedroom with walk-in and built-in robes, tasteful tiled ensuite with bay outlook, second living room or optional 3rd bedroom with concealed kitchenette, opening to private terrace offering panoramic bay views as a virtual extension of the internal/external space. Additional highlights include; reverse cycle heating/cooling, imposing skylights, integrated gas fireplace & TV, automated pergola, plantation shutters, down lights throughout, bespoke light fittings, ample storage, paved blue stone veranda and secure entrance. Close proximity to Bay Street & Albert Park's retail and dining precincts, pristine beach & bike trails, excellent schools, transport, with quick and easy access to CBD/freeways. Rear access to home with the option to convert back to off-street parking if required.
For private inspections and to discuss further please contact Emily Whitehead 0420 997 276 or Katrina O'Brien 0411 626 394
All enquires must include a contact number.
Listing Website