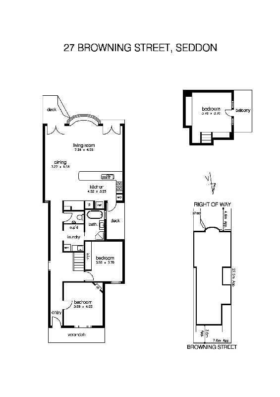
Sensational presentation house to call home Press metal ceiling entry and polished floors Massive open plan living, all natural light Open plan kitchen and all mod cons Large 3 bedrooms and...
We'll give you a clear, honest assessment based on real market insights, so you can make informed decisions with confidence.
Local knowledge. Proven results. Trusted advice.