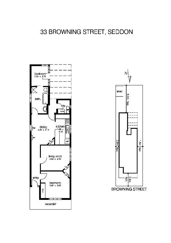
Charming home - Appealing streetscape/facade - That's stood the test of time (almost 100 years), built in 1914! Behind the block fronted w/b and bullnose with fretwork are Many more period features...
We'll give you a clear, honest assessment based on real market insights, so you can make informed decisions with confidence.
Local knowledge. Proven results. Trusted advice.