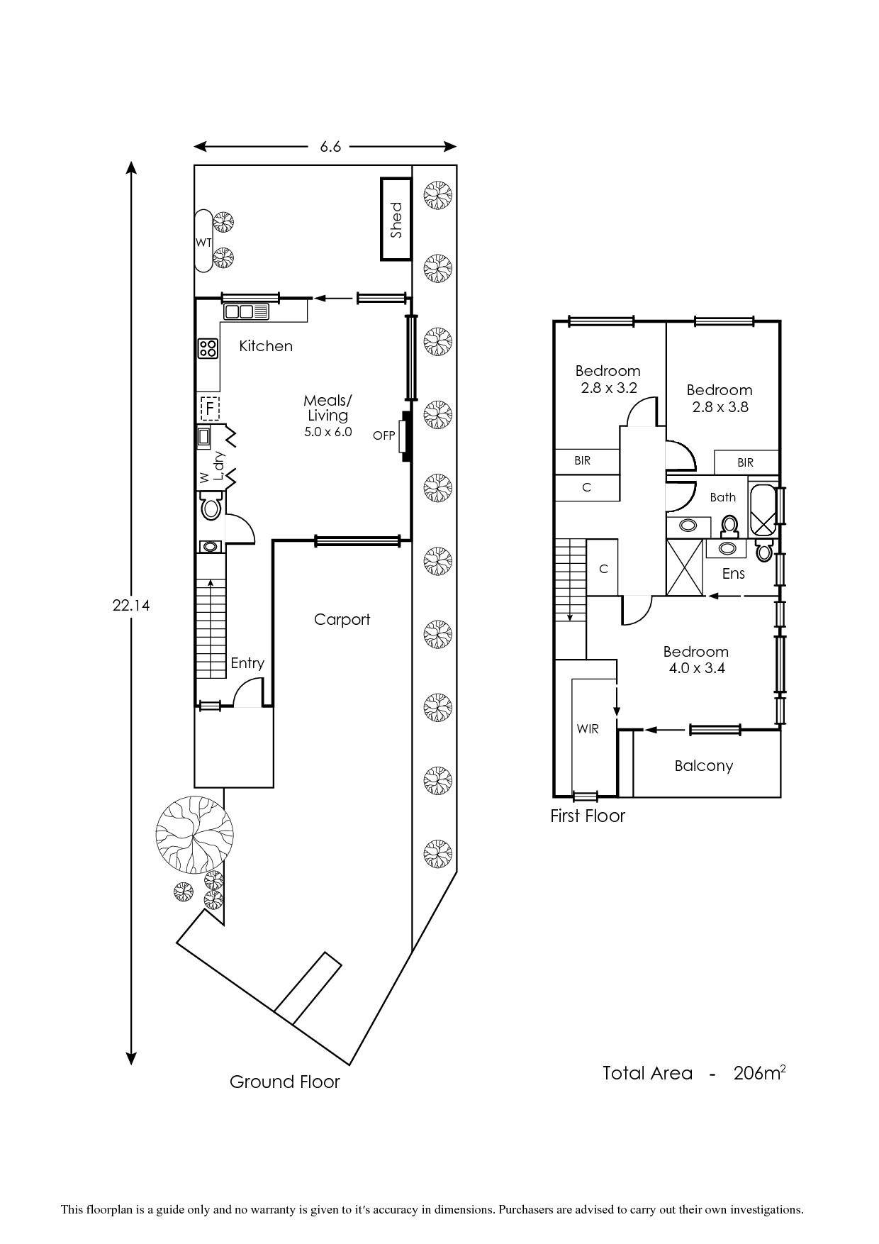
- Its northerly aspect captures an abundance of natural light
- Enormous open plan living/kitchen area opening onto garden/yard area and shed
- Downstairs, entrance hall, powder room, laundry
- Spacious master bedroom with W.I.R and full ensuite
- Two Further bedrooms with B.I.R'S and central bathroom
- The perfect first home or long term...
