Elevate your lifestyle with luxury prospects on the high-side of Clinton. This property offers an exceptional opportunity to build a brand new, multi-level home or two (STCA) on 628sqm (approx.) in a sought after pocket of Brighton East. Go up and capture tree-top vistas and Bayside sunsets, and down to maximise potential with a brilliant basement...
Elevate your lifestyle with luxury prospects on the high-side of Clinton. This property offers an exceptional opportunity to build a brand new, multi-level home or two (STCA) on 628sqm (approx.) in a sought after pocket of Brighton East. Go up and capture tree-top vistas and Bayside sunsets, and down to maximise potential with a brilliant basement level, the chance to make your mark on the area’s evolving streetscape is extremely enticing.
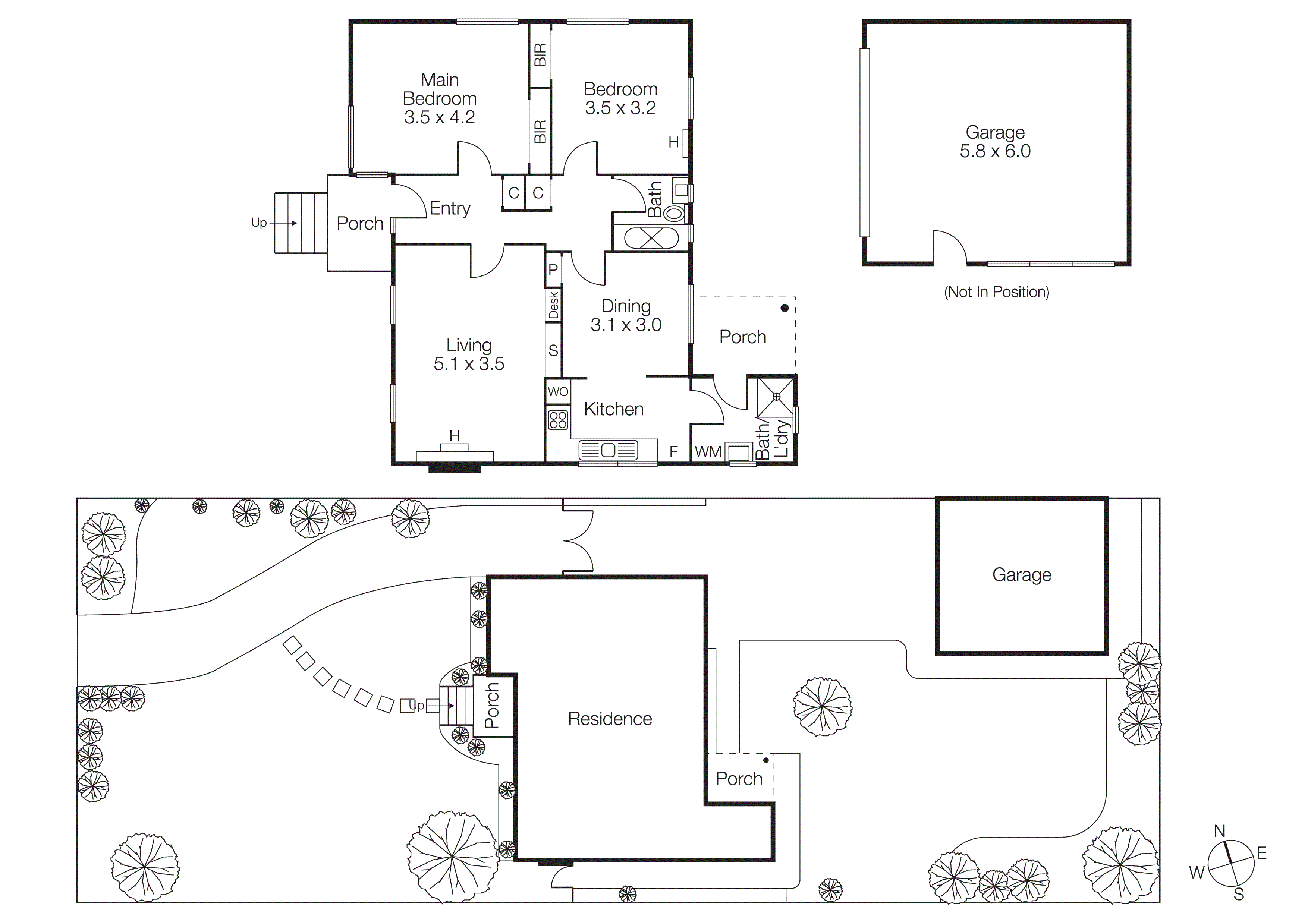
In mostly original condition, the existing clinker-brick classic offers two bedrooms (built-in robes), a light-filled lounge, spacious kitchen and dining room, and a retro bathroom. Also featuring a broad 15.95m frontage with a sweeping driveway that leads to a garage and a sunny north-easterly backyard. However, it’s the space to build a dream family home to the highest specification or explore the possibility of an architect-designed dual occupancy (STCA) that is truly exciting here.
Zoned for Gardenvale Primary and Brighton Secondary College, and in walking distance to Little Brighton Reserve and the Hawthorn Road tram (Melbourne University and the city), this neighbourhood is in high demand. Close to Centre Road’s shops and transport, as well as Brighton’s elite schooling, shopping and dining options, and the beach, this is an outstanding opportunity for upscale living. Aim high in a quiet yet convenient Bayside location.
For more information about this elevated new home site please contact John Clarkson at Buxton Brighton on 0408 153 045.