Moments to Southland, well-serviced by public transport and within a stroll of glorious parklands & championship golf courses, Cheltenham’s coveted ‘Pennydale’ is a neighbourhood with enormous family appeal. And what better setting from which to relish it all than this stunning 4-bedroom, 2-bathroom haven.
Instantly appealing, the home opens to...
Moments to Southland, well-serviced by public transport and within a stroll of glorious parklands & championship golf courses, Cheltenham’s coveted ‘Pennydale’ is a neighbourhood with enormous family appeal. And what better setting from which to relish it all than this stunning 4-bedroom, 2-bathroom haven.
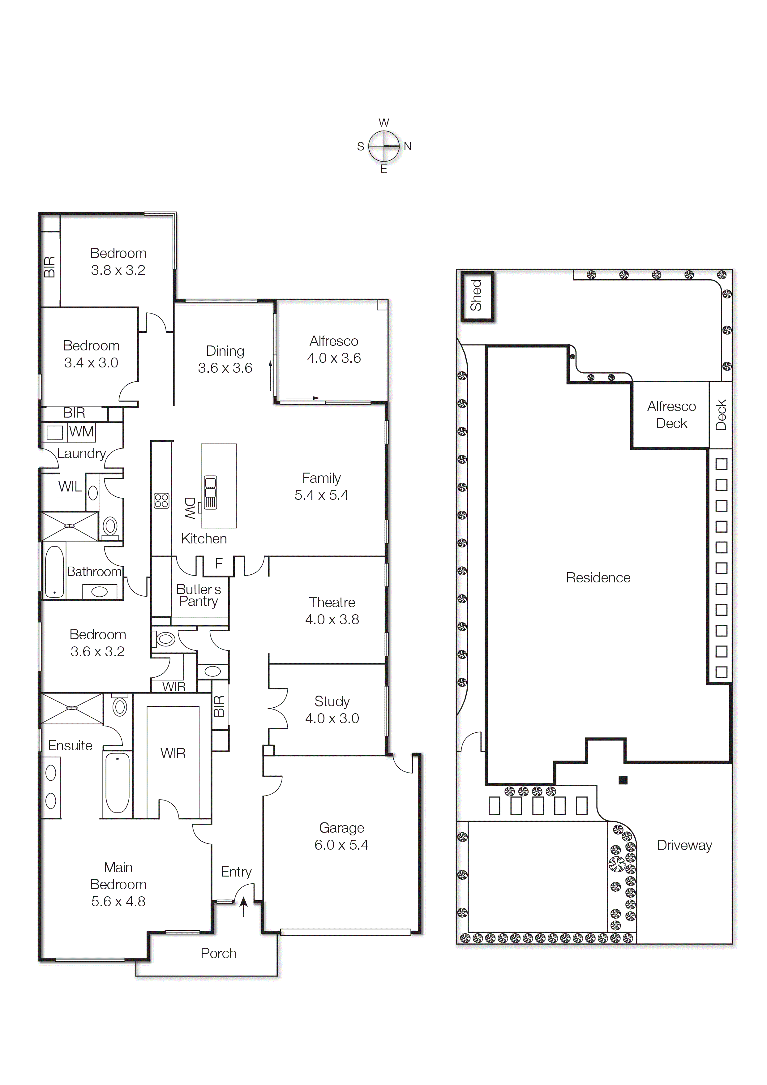
Instantly appealing, the home opens to interiors that are impeccably presented and stylishly appointed throughout. Enhanced by chic wide-board flooring and quality new carpets, the practical layout will please families of all ages and phases with accommodation comprising a choice of living areas – including a tranquil lounge & open plan living/dining zone as well as a flexible work-from-home office. There is also a peacefully positioned and extremely spacious master suite, separate children’s wing and first-class gourmet kitchen with quality appliances and a large walk-in pantry.
Outside is equally as impressive. Here, a covered alfresco deck with retractable awning extends the entertaining space into the child and pet-friendly back yard for endless family enjoyment – there is even room for a pool if desired (STCA).
Additional highlights include ducted heating/cooling, ducted vacuum, split system heating/cooling, a guest powder room plus a large laundry with ample storage & outdoor access. There are also external blinds on all north and west-facing windows, retractable flyscreens and a double garage with handy house access.
Cheltenham and Southland railway stations are close by for a stress-free commute, while popular cafes, retail attractions, well-regarded schooling options and the bay are all merely minutes away.
For more information about this beautiful family haven contact Kylie Charlton or Jasmine Younger at Buxton Sandringham.