Expressions of Interest: Monday 6th May at 5:00pm unless sold prior
Situated on over 1,000 sqm in one of the best pockets in Chelsea this rare investment or development opportunity is not to be missed. The site has previously approved plans and permits for four units and currently includes two stand alone homes which can be updated and renovated...
Expressions of Interest: Monday 6th May at 5:00pm unless sold prior
Situated on over 1,000 sqm in one of the best pockets in Chelsea this rare investment or development opportunity is not to be missed. The site has previously approved plans and permits for four units and currently includes two stand alone homes which can be updated and renovated or provide an investment return whilst you prepare for your development project.
Chelsea has a proven track record with development and strong resales down the track. Capitalize on the wide street frontage and deep block to build two, three or up to four units on this large allotment of land (STCA).
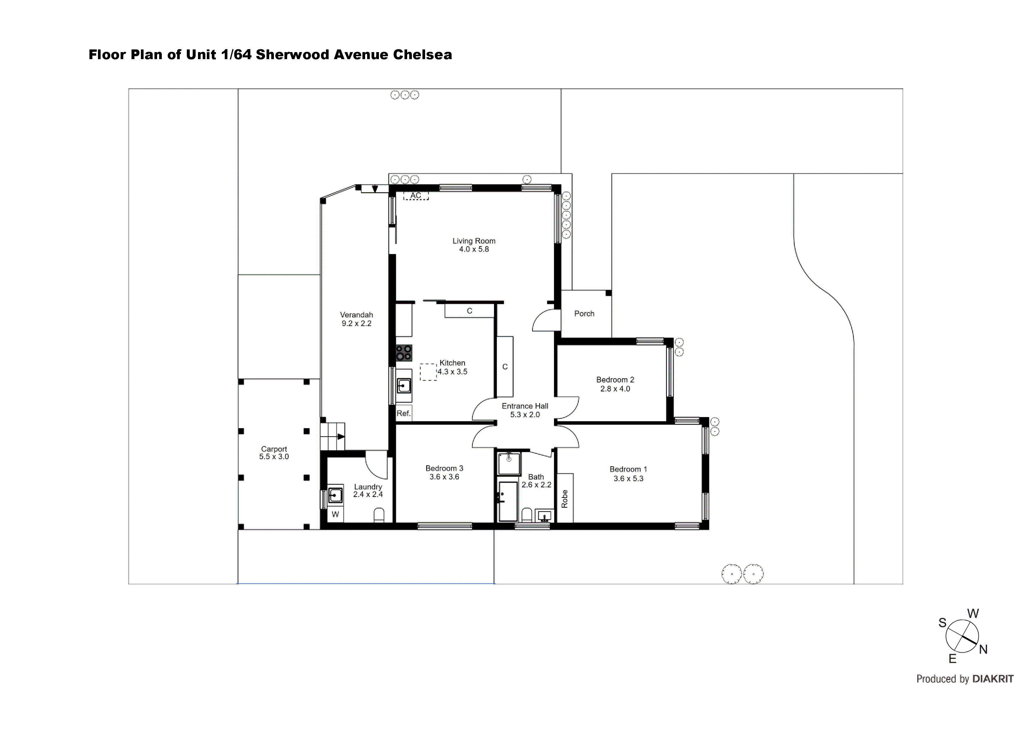
Alternatively, the current dwellings are both three bedroom, one bathroom and can be updated and sold separately (two titles) or provide the ideal long term investment with strong rental returns and capital growth.
Perfectly positioned in the heart of Chelsea within walking distance to Chelsea Beach, shopping strip, updated trainline, schools and parks. For more information on this fantastic opportunity please call James French on 0434 955 657 or Ryan Hammer on 0432 939 260.