A dynamic street presence and easy-care, North facing gardens are a striking introduction to this brand-new showpiece of modern design where glass, timber, stone and luxurious finishes combine to...
A dynamic street presence and easy-care, North facing gardens are a striking introduction to this brand-new showpiece of modern design where glass, timber, stone and luxurious finishes combine to spectacular effect, over two sensational levels.
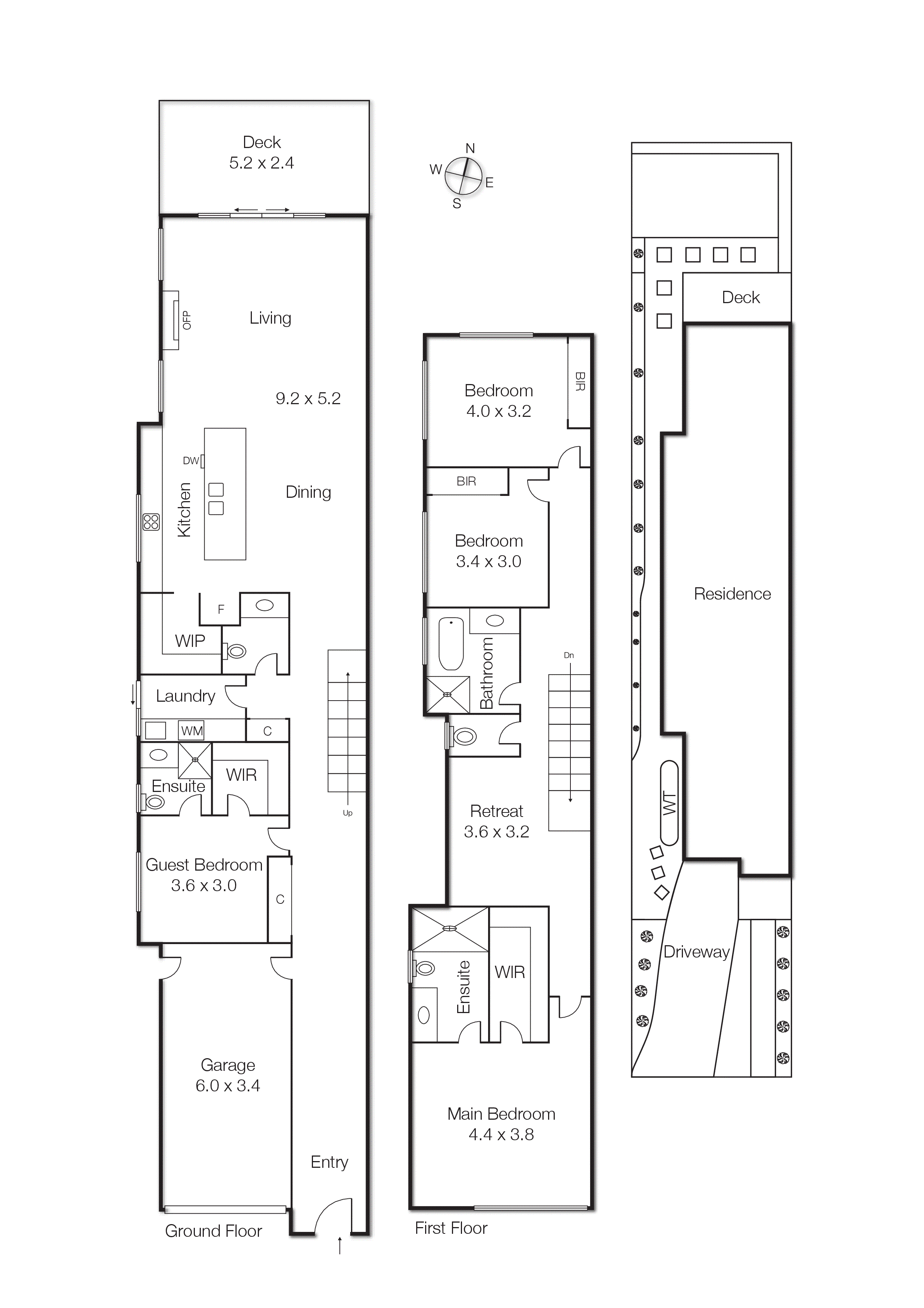
Nestled in a peaceful Sandbelt pocket, this alluring four-bedroom, three-bathroom sanctuary is a compelling fusion of space, high-end appointments, superior comfort and beautiful natural Northern light.
A dramatic pivot door launches the ground floor where an inviting entry hall with polished concrete floors set beneath high timber clad ceilings, flows through a versatile family layout revealing a master bedroom with luxe walk-in wardrobe and lavish fully tiled ensuite, a chic fully tiled powder room and stunning storage-rich laundry.
Further along the hallway a glamorous kitchen, living and dining area maximise exposure to the north and west through expanses of glazing. A sophisticated space for both daily living and entertaining, the sun-drenched living area is the perfect place to relax by the warmth of the gas log fireplace. Huge glass sliding doors open out onto the north-facing entertainment deck – the perfect place for a morning coffee or for al fresco dining set against a backdrop of leafy seclusion.
Back inside, the high-performance kitchen is beautiful to look at, superior in function and prestige appointed with stunning stone benchtops, 3 metre pure concrete waterfall island bench and Smeg appliances including 90 cm oven, 6-burner gas cooktop, dishwasher and rangehood. An adjacent walk-in pantry with extensive cabinetry adds considerable amenity.
A timber and glass staircase floats upstairs to the light filled retreat, providing the extra space modern family’s desire. Continuing the exceptional attention to detail, three spacious bedrooms include the tranquil main bedroom suite with designer dressing room, opulent fully tiled ensuite and large picture window enjoying treed vistas. Two additional bedrooms with extensive built in robes are serviced by a sumptuous family bathroom with freestanding bath and separate shower.
All-round comfort is assured with zoned heating and air conditioning, plush carpets to all bedrooms and the retreat, double glazing, separate WC, alarm system, video intercom and auto garage with rear and internal access.
At this coveted Pennydale location, just a short walk to parklands, bus services, local shops and cafes, schools, golf courses, and Southland Shopping Centre and train station, plus close proximity to a myriad of shopping, dining and transport options and the beach.
For more information about this sensational sanctuary of style contact James Colyvan or Adam Saunders at Buxton Sandringham.
