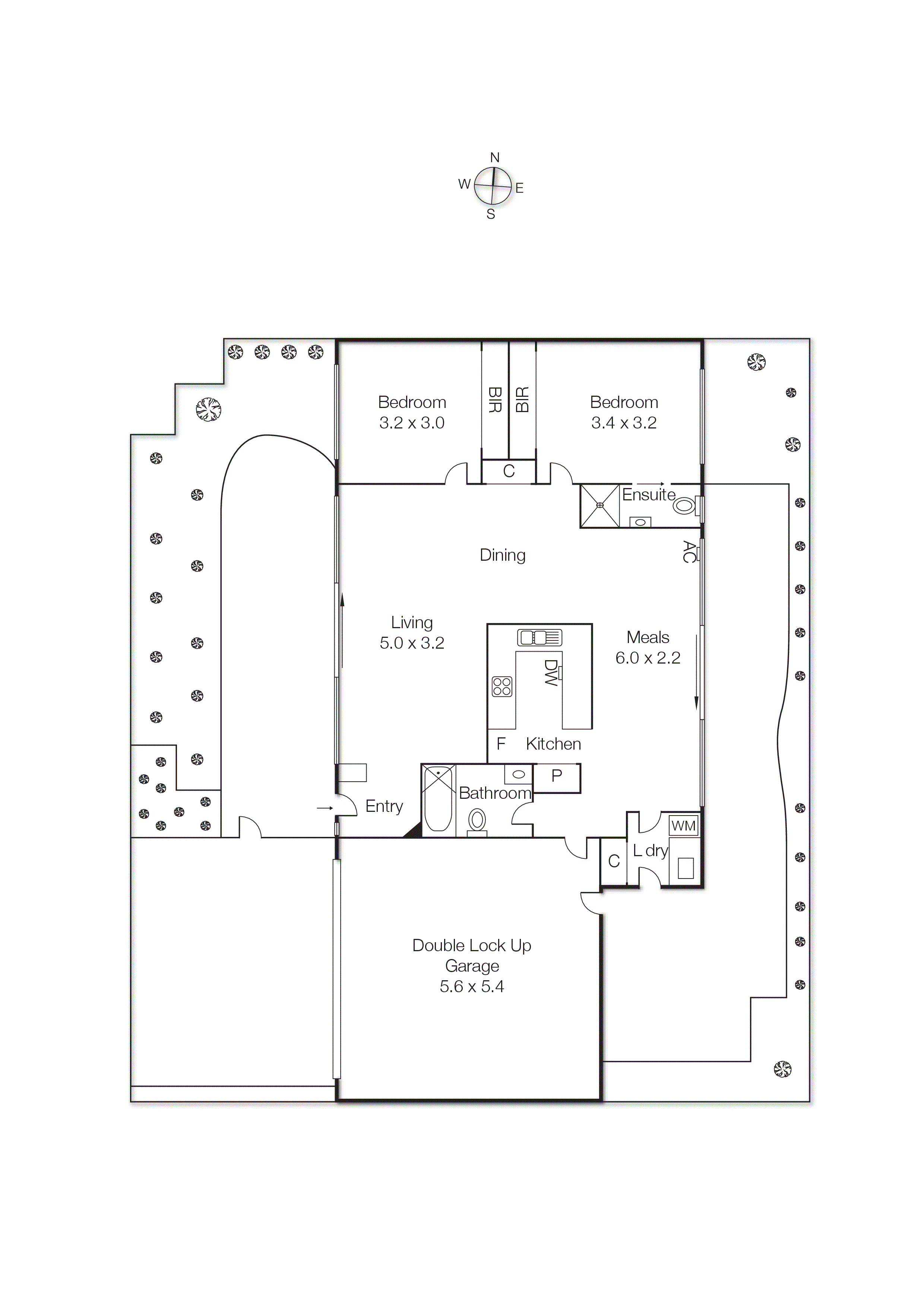
Fronting onto Smith Street and placed behind a high private brick fence, this standalone home is a single-level sanctuary with wide-reaching appeal. Boasting alfresco areas front & back and a hard-to-find double garage, it offers comfortable easy-care interiors which will appeal to young families, investors and downsizers alike.
Already...
Fronting onto Smith Street and placed behind a high private brick fence, this standalone home is a single-level sanctuary with wide-reaching appeal. Boasting alfresco areas front & back and a hard-to-find double garage, it offers comfortable easy-care interiors which will appeal to young families, investors and downsizers alike.
Already refreshed with brand new carpet and crisp white paint, the layout includes a wide and welcoming lounge, adjoining meals area and practical kitchen which feature sliding glass doors and full windows providing plenty of light, leafy views and direct access to the front and rear gardens.
Two good-sized double bedrooms both with mirrored robes and the larger master room with ensuite included, while a second bathroom services the remainder of the home, also offering a remote double garage with secure internal entry plus additional driveway parking. A laundry leading out to the yard, ducted heating and an air conditioner conclude a light-filled opportunity to buy in a prized beachside suburb.
Enjoy as is or modernise to suit your style, then enjoy the calibre of this top class locale. Just steps to local shops, buses & amenities, it is within easy reach of Haileybury & St Leonard’s colleges and a quick trip to dining & retail destinations along with a choice of train stations & the bay.
For more information about this street-fronted courtyard setting, contact Kylie Charlton or Jasmine Younger at Buxton Sandringham.