Rising to a new level of sophistication, this extremely spacious and modern two-bedroom, two-bathroom ground floor apartment with a large courtyard offers luxurious, easy-to-manage living in an unbeatable location. Having the tram right at your doorstep and being just a brief stroll from Box Hill Central, makes everything incredibly accessible! The...
Rising to a new level of sophistication, this extremely spacious and modern two-bedroom, two-bathroom ground floor apartment with a large courtyard offers luxurious, easy-to-manage living in an unbeatable location. Having the tram right at your doorstep and being just a brief stroll from Box Hill Central, makes everything incredibly accessible! The beautiful Kingsley Gardens and Box Hill Gardens are only steps away, perfect for a relaxing walk or a fun BBQ/picnic day with family and friends.
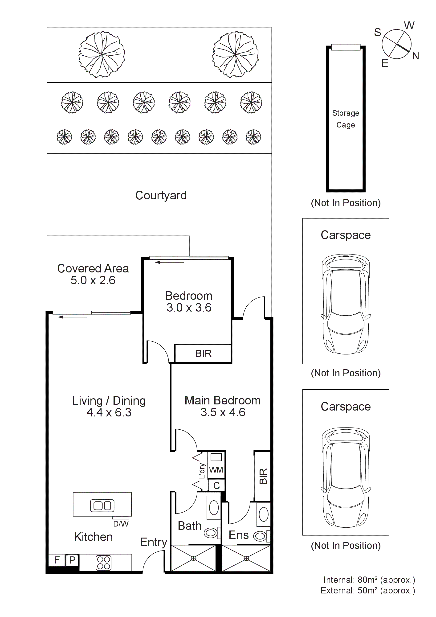
Upon entering, the luminous living area and modern kitchen immediately captivate, showcasing Italian marble countertops, a spacious island bench, Miele appliances, and an integrated fridge/freezer. Floor-to-ceiling glass sliding doors seamlessly connect the living area to the expansive private courtyard, offering a tranquil setting perfect for entertaining.
Plush and inviting, both bedrooms offer BIRs and direct access to the courtyard, with the main boasting a lavish ensuite and the luxe fully tiled stone bathroom servicing the second bedroom. This contemporary retreat features European oak flooring in the living areas, full-length double-glazed windows, European laundry, centralized climate control for heating and cooling, video intercom, two secure parking spaces in the basement, and a spacious storage room with roller door. All within easy reach of shops, cafes and parkland.