Expressions of Interest Offers close Thursday 30th May 2024 at 5:00pm At Graham Street’s exclusive cul de sac end directly opposite Gasworks Arts Park, this breathtaking multi-level residence and its...
Sharing Listing
B 3 b 3 C 2
Buxton Port Melbourne
370 Bay Street,
PORT MELBOURNE VIC
3207
Expressions of Interest Offers close Thursday 30th May 2024 at 5:00pm At Graham Street’s exclusive cul de sac end directly opposite Gasworks Arts Park, this breathtaking multi-level residence and its...
Expressions of Interest
Offers close Thursday 30th May 2024 at 5:00pm
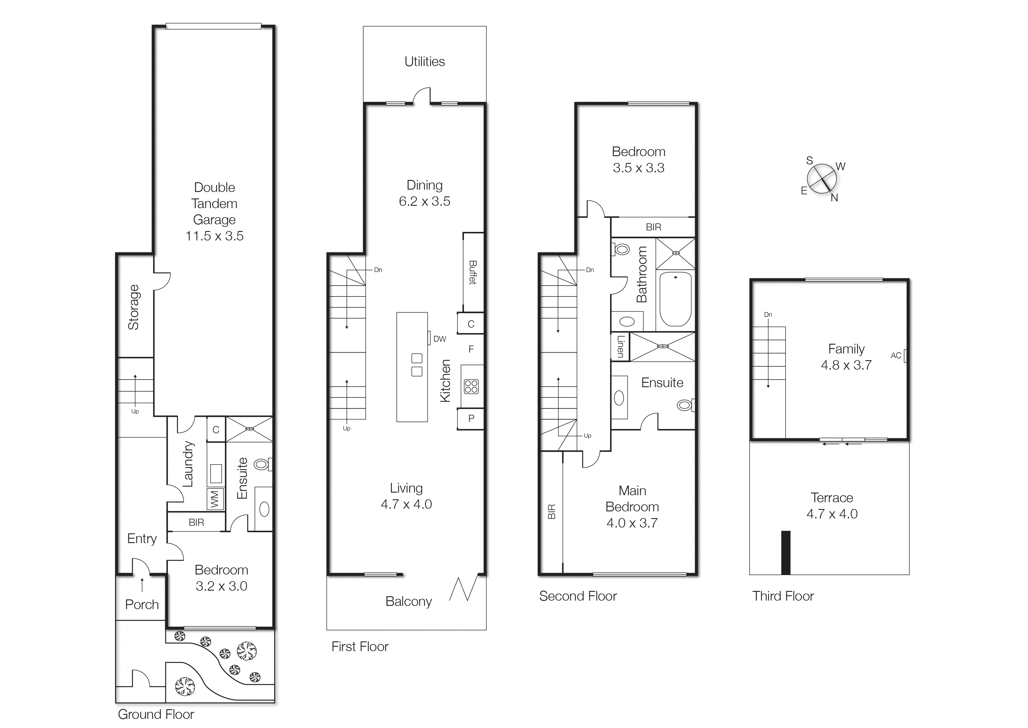
At Graham Street’s exclusive cul de sac end directly opposite Gasworks Arts Park, this breathtaking multi-level residence and its premium position combine to provide a truly exceptional bayside lifestyle. Impeccably designed for the discerning against a sun filled northern aspect, sophisticated three-bedroom three-bathroom accommodation is defined by generous proportions that feature three living domains, multiple outdoor zones including one with CBD views, and the inner-city luxury of an internally accessed remote double garage. Floor to ceiling windows make the utmost of the prized aspect, capturing abundant natural light and tranquil leafy or parkland views throughout.
Beyond a secure entry courtyard, a bedroom with BIRs and ensuite is accompanied by a family laundry before the entire first floor is devoted to zoned open plan living and dining areas with a central stone finished kitchen, built in storage and fabulous wall to wall terrace overlooking the leafy parkside surrounds. Above, two additional bedrooms with BIRs include the main with ensuite and leafy City views, the other served by a full size family bathroom. On the top floor, a third living domain steps out to a deep entertaining terrace perched amidst the treetops with stunning CBD views. Further highlights include fully tiled bathrooms with ample storage, high ceilings, ducted and split heating/cooling, secure entry and, of course, the remote double garage.
From this elite position, virtually every area attraction is available within a short stroll including the Bay and foreshore promenade, iconic Albert Park Village and Bay Street Port Melbourne, Gasworks Arts Park with its café, theatre, exhibitions and Farmers Market, Lagoon Reserve, highly regarded Albert Park College and Albert Park Primary, trams to the Arts Precinct and CBD with links to the South Melbourne Market, MCG or Sports and Entertainment Precinct, the list goes on and on.
Expressions of Interest
Offers close Thursday 30th May 2024 at 5:00pm
At Graham Street’s exclusive cul de sac end directly opposite Gasworks Arts Park, this breathtaking multi-level residence and its premium position combine to provide a truly exceptional bayside lifestyle. Impeccably designed for the discerning against a sun filled northern...
Expressions of Interest
Offers close Thursday 30th May 2024 at 5:00pm
At Graham Street’s exclusive cul de sac end directly opposite Gasworks Arts Park, this breathtaking multi-level residence and its premium position combine to provide a truly exceptional bayside lifestyle. Impeccably designed for the discerning against a sun filled northern aspect, sophisticated three-bedroom three-bathroom accommodation is defined by generous proportions that feature three living domains, multiple outdoor zones including one with CBD views, and the inner-city luxury of an internally accessed remote double garage. Floor to ceiling windows make the utmost of the prized aspect, capturing abundant natural light and tranquil leafy or parkland views throughout.
Beyond a secure entry courtyard, a bedroom with BIRs and ensuite is accompanied by a family laundry before the entire first floor is devoted to zoned open plan living and dining areas with a central stone finished kitchen, built in storage and fabulous wall to wall terrace overlooking the leafy parkside surrounds. Above, two additional bedrooms with BIRs include the main with ensuite and leafy City views, the other served by a full size family bathroom. On the top floor, a third living domain steps out to a deep entertaining terrace perched amidst the treetops with stunning CBD views. Further highlights include fully tiled bathrooms with ample storage, high ceilings, ducted and split heating/cooling, secure entry and, of course, the remote double garage.
From this elite position, virtually every area attraction is available within a short stroll including the Bay and foreshore promenade, iconic Albert Park Village and Bay Street Port Melbourne, Gasworks Arts Park with its café, theatre, exhibitions and Farmers Market, Lagoon Reserve, highly regarded Albert Park College and Albert Park Primary, trams to the Arts Precinct and CBD with links to the South Melbourne Market, MCG or Sports and Entertainment Precinct, the list goes on and on.
Buxton Port Melbourne
370 Bay Street,
PORT MELBOURNE VIC
3207
We'll give you a clear, honest assessment based on real market insights, so you can make informed decisions with confidence.
Local knowledge. Proven results. Trusted advice.
