One of three fabulous homes created by the conversion of St Kilda Squash Courts, this townhouse’s impressive three-bedroom two-bathroom proportions provide significant space in a prime position just footsteps from St Kilda’s most renowned landmarks, Fitzroy Street, and the beach. Perfectly private, secure, and designed for lock up and leave ease,...
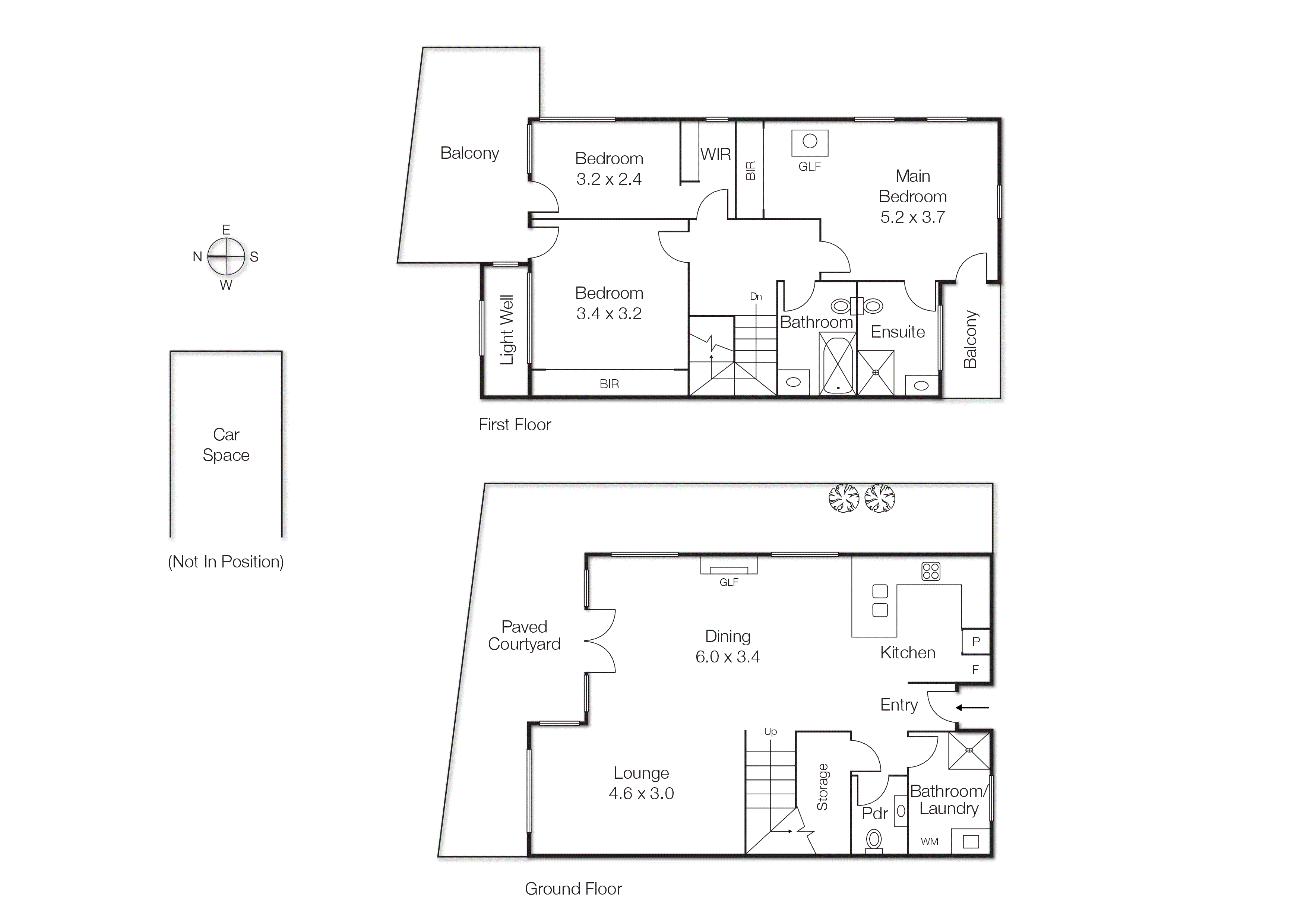
One of three fabulous homes created by the conversion of St Kilda Squash Courts, this townhouse’s impressive three-bedroom two-bathroom proportions provide significant space in a prime position just footsteps from St Kilda’s most renowned landmarks, Fitzroy Street, and the beach. Perfectly private, secure, and designed for lock up and leave ease, its instantly impressive accommodation is beautifully suited to an iconic St Kilda lifestyle. Rest, relax or entertain in spacious open plan living and dining areas that feature a gas fireplace and unfold to a wraparound courtyard capably served by a fully equipped modern kitchen with breakfast bar and a ground floor powder room. Upstairs, three bedrooms include two with WIR/BIRs sharing a family bathroom and northern balcony, and a palatial main bedroom with BIRs, ensuite, and balcony. Additional highlights include laundry with third shower, under stair storage, polished timber floors, secure entry, and parking. Walk to Acland Street, the foreshore promenade, awarded restaurants and bars, Luna Park, the Palais Theatre, Catani Gardens, trams, light rail links, Albert Park Lake, and the list goes on and on!