BRAND NEW TOWNHOUSE CLOSE TO DENDY PARK
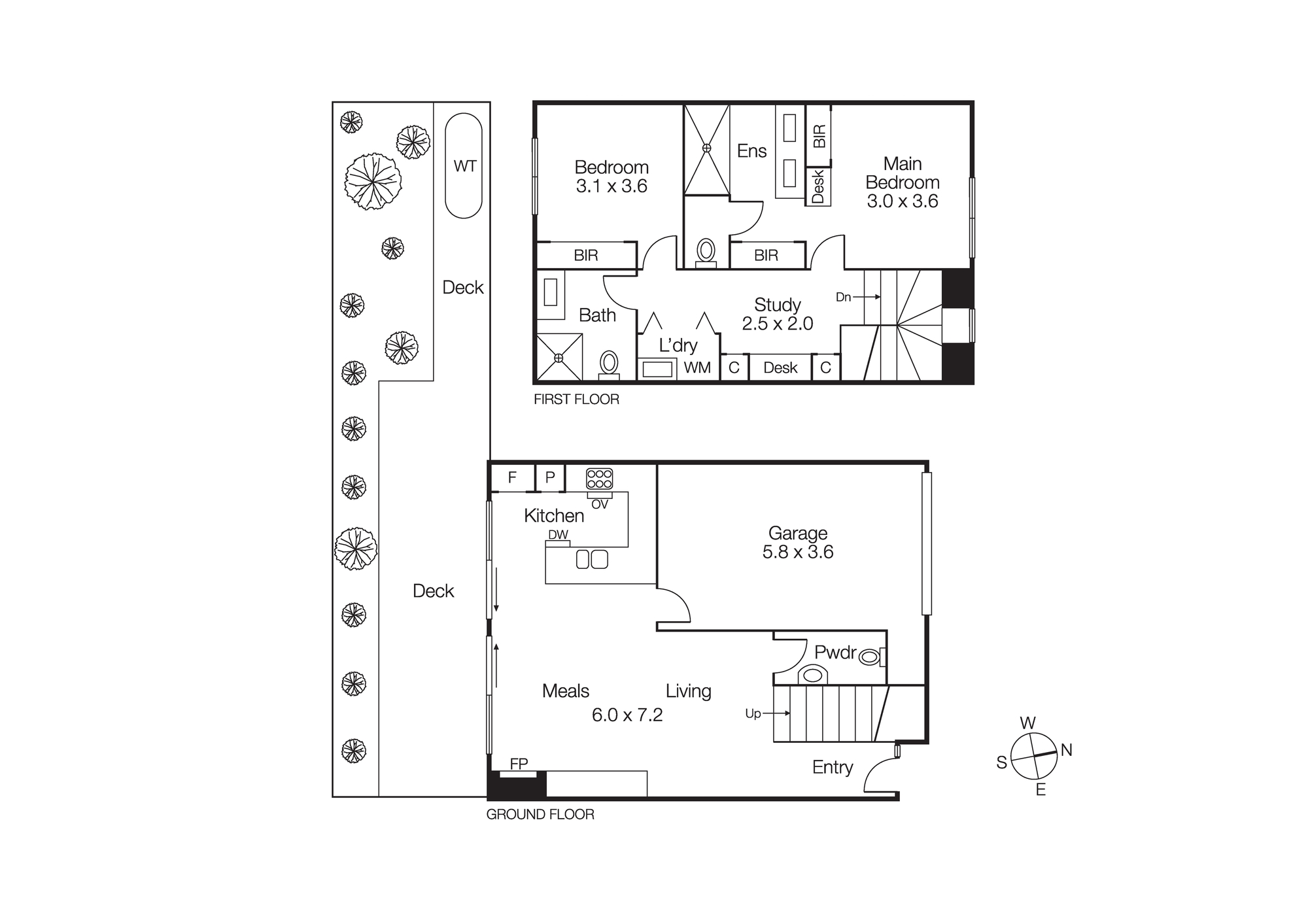
This stunning two bedroom townhouse with two full bathrooms, an additional powder room, European laundry, study enclave with a one car garage and is a must to inspect.
The entrance to the home is filled with natural light coming in through the outdoor patio. Downstairs the gas fire place gives a...
BRAND NEW TOWNHOUSE CLOSE TO DENDY PARK
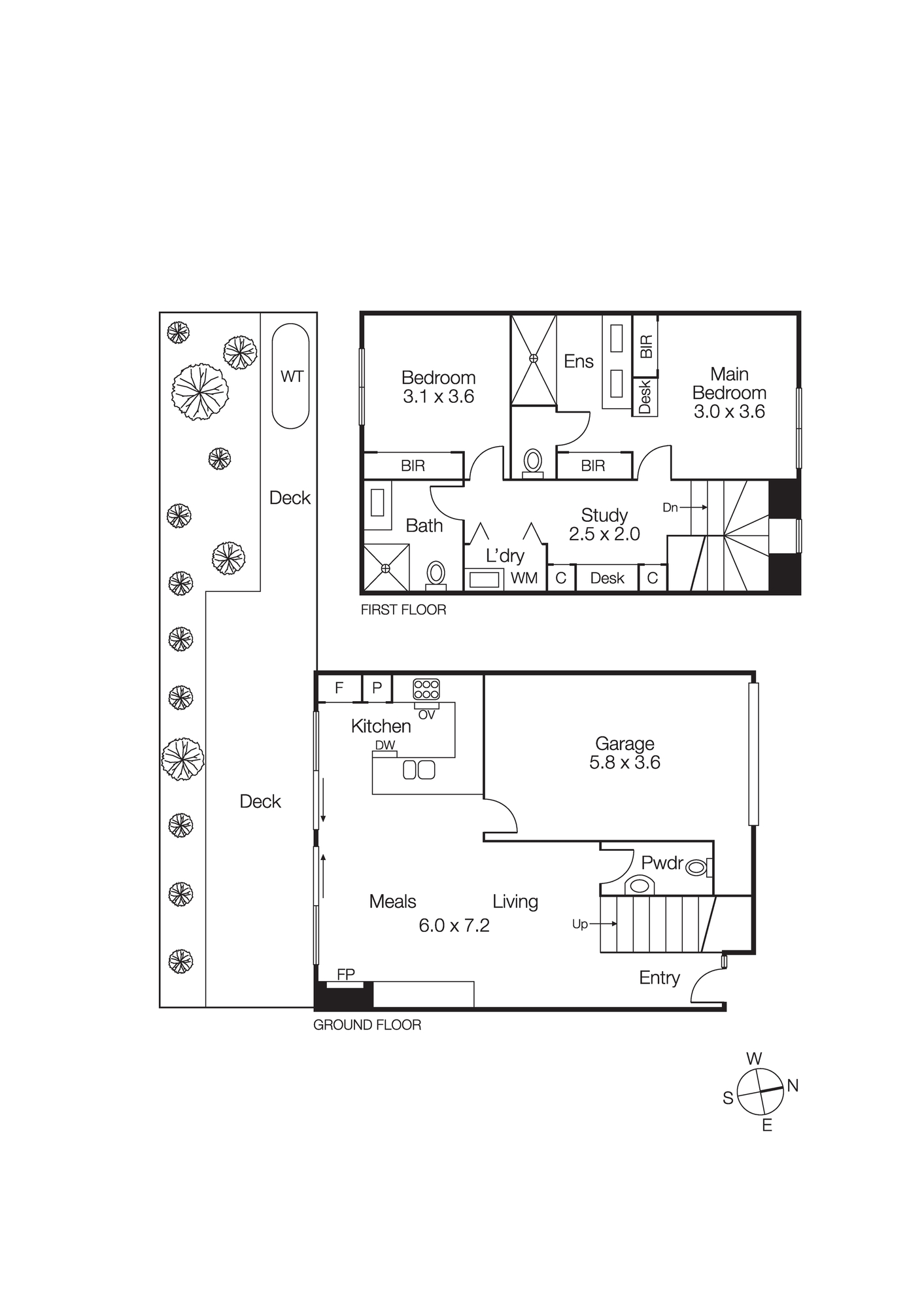
This stunning two bedroom townhouse with two full bathrooms, an additional powder room, European laundry, study enclave with a one car garage and is a must to inspect.
The entrance to the home is filled with natural light coming in through the outdoor patio. Downstairs the gas fire place gives a gorgeous ambience to the living space while the floor to ceiling sliding glass doors give the kitchen open and easy access to entertain with an inside outside feel. There is a powder room downstairs and access to the house from the garage,making it easy to bring groceries, car loads, or children inside.
The kitchen is stunning with a re-con stone kitchen bench, bar fridge and integrated dishwasher.
As you arrive upstairs you will find an open and light filled area with a built in desk with generous storage each side. A great home office. The European style laundry is tucked away and very functional.
Upstairs there are two bedrooms both with built in wardrobes. The master bedroom has an ensuite as well as extra wardrobe space. There is another full bathroom upstairs. The lush new carpet and the natural light allow this space to feel extremely comfortable.
Nestled in a quiet cul-de-sac close to schools (zoned for Brighton Secondary College), shops, cafes, trains and the beach. Just mintues to vast parkland with sporting fields and Brighton Golf Club at your doorstep. This stunning two level, two bedroom townhouse, luxurious and secure, is one not to be missed.
*You MUST register for an inspection and we ask that you also confirm your attendance. AN AGENT WILL NOT BE PRESENT IF YOU DO NOT REGISTER and CONFIRM. Your consideration and co-operation is appreciated.