** All offers to be submitted by 5pm TODAY 23/5/24 **
Experience cosmopolitan living at its finest within the sought-after Pentridge Village with this charismatic two-bedroom apartment. This exceptional home places you steps away from charming cafés, retail shopping, and the Palace Cinemas, with Coburg Lake Reserve and the bustling Sydney Road...
** All offers to be submitted by 5pm TODAY 23/5/24 **
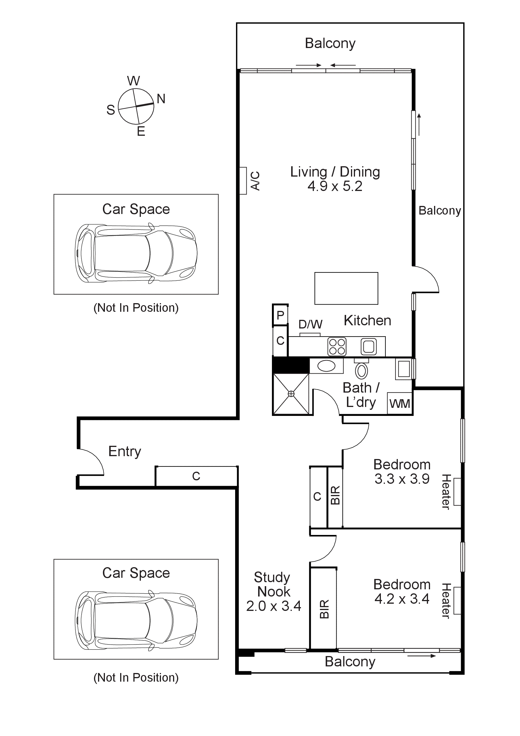
Experience cosmopolitan living at its finest within the sought-after Pentridge Village with this charismatic two-bedroom apartment. This exceptional home places you steps away from charming cafés, retail shopping, and the Palace Cinemas, with Coburg Lake Reserve and the bustling Sydney Road precinct just a short stroll away, ensuring an active and connected lifestyle.
The apartment features a light-filled living and dining area with stylish floorboards, seamlessly extending to a generous wraparound balcony through multiple glass doors. This serene outdoor space offers panoramic views, perfect for entertaining friends and family. The quality-appointed kitchen boasts a versatile movable island, enhancing the functionality of the living space. Both bedrooms come with built-in robes, with one offering balcony access. They are serviced by a luxurious bathroom with laundry facilities. Additional highlights include split system heating and cooling, a study nook, secure entry, two car spaces, and a storage cage.