Positioned in a prized pocket of Bentleigh East, this 584 sqm (approx.) North facing block offers a fantastic opportunity for keen renovators, developers, and investors.
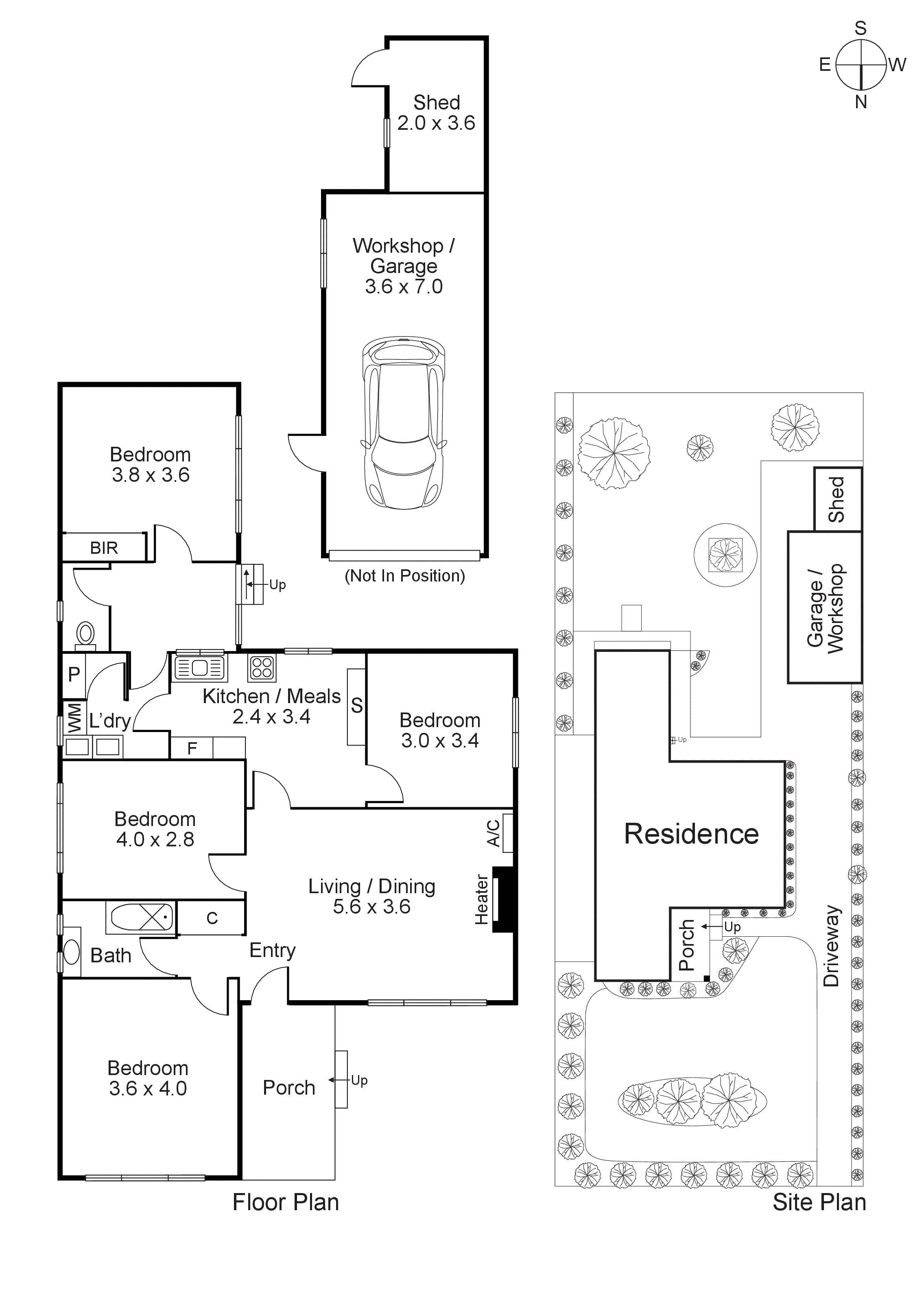
The residence has a generously sized floorplan, with large living spaces, an original kitchen and four spacious bedrooms. The property also includes a single garage and a...
Positioned in a prized pocket of Bentleigh East, this 584 sqm (approx.) North facing block offers a fantastic opportunity for keen renovators, developers, and investors.
The residence has a generously sized floorplan, with large living spaces, an original kitchen and four spacious bedrooms. The property also includes a single garage and a workshop. The north-facing facade ensures ample natural light, creating a bright and welcoming atmosphere, while the backyard is a private haven ideal for outdoor entertaining.
Consider the potential to build a brand-new home tailored to your needs or subdivide the block to create luxurious townhouses (STCA). This property’s generous land size and prime location make it an excellent candidate for redevelopment.
Located in a family-friendly area, this home is within walking distance to East Bentleigh Primary School and Bentleigh Secondary College. Enjoy the proximity to King George Memorial Reserve, Centenary Park, local tennis clubs, and the nearby kindergarten. The popular Humble Creatures café and convenient bus routes add to the appeal, making it easy to get around town.
ALL ENQUIRIES MUST INCLUDE A CONTACT NUMBER. For more information, contact Simon Pintado at Buxton Bentleigh on 0431 473 701 or the Buxton Office on 9563 9933