Absolutely extraordinary on the crest of St Kilda Hill, this sub penthouse apartment’s luxuriously proportioned living areas are extended and enhanced by a jaw dropping 27m landscaped terrace. Exceptional assets indeed in any real estate setting, even more so in a lock up and leave environment, but this remarkable two-bedroom two-bathroom home...
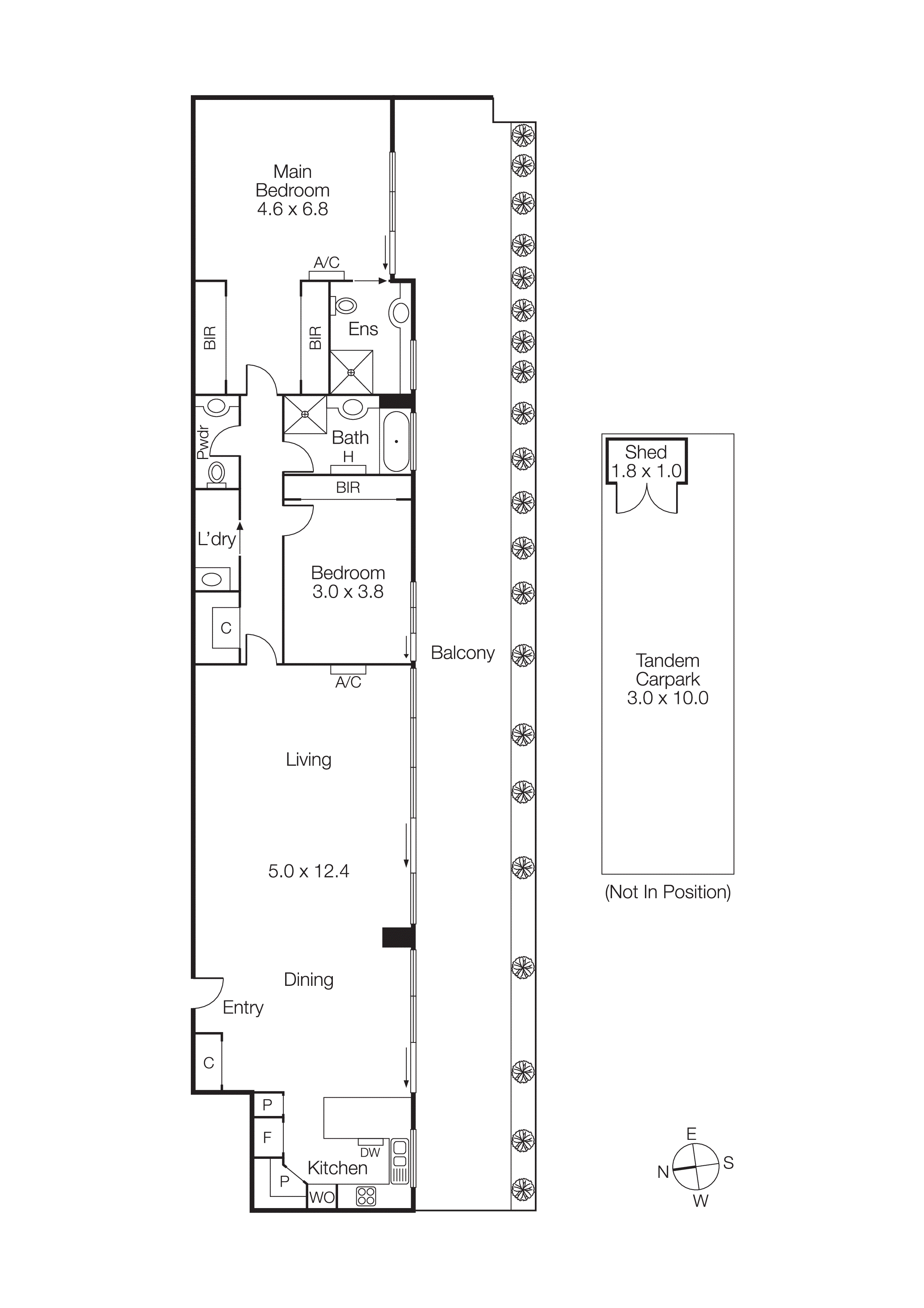
Absolutely extraordinary on the crest of St Kilda Hill, this sub penthouse apartment’s luxuriously proportioned living areas are extended and enhanced by a jaw dropping 27m landscaped terrace. Exceptional assets indeed in any real estate setting, even more so in a lock up and leave environment, but this remarkable two-bedroom two-bathroom home places them against a breathtaking backdrop of panoramic Bay views! Amongst the Santorini building’s largest and most impressive low maintenance home’s, beautifully bright accommodation expands out against the outlook with generous open plan living areas, a superb stone finished kitchen with induction cooktop, and the palatial main bedroom suite all opening to the terrace and its mesmerizing uninterrupted views from Balaclava to the Bay with St Kilda’s landmark shoreline, the Palais Theatre and St Kilda Marina taking centre stage. Further highlights include the main bedroom with extensive robes and ensuite, second bedroom with BIRs, full size luxury bathroom, guest powder room, dedicated laundry, heated towel rails, split heating/cooling, timber floors, electric double blinds, video intercom entry, and lift accessed secure basement parking for two with storage shed. Enjoy a casual stroll to the beach and foreshore promenade, Fitzroy, Acland and Carlisle Streets’ shopping and dining, Esplanade bars, awarded restaurants, St Kilda Road trams to the CBD, light rail links and the list goes on and on.