Positioned on the sunny high side of Balcombe Road, well away from the street below, this beautifully appointed house-sized villa is a home that will have you at ‘hello’.
Private, tranquil, and finished to please, the single-level abode opens to inviting and generous split-level accommodation enhanced by high ceilings, glossy hardwood floors,...
Positioned on the sunny high side of Balcombe Road, well away from the street below, this beautifully appointed house-sized villa is a home that will have you at ‘hello’.
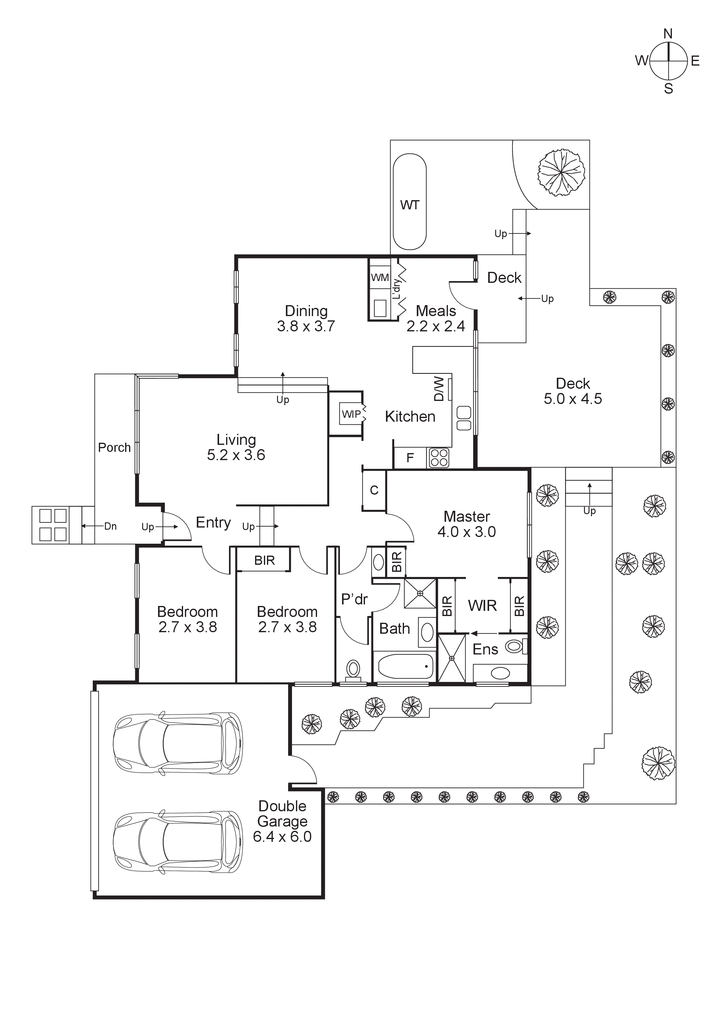
Private, tranquil, and finished to please, the single-level abode opens to inviting and generous split-level accommodation enhanced by high ceilings, glossy hardwood floors, and quality appointments throughout.
Among its many highlights are a welcoming broad-windowed lounge and a separate dining area together with an entertainer’s dream kitchen where silky stone benchtops, a Bosch dishwasher, large walk-in pantry, and premium cooking appliances are all standout features.
All three bedrooms are of generous proportions. The master has walk-thru robes to a smartly finished ensuite whilst the remaining bedrooms (one with built-in robes) share an equally stylish main bathroom with a separate WC.
Outside is also bound to please – here, discover an idyllic decked alfresco entertaining area as well as plenty of room for children or pets to play.
Low maintenance, peaceful, and ready to be enjoyed, this hugely appealing home also offers ducted heating/cooling, external blinds, a European-style laundry, a water tank, and a double auto garage with courtyard access. A walk to the zoned Beaumaris Secondary College, it is close to a choice of primary schools, bus stops, both Seaview shops & the Concourse. Championship golf courses and parks are nearby, and the bay is at the end of Balcombe Road for countless easy days at the beach.
Contact Adam Saunders at Buxton Sandringham or Jessica Zaviacic for more information.