Securely nestled beyond a gated entry in a boutique complex, this fantastic ground floor apartment is loaded with comfort adding features and creative storage. Saturating natural light floods the...
Securely nestled beyond a gated entry in a boutique complex, this fantastic ground floor apartment is loaded with comfort adding features and creative storage.
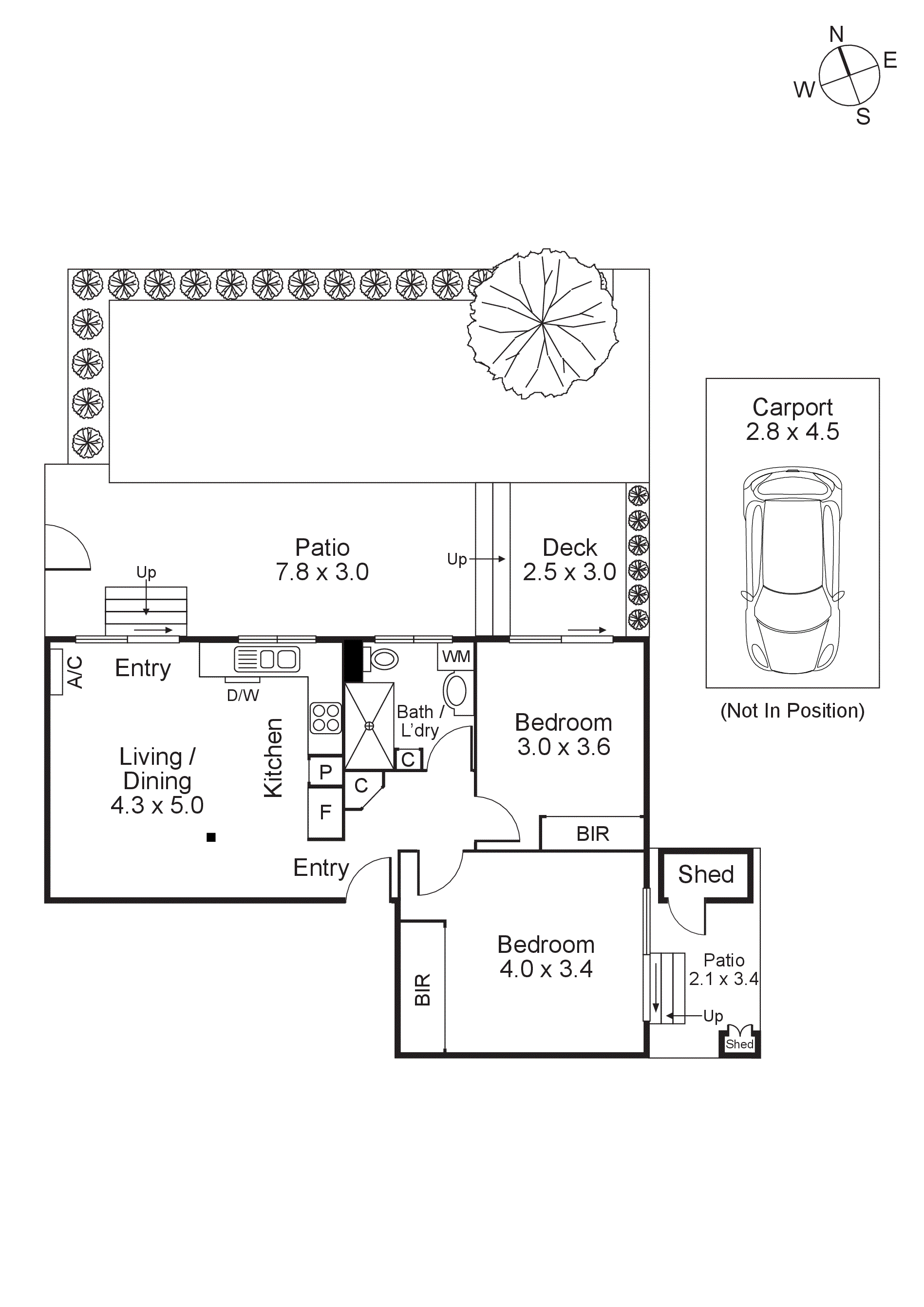
Saturating natural light floods the north facing open-plan layout. Solid blackbutt floors and a stylish stone-topped kitchen unfold out to a huge landscaped courtyard – the perfect setting for private relaxation and entertaining.
Internals feature 2 over-sized bedrooms both fitted with BIRs and external access, neat and tidy bathroom with shower bath plus heated towel rail and overhead ceramic heater, wifi controlled split system heating/AC and a cleverly designed swivel TV mount above a built in TV unit. This property also boasts the only instant gas hot water system on the block.
Externally, you will find two private courtyards. A smaller one off the master bedroom includes a storage shed and storage cabinet. In addition, the lockable storage underneath the waterproof aluminium deck in the main courtyard means all your storage needs are covered! Covered car space sits conveniently positioned first behind the front entry gate and directly across from the unit’s front door.
The huge main courtyard features a large paved area with plenty of space for entertaining and a gas point waiting for a BBQ to be plumbed in. The large grassed area provides enough space for a happy dog, chickens, or a game of backyard cricket. It is surrounded by established fruiting trees with its centrepiece being a beautiful deciduous Birch tree fitted with bluetooth effect lighting. Irrigation is fully set up for the veggies in the garden bed and wall pots next to the deck, watering points are also available to take care of the lawn and fruit tree garden beds without ever needing to lift a hose.
The established solid brick building has stood the test of time, and with its roof and guttering replaced in 2022 is ready to provide years of maintenance free living.
Focused on providing stress-free living, quietly positioned in a pretty streetscape within the Murrumbeena Primary zone, a stone's throw from thriving Murrumbeena Village, a plethora of parklands, bus services, train station and Chadstone Shopping Centre.
For more information, contact Simon Pintado at Buxton Bentleigh on 0431 473 701 or the Buxton Office on 9563 9933
